|
|
|
| Larry Stein Oklahoma County Assessor (405) 713-1200 - Public Access System |
|
|
|
|
|
|
| Real Property Display - Screen Produced 3/20/2026 6:13:21 AM | ||||
|---|---|---|---|---|
| Account: R120651150 | Type: Residential | Location: |
8328 NW 113TH ST |
|
| Building Name/Occupant: |
|
OKLAHOMA CITY |
||
| Owner Name 1: | THOMASON JOSHUA & RACHAEL E |
Parcel PIN#: |
3874-12-065-1150 |
|
| Owner Name 2: | 1/4 section #: |
3874 |
||
| Owner Name 3: | Parent Acct: |
|
||
| Billing Address: | 8328 NW 113TH ST | Tax District: |
|
|
| City, State, Zip | OKLAHOMA CITY, OK 73162 | School System: |
Putnam City #1 |
|
|
Country: (If noted) |
Land Size: |
0.1446 Acres |
||
|
Land Value: 34,650 |
|
|||
|
Sect 19-T13N-R4W Qtr SE |
EAGLE RIDGE SEC III
Block
008
Lot
021
|
|||
| Full Legal Description: EAGLE RIDGE SEC III 008 021 |
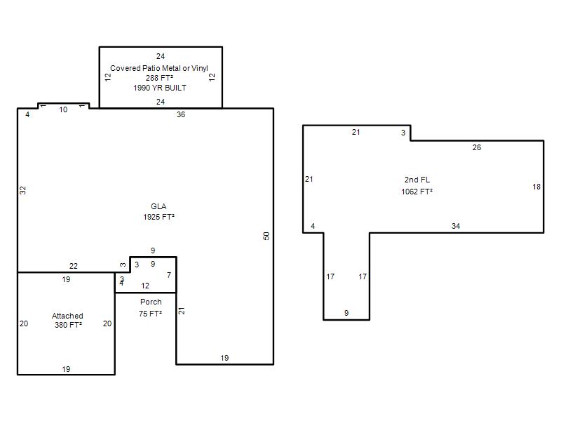
| Photo & Sketch (if available) | Comp Sales (ordered by relevancy) |
|
||||||||||||||||||
|
||||||||||||||||||||
| Value History (*The County Treasurer 405-713-1300 posts & collects actual tax amounts. Contact information HERE) | |||||||||||||
|---|---|---|---|---|---|---|---|---|---|---|---|---|---|
| Year | Market Value | Taxable Mkt Value | Gross Assessed | Exemption | Net Assessed | Millage | Est. Tax | Tax Savings | |||||
|
2025 |
287,500 |
229,122 |
25,203 |
0 |
25,203 |
123.17 |
$3,104 |
$791 |
|||||
|
2024 |
281,500 |
218,212 |
24,003 |
0 |
24,003 |
122.30 |
$2,936 |
$851 |
|||||
|
2023 |
255,500 |
207,821 |
22,859 |
0 |
22,859 |
121.91 |
$2,787 |
$639 |
|||||
|
2022 |
232,000 |
197,925 |
21,771 |
0 |
21,771 |
123.41 |
$2,687 |
$463 |
|||||
|
2021 |
188,500 |
188,500 |
20,735 |
0 |
20,735 |
122.23 |
$2,534 |
$0 |
|||||
| Property Account Status/Adjustments/Exemptions | ||
|---|---|---|
| Account # | Exemption Description | Amount |
|
R120651150 |
5% Capped Account |
0 |
| Property Deed Transaction History (Recorded in the County Clerk's Office) | ||||||||||
|---|---|---|---|---|---|---|---|---|---|---|
| Date | Type | Book | Page | Price | Grantor | Grantee | ||||
|
4/1/2020 |
|
Deeds |
$193,000 |
MARQUIS APRIL A |
THOMASON JOSHUA & RACHAEL E |
|||||
|
2/8/2019 |
|
Deeds |
$181,500 |
GOZA KENNY R |
MARQUIS APRIL A |
|||||
|
6/26/2017 |
|
Deeds |
$0 |
GOZA SHEILA F |
GOZA KENNY R |
|||||
|
8/20/2004 |
|
Deeds |
$142,500 |
HUGHES JIM |
GOZA KENNY |
|||||
|
12/9/2000 |
|
Deeds |
$80,000 |
WILKERSON DON |
HUGHES JIM |
|||||
| Last Mailed Notice of Value (N.O.V.) Information/History | ||||||||
|---|---|---|---|---|---|---|---|---|
| Year | Date | Market Value | Taxable Market Value | Gross Assessed | Exemption | Net Assessed | ||
|
2026 |
02/23/2026 |
298,500 |
240,578 |
26,463 |
0 |
26,463 |
||
|
2025 |
02/14/2025 |
287,500 |
229,122 |
25,203 |
0 |
25,203 |
||
|
2024 |
02/13/2024 |
281,500 |
218,212 |
24,003 |
0 |
24,003 |
||
|
2023 |
02/14/2023 |
255,500 |
207,821 |
22,859 |
0 |
22,859 |
||
|
2022 |
03/15/2022 |
232,000 |
197,925 |
21,771 |
0 |
21,771 |
||
| Property Building Permit History | |||||||||||
|---|---|---|---|---|---|---|---|---|---|---|---|
| Issued | Permit # | Provided by | Bldg # | Description | Est Construction Cost | Status | |||||
| No Building Permit records returned. | |||||||||||
| Click button on building number to access detailed information: | ||||||
|---|---|---|---|---|---|---|
| Bldg # | Vacant/Improved Land | Bldg Description | Year Built | SqFt | # Stories | |
|
1 |
Improved |
1½ Story Fin |
1983 |
2,987 |
1.5 Stories |
|