|
|
|
| Larry Stein Oklahoma County Assessor (405) 713-1200 - Public Access System |
|
|
|
|
|
|
| Real Property Display - Screen Produced 3/24/2026 10:02:55 AM | ||||
|---|---|---|---|---|
| Account: R123242760 | Type: Residential | Location: |
11808 SKYWAY AVE |
|
| Building Name/Occupant: |
|
OKLAHOMA CITY |
||
| Owner Name 1: | DOMINGUEZ MICHAEL STEVEN & PATRICIA A |
Parcel PIN#: |
3876-12-324-2760 |
|
| Owner Name 2: | 1/4 section #: |
3876 |
||
| Owner Name 3: | Parent Acct: |
|
||
| Billing Address: | 11808 SKYWAY AVE | Tax District: |
|
|
| City, State, Zip | OKLAHOMA CITY, OK 73162-1047 | School System: |
Piedmont #22 |
|
|
Country: (If noted) |
Land Size: |
0.1791 Acres |
||
|
Land Value: 44,070 |
|
|||
|
Sect 19-T13N-R4W Qtr NW |
BLUERIDGE SEC 1
Block
005
Lot
025
|
|||
| Full Legal Description: BLUERIDGE SEC 1 005 025 |
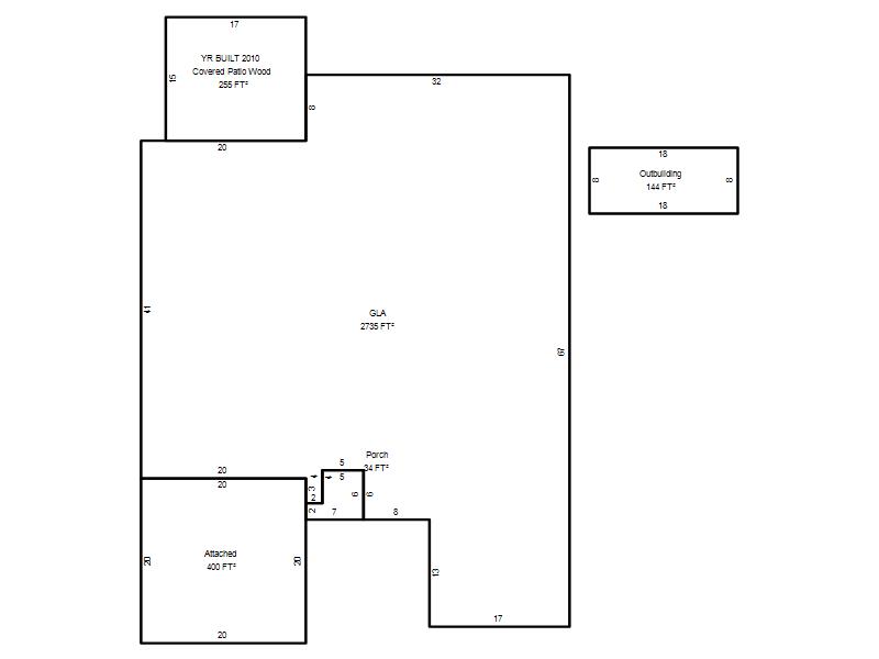
| Photo & Sketch (if available) | Comp Sales (ordered by relevancy) |
|
||||||||||||||||||
|
||||||||||||||||||||
| Value History (*The County Treasurer 405-713-1300 posts & collects actual tax amounts. Contact information HERE) | |||||||||||||
|---|---|---|---|---|---|---|---|---|---|---|---|---|---|
| Year | Market Value | Taxable Mkt Value | Gross Assessed | Exemption | Net Assessed | Millage | Est. Tax | Tax Savings | |||||
|
2025 |
282,000 |
187,500 |
20,625 |
1,000 |
19,625 |
131.06 |
$2,572 |
$1,493 |
|||||
|
2024 |
275,500 |
187,500 |
20,625 |
1,000 |
19,625 |
131.55 |
$2,582 |
$1,405 |
|||||
|
2023 |
268,500 |
187,500 |
20,625 |
1,000 |
19,625 |
129.02 |
$2,532 |
$1,279 |
|||||
|
2022 |
222,500 |
187,500 |
20,625 |
1,000 |
19,625 |
130.79 |
$2,567 |
$634 |
|||||
|
2021 |
196,000 |
187,500 |
20,625 |
1,000 |
19,625 |
133.81 |
$2,626 |
$259 |
|||||
| Property Account Status/Adjustments/Exemptions | ||
|---|---|---|
| Account # | Exemption Description | Amount |
|
R123242760 |
Freeze Senior Valuation |
0 |
|
R123242760 |
3% Cap Homestead |
0 |
|
R123242760 |
Homestead |
1,000 |
| Property Deed Transaction History (Recorded in the County Clerk's Office) | ||||||||||
|---|---|---|---|---|---|---|---|---|---|---|
| Date | Type | Book | Page | Price | Grantor | Grantee | ||||
|
11/4/2016 |
|
Deeds |
$175,000 |
SAIZ LEROY L & PATTI TRS SAIZ LIVING TRUST |
DOMINGUEZ MICHAEL STEVEN & PATRICIA A |
|||||
|
1/18/2006 |
|
Deeds |
$0 |
SAIZ PATTI A |
SAIZ LEROY L & PATTI TRS SAIZ LIVING TRUST |
|||||
|
11/16/2000 |
|
Deeds |
$115,000 |
BROWN JULIE A |
SAIZ PATTI A |
|||||
|
12/15/1998 |
|
Historical |
$0 |
BROWN JIM R & JULIE A |
BROWN JULIE A |
|||||
|
8/9/1991 |
|
Historical |
$0 |
RIGSBY KEVIN WAYNE & LEANNA S |
BROWN JIM R & JULIE A |
|||||
| Last Mailed Notice of Value (N.O.V.) Information/History | ||||||||
|---|---|---|---|---|---|---|---|---|
| Year | Date | Market Value | Taxable Market Value | Gross Assessed | Exemption | Net Assessed | ||
|
2026 |
02/23/2026 |
289,000 |
187,500 |
20,625 |
1,000 |
19,625 |
||
|
2025 |
02/14/2025 |
282,000 |
187,500 |
20,625 |
1,000 |
19,625 |
||
|
2024 |
02/13/2024 |
275,500 |
187,500 |
20,625 |
1,000 |
19,625 |
||
|
2023 |
02/14/2023 |
268,500 |
187,500 |
20,625 |
1,000 |
19,625 |
||
|
2022 |
03/15/2022 |
222,500 |
187,500 |
20,625 |
1,000 |
19,625 |
||
| Property Building Permit History | |||||||||||
|---|---|---|---|---|---|---|---|---|---|---|---|
| Issued | Permit # | Provided by | Bldg # | Description | Est Construction Cost | Status | |||||
| No Building Permit records returned. | |||||||||||
| Click button on building number to access detailed information: | ||||||
|---|---|---|---|---|---|---|
| Bldg # | Vacant/Improved Land | Bldg Description | Year Built | SqFt | # Stories | |
|
1 |
Improved |
Ranch 1 Story |
1987 |
2,735 |
1 Stories |
|