|
|
|
| Larry Stein Oklahoma County Assessor (405) 713-1200 - Public Access System |
|
|
|
|
|
|
| Real Property Display - Screen Produced 3/17/2026 6:02:46 AM | ||||
|---|---|---|---|---|
| Account: R150441200 | Type: Residential | Location: |
510 E INDIAN DR |
|
| Building Name/Occupant: |
|
MIDWEST CITY |
||
| Owner Name 1: | SCHIFF MAURICE L & SHARON N TRS |
Parcel PIN#: |
1438-15-044-1200 |
|
| Owner Name 2: | SCHIFF MAURICE & SHARON LIV TRUST | 1/4 section #: |
1438 |
|
| Owner Name 3: | Parent Acct: |
|
||
| Billing Address: | 6233 VARIEL AVE, Unit 733 | Tax District: |
|
|
| City, State, Zip | WOODLAND HILLS, CA 91367 | School System: |
Mid-Del #52 |
|
|
Country: (If noted) |
Land Size: |
0.1543 Acres |
||
|
Land Value: 19,488 |
|
|||
|
Sect 10-T11N-R2W Qtr SE |
PARK REPLAT SUB ADD
Block
002
Lot
001
|
|||
| Full Legal Description: PARK REPLAT SUB ADD 002 001 |
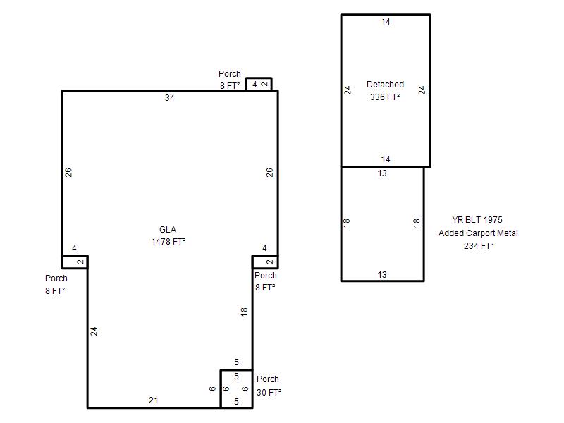
| Photo & Sketch (if available) | Comp Sales (ordered by relevancy) |
|
||||||||||||||||||
|
||||||||||||||||||||
| Value History (*The County Treasurer 405-713-1300 posts & collects actual tax amounts. Contact information HERE) | |||||||||||||
|---|---|---|---|---|---|---|---|---|---|---|---|---|---|
| Year | Market Value | Taxable Mkt Value | Gross Assessed | Exemption | Net Assessed | Millage | Est. Tax | Tax Savings | |||||
|
2025 |
152,500 |
104,124 |
11,453 |
0 |
11,453 |
119.58 |
$1,370 |
$636 |
|||||
|
2024 |
145,500 |
99,166 |
10,907 |
0 |
10,907 |
122.51 |
$1,336 |
$624 |
|||||
|
2023 |
134,000 |
94,444 |
10,388 |
0 |
10,388 |
117.71 |
$1,223 |
$512 |
|||||
|
2022 |
117,000 |
89,947 |
9,894 |
0 |
9,894 |
116.64 |
$1,154 |
$347 |
|||||
|
2021 |
95,000 |
85,664 |
9,422 |
0 |
9,422 |
119.45 |
$1,126 |
$123 |
|||||
| Property Account Status/Adjustments/Exemptions | ||
|---|---|---|
| Account # | Exemption Description | Amount |
|
R150441200 |
5% Capped Account |
0 |
| Property Deed Transaction History (Recorded in the County Clerk's Office) | |||||||
|---|---|---|---|---|---|---|---|
| Date | Type | Book | Page | Price | Grantor | Grantee | |
|
2/18/2015 |
|
Deeds |
$67,000 |
BACHMAN RICHARD KENNETH & JUDITH DIANN TRUSTEES |
SCHIFF MAURICE L & SHARON N TRS |
||
|
12/12/2008 |
|
Deeds |
$0 |
BACHMAN RICHARD K & JUDITH D |
BACHMAN RICHARD KENNETH & JUDITH DIANN TRUSTEES |
||
|
9/1/1984 |
|
Historical |
$0 |
|
BACHMAN RICHARD K & JUDITH D |
||
| Last Mailed Notice of Value (N.O.V.) Information/History | ||||||||
|---|---|---|---|---|---|---|---|---|
| Year | Date | Market Value | Taxable Market Value | Gross Assessed | Exemption | Net Assessed | ||
|
2026 |
02/06/2026 |
156,000 |
109,330 |
12,025 |
0 |
12,025 |
||
|
2025 |
01/31/2025 |
152,500 |
104,124 |
11,453 |
0 |
11,453 |
||
|
2024 |
01/22/2024 |
145,500 |
99,166 |
10,907 |
0 |
10,907 |
||
|
2023 |
01/23/2023 |
134,000 |
94,444 |
10,388 |
0 |
10,388 |
||
|
2022 |
02/22/2022 |
117,000 |
89,947 |
9,893 |
0 |
9,893 |
||
| Property Building Permit History | |||||||||||
|---|---|---|---|---|---|---|---|---|---|---|---|
| Issued | Permit # | Provided by | Bldg # | Description | Est Construction Cost | Status | |||||
| No Building Permit records returned. | |||||||||||
| Click button on building number to access detailed information: | ||||||
|---|---|---|---|---|---|---|
| Bldg # | Vacant/Improved Land | Bldg Description | Year Built | SqFt | # Stories | |
|
1 |
Improved |
Duplex One Story |
1949 |
1,478 |
1 Stories |
|