|
|
|
| Larry Stein Oklahoma County Assessor (405) 713-1200 - Public Access System |
|
|
|
|
|
|
| Real Property Display - Screen Produced 3/17/2026 6:07:39 AM | ||||
|---|---|---|---|---|
| Account: R150442450 | Type: Residential | Location: |
522 E HARMON DR |
|
| Building Name/Occupant: |
|
MIDWEST CITY |
||
| Owner Name 1: | LOTL LLC |
Parcel PIN#: |
1438-15-044-2450 |
|
| Owner Name 2: | 1/4 section #: |
1438 |
||
| Owner Name 3: | Parent Acct: |
|
||
| Billing Address: | 208 E ATKINSON DR | Tax District: |
|
|
| City, State, Zip | MIDWEST CITY, OK 73110-5320 | School System: |
Mid-Del #52 |
|
|
Country: (If noted) |
Land Size: |
0.1800 Acres |
||
|
Land Value: 22,736 |
|
|||
|
Sect 10-T11N-R2W Qtr SE |
PARK REPLAT SUB ADD
Block
003
Lot
004
|
|||
| Full Legal Description: PARK REPLAT SUB ADD 003 004 |
| Photo & Sketch (if available) | Comp Sales (ordered by relevancy) |
|
||||||||||||||||||
|
||||||||||||||||||||
| Value History (*The County Treasurer 405-713-1300 posts & collects actual tax amounts. Contact information HERE) | |||||||||||||
|---|---|---|---|---|---|---|---|---|---|---|---|---|---|
| Year | Market Value | Taxable Mkt Value | Gross Assessed | Exemption | Net Assessed | Millage | Est. Tax | Tax Savings | |||||
|
2025 |
148,000 |
80,712 |
8,877 |
0 |
8,877 |
119.58 |
$1,062 |
$885 |
|||||
|
2024 |
140,000 |
76,869 |
8,454 |
0 |
8,454 |
122.51 |
$1,036 |
$851 |
|||||
|
2023 |
128,000 |
73,209 |
8,052 |
0 |
8,052 |
117.71 |
$948 |
$709 |
|||||
|
2022 |
110,500 |
69,723 |
7,669 |
0 |
7,669 |
116.64 |
$895 |
$523 |
|||||
|
2021 |
89,000 |
66,403 |
7,303 |
0 |
7,303 |
119.45 |
$873 |
$297 |
|||||
| Property Account Status/Adjustments/Exemptions | ||
|---|---|---|
| Account # | Exemption Description | Amount |
|
R150442450 |
5% Capped Account |
0 |
| Property Deed Transaction History (Recorded in the County Clerk's Office) | ||||||||||
|---|---|---|---|---|---|---|---|---|---|---|
| Date | Type | Book | Page | Price | Grantor | Grantee | ||||
|
8/23/2007 |
|
Hmstd Off & |
$0 |
DEKAT RICK & CAROLYN |
LOTL LLC |
|||||
|
11/28/1994 |
|
Historical |
$16,000 |
DOORNENBAL MARK JR |
DEKAT RICK & CAROLYN |
|||||
|
7/28/1994 |
|
Historical |
$0 |
TAYLOR CARLOS N |
DOORNENBAL MARK JR |
|||||
|
5/26/1988 |
|
Historical |
$0 |
SECRETARY OF HOUSING |
TAYLOR CARLOS N |
|||||
|
1/11/1988 |
|
Historical |
$0 |
THREE OAKS INVESTMENT INC |
SECRETARY OF HOUSING |
|||||
| Last Mailed Notice of Value (N.O.V.) Information/History | ||||||||
|---|---|---|---|---|---|---|---|---|
| Year | Date | Market Value | Taxable Market Value | Gross Assessed | Exemption | Net Assessed | ||
|
2026 |
02/06/2026 |
149,500 |
84,747 |
9,321 |
0 |
9,321 |
||
|
2025 |
01/31/2025 |
148,000 |
80,712 |
8,877 |
0 |
8,877 |
||
|
2024 |
01/22/2024 |
140,000 |
76,869 |
8,454 |
0 |
8,454 |
||
|
2023 |
01/23/2023 |
128,000 |
73,209 |
8,052 |
0 |
8,052 |
||
|
2022 |
02/22/2022 |
110,500 |
69,723 |
7,668 |
0 |
7,668 |
||
| Property Building Permit History | |||||||||||
|---|---|---|---|---|---|---|---|---|---|---|---|
| Issued | Permit # | Provided by | Bldg # | Description | Est Construction Cost | Status | |||||
| No Building Permit records returned. | |||||||||||
| Click button on building number to access detailed information: | ||||||
|---|---|---|---|---|---|---|
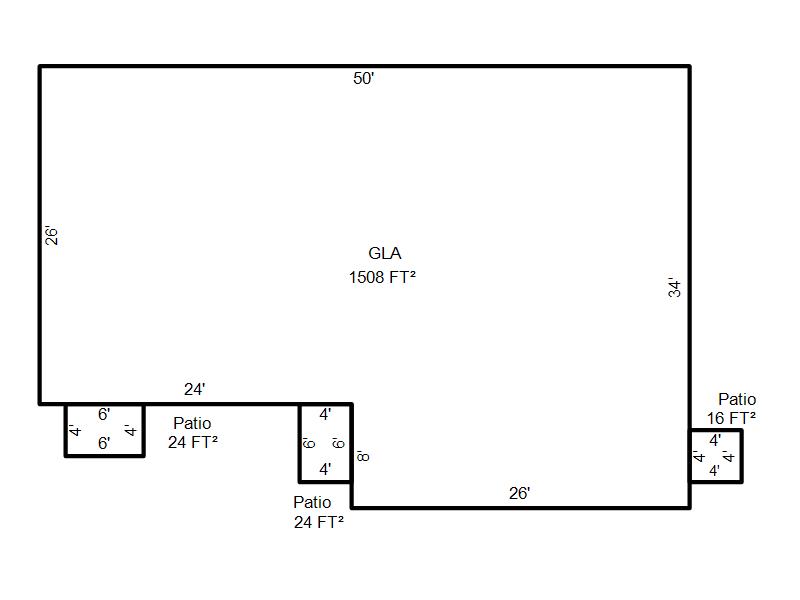
| Bldg # | Vacant/Improved Land | Bldg Description | Year Built | SqFt | # Stories | |
|
1 |
Improved |
Duplex One Story |
1949 |
1,508 |
1 Stories |
|