|
|
|
| Larry Stein Oklahoma County Assessor (405) 713-1200 - Public Access System |
|
|
|
|
|
|
| Real Property Display - Screen Produced 3/17/2026 6:02:46 AM | ||||
|---|---|---|---|---|
| Account: R150443500 | Type: Residential | Location: |
520 E GRUMMAN DR |
|
| Building Name/Occupant: |
|
MIDWEST CITY |
||
| Owner Name 1: | BARRACUDA INVESTMENTS LLC |
Parcel PIN#: |
1438-15-044-3500 |
|
| Owner Name 2: | 1/4 section #: |
1438 |
||
| Owner Name 3: | Parent Acct: |
|
||
| Billing Address: | PO BOX 1617 | Tax District: |
|
|
| City, State, Zip | NORMAN, OK 73070-1617 | School System: |
Mid-Del #52 |
|
|
Country: (If noted) |
Land Size: |
0.1286 Acres |
||
|
Land Value: 16,240 |
|
|||
|
Sect 10-T11N-R2W Qtr SE |
PARK REPLAT SUB ADD
Block
004
Lot
003
|
|||
| Full Legal Description: PARK REPLAT SUB ADD 004 003 |
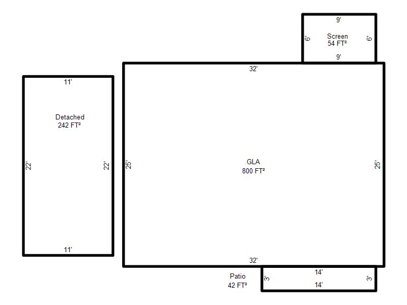
| Photo & Sketch (if available) | Comp Sales (ordered by relevancy) |
|
||||||||||||||||||
|
||||||||||||||||||||
| Value History (*The County Treasurer 405-713-1300 posts & collects actual tax amounts. Contact information HERE) | |||||||||||||
|---|---|---|---|---|---|---|---|---|---|---|---|---|---|
| Year | Market Value | Taxable Mkt Value | Gross Assessed | Exemption | Net Assessed | Millage | Est. Tax | Tax Savings | |||||
|
2025 |
85,000 |
60,621 |
6,667 |
0 |
6,667 |
119.58 |
$797 |
$321 |
|||||
|
2024 |
79,000 |
57,735 |
6,350 |
0 |
6,350 |
122.51 |
$778 |
$287 |
|||||
|
2023 |
68,500 |
54,986 |
6,048 |
0 |
6,048 |
117.71 |
$712 |
$175 |
|||||
|
2022 |
62,500 |
52,368 |
5,760 |
0 |
5,760 |
116.64 |
$672 |
$130 |
|||||
|
2021 |
53,500 |
49,875 |
5,486 |
0 |
5,486 |
119.45 |
$655 |
$48 |
|||||
| Property Account Status/Adjustments/Exemptions | ||
|---|---|---|
| Account # | Exemption Description | Amount |
|
R150443500 |
5% Capped Account |
0 |
| Property Deed Transaction History (Recorded in the County Clerk's Office) | ||||||||||
|---|---|---|---|---|---|---|---|---|---|---|
| Date | Type | Book | Page | Price | Grantor | Grantee | ||||
|
3/10/2017 |
|
Deeds |
$40,000 |
CZL LLC |
BARRACUDA INVESTMENTS LLC |
|||||
|
5/4/2015 |
|
Hmstd Off & |
$0 |
MCNEELY RAY L |
CZL LLC |
|||||
|
3/11/2003 |
|
Deeds |
$23,000 |
SEYMOUR JACK C CO TRS ETAL SEYMOUR WILLIAM J CO TRS |
MCNEELY RAY |
|||||
|
4/11/2001 |
|
Deeds |
$0 |
SEYMOUR JACK TRS SEYMOUR JACK C REV TRUST |
SEYMOUR JACK C CO TRS ETAL SEYMOUR WILLIAM J CO TRS |
|||||
|
6/11/1991 |
|
Historical |
$0 |
SEYMOUR JACK |
SEYMOUR JACK TRS |
|||||
| Last Mailed Notice of Value (N.O.V.) Information/History | ||||||||
|---|---|---|---|---|---|---|---|---|
| Year | Date | Market Value | Taxable Market Value | Gross Assessed | Exemption | Net Assessed | ||
|
2026 |
02/06/2026 |
85,500 |
63,652 |
7,001 |
0 |
7,001 |
||
|
2025 |
01/31/2025 |
85,000 |
60,621 |
6,667 |
0 |
6,667 |
||
|
2024 |
01/22/2024 |
79,000 |
57,735 |
6,350 |
0 |
6,350 |
||
|
2023 |
01/23/2023 |
68,500 |
54,986 |
6,048 |
0 |
6,048 |
||
|
2022 |
02/22/2022 |
62,500 |
52,368 |
5,760 |
0 |
5,760 |
||
| Property Building Permit History | |||||||||||
|---|---|---|---|---|---|---|---|---|---|---|---|
| Issued | Permit # | Provided by | Bldg # | Description | Est Construction Cost | Status | |||||
| No Building Permit records returned. | |||||||||||
| Click button on building number to access detailed information: | ||||||
|---|---|---|---|---|---|---|
| Bldg # | Vacant/Improved Land | Bldg Description | Year Built | SqFt | # Stories | |
|
1 |
Improved |
Ranch 1 Story |
1949 |
800 |
1 Stories |
|