|
|
|
| Larry Stein Oklahoma County Assessor (405) 713-1200 - Public Access System |
|
|
|
|
|
|
| Real Property Display - Screen Produced 3/22/2026 7:24:45 AM | ||||
|---|---|---|---|---|
| Account: R120261190 | Type: Residential | Location: |
6216 RAMBRIDGE DR |
|
| Building Name/Occupant: |
|
OKLAHOMA CITY |
||
| Owner Name 1: | DAVIS J BRUCE & DANA J TRS |
Parcel PIN#: |
3881-12-026-1190 |
|
| Owner Name 2: | DAVIS BRUCE & DANA LIVING TRUST | 1/4 section #: |
3881 |
|
| Owner Name 3: | Parent Acct: |
|
||
| Billing Address: | 6216 RAMBRIDGE DR | Tax District: |
|
|
| City, State, Zip | OKLAHOMA CITY , OK 73162 | School System: |
Putnam City #1 |
|
|
Country: (If noted) |
Land Size: |
0.1997 Acres |
||
|
Land Value: 49,083 |
|
|||
|
Sect 21-T13N-R4W Qtr NE |
WARWICK ESTATES SEC III
Block
016
Lot
000
|
|||
| Full Legal Description: WARWICK ESTATES SEC III 016 000 LOT 20 EX THE E2FT |
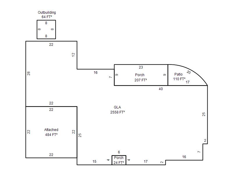
| Photo & Sketch (if available) | Comp Sales (ordered by relevancy) |
|
||||||||||||||||||
|
||||||||||||||||||||
| Value History (*The County Treasurer 405-713-1300 posts & collects actual tax amounts. Contact information HERE) | |||||||||||||
|---|---|---|---|---|---|---|---|---|---|---|---|---|---|
| Year | Market Value | Taxable Mkt Value | Gross Assessed | Exemption | Net Assessed | Millage | Est. Tax | Tax Savings | |||||
|
2025 |
348,500 |
272,242 |
29,946 |
1,000 |
28,946 |
123.17 |
$3,565 |
$1,156 |
|||||
|
2024 |
335,500 |
264,313 |
29,073 |
1,000 |
28,073 |
122.30 |
$3,434 |
$1,080 |
|||||
|
2023 |
335,500 |
256,615 |
28,227 |
1,000 |
27,227 |
121.91 |
$3,319 |
$1,180 |
|||||
|
2022 |
279,500 |
249,141 |
27,404 |
1,000 |
26,404 |
123.41 |
$3,259 |
$536 |
|||||
|
2021 |
259,000 |
241,885 |
26,606 |
1,000 |
25,606 |
122.23 |
$3,130 |
$352 |
|||||
| Property Account Status/Adjustments/Exemptions | ||
|---|---|---|
| Account # | Exemption Description | Amount |
|
R120261190 |
3% Cap Homestead |
0 |
|
R120261190 |
Homestead |
1,000 |
| Property Deed Transaction History (Recorded in the County Clerk's Office) | |||||||
|---|---|---|---|---|---|---|---|
| Date | Type | Book | Page | Price | Grantor | Grantee | |
|
6/5/2018 |
|
Deeds |
$0 |
DAVIS J BRUCE & DANA J |
DAVIS J BRUCE & DANA J TRS |
||
|
9/1/1998 |
|
Historical |
$188,500 |
KOELSCH JAMES C JR & BARBARA G |
DAVIS J BRUCE & DANA J |
||
|
6/1/1983 |
|
Historical |
$0 |
|
KOELSCH JAMES C JR & BARBARA G |
||
| Last Mailed Notice of Value (N.O.V.) Information/History | ||||||||
|---|---|---|---|---|---|---|---|---|
| Year | Date | Market Value | Taxable Market Value | Gross Assessed | Exemption | Net Assessed | ||
|
2026 |
02/23/2026 |
364,000 |
280,409 |
30,844 |
1,000 |
29,844 |
||
|
2025 |
02/14/2025 |
348,500 |
272,242 |
29,946 |
1,000 |
28,946 |
||
|
2024 |
02/13/2024 |
335,500 |
264,313 |
29,073 |
1,000 |
28,073 |
||
|
2023 |
02/14/2023 |
335,500 |
256,615 |
28,227 |
1,000 |
27,227 |
||
|
2022 |
03/15/2022 |
279,500 |
249,141 |
27,404 |
1,000 |
26,404 |
||
| Property Building Permit History | |||||||||||
|---|---|---|---|---|---|---|---|---|---|---|---|
| Issued | Permit # | Provided by | Bldg # | Description | Est Construction Cost | Status | |||||
| No Building Permit records returned. | |||||||||||
| Click button on building number to access detailed information: | ||||||
|---|---|---|---|---|---|---|
| Bldg # | Vacant/Improved Land | Bldg Description | Year Built | SqFt | # Stories | |
|
1 |
Improved |
Ranch 1 Story |
1982 |
2,558 |
1 Stories |
|