|
|
|
| Larry Stein Oklahoma County Assessor (405) 713-1200 - Public Access System |
|
|
|
|
|
|
| Real Property Display - Screen Produced 3/22/2026 7:23:12 AM | ||||
|---|---|---|---|---|
| Account: R120261280 | Type: Residential | Location: |
6212 WINFIELD DR |
|
| Building Name/Occupant: |
|
OKLAHOMA CITY |
||
| Owner Name 1: | GREENWOOD DENNIS K & RAELENE L |
Parcel PIN#: |
3881-12-026-1280 |
|
| Owner Name 2: | 1/4 section #: |
3881 |
||
| Owner Name 3: | Parent Acct: |
|
||
| Billing Address: | 6212 WINFIELD DR | Tax District: |
|
|
| City, State, Zip | OKLAHOMA CITY, OK 73162 | School System: |
Putnam City #1 |
|
|
Country: (If noted) |
UNITED STATES |
Land Size: |
0.2701 Acres |
|
|
Land Value: 51,666 |
|
|||
|
Sect 21-T13N-R4W Qtr NE |
WARWICK ESTATES SEC III
Block
017
Lot
005
|
|||
| Full Legal Description: WARWICK ESTATES SEC III 017 005 |
| Photo & Sketch (if available) | Comp Sales (ordered by relevancy) |
|
||||||||||||||||||
|
||||||||||||||||||||
| Value History (*The County Treasurer 405-713-1300 posts & collects actual tax amounts. Contact information HERE) | |||||||||||||
|---|---|---|---|---|---|---|---|---|---|---|---|---|---|
| Year | Market Value | Taxable Mkt Value | Gross Assessed | Exemption | Net Assessed | Millage | Est. Tax | Tax Savings | |||||
|
2025 |
332,500 |
332,500 |
36,575 |
36,575 |
0 |
123.17 |
$0 |
$4,505 |
|||||
|
2024 |
329,000 |
329,000 |
36,190 |
36,190 |
0 |
122.30 |
$0 |
$4,426 |
|||||
|
2023 |
321,000 |
249,687 |
27,464 |
1,000 |
26,464 |
121.91 |
$3,226 |
$1,078 |
|||||
|
2022 |
265,500 |
242,415 |
26,665 |
1,000 |
25,665 |
123.41 |
$3,167 |
$437 |
|||||
|
2021 |
245,000 |
235,355 |
25,889 |
1,000 |
24,889 |
122.23 |
$3,042 |
$252 |
|||||
| Property Account Status/Adjustments/Exemptions | ||
|---|---|---|
| Account # | Exemption Description | Amount |
|
R120261280 |
3% Cap Homestead |
0 |
|
R120261280 |
100% DAV Exemption |
100 |
|
R120261280 |
DAV Homestead |
0 |
| Property Deed Transaction History (Recorded in the County Clerk's Office) | |||||||
|---|---|---|---|---|---|---|---|
| Date | Type | Book | Page | Price | Grantor | Grantee | |
|
5/18/2023 |
|
Deeds |
$290,000 |
REINHARDT MARY JANE TRS |
GREENWOOD DENNIS K & RAELENE L |
||
|
12/6/1994 |
|
Historical |
$0 |
REINHARDT HERBERT PAUL |
REINHARDT MARY JANE TRS |
||
|
5/28/1992 |
|
Historical |
$0 |
CONTINENTAL FEDERAL SAVINGS |
REINHARDT HERBERT PAUL |
||
|
11/28/1988 |
|
Historical |
$0 |
CASTON EDWARD R & JOAN H |
CONTINENTAL FEDERAL SAVINGS |
||
|
3/1/1986 |
|
Historical |
$140,000 |
|
CASTON EDWARD R & JOAN H |
||
| Last Mailed Notice of Value (N.O.V.) Information/History | ||||||||
|---|---|---|---|---|---|---|---|---|
| Year | Date | Market Value | Taxable Market Value | Gross Assessed | Exemption | Net Assessed | ||
|
2026 |
02/23/2026 |
333,000 |
333,000 |
36,630 |
36,630 |
0 |
||
|
2025 |
02/14/2025 |
332,500 |
332,500 |
36,575 |
36,575 |
0 |
||
|
2024 |
02/13/2024 |
329,000 |
329,000 |
36,190 |
36,190 |
0 |
||
|
2023 |
02/14/2023 |
321,000 |
249,687 |
27,464 |
1,000 |
26,464 |
||
|
2022 |
03/15/2022 |
265,500 |
242,415 |
26,665 |
1,000 |
25,665 |
||
| Property Building Permit History | |||||||||||
|---|---|---|---|---|---|---|---|---|---|---|---|
| Issued | Permit # | Provided by | Bldg # | Description | Est Construction Cost | Status | |||||
| No Building Permit records returned. | |||||||||||
| Click button on building number to access detailed information: | ||||||
|---|---|---|---|---|---|---|
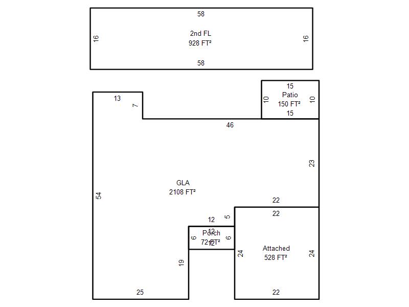
| Bldg # | Vacant/Improved Land | Bldg Description | Year Built | SqFt | # Stories | |
|
1 |
Improved |
1½ Story Fin |
1982 |
3,036 |
1.5 Stories |
|