|
|
|
| Larry Stein Oklahoma County Assessor (405) 713-1200 - Public Access System |
|
|
|
|
|
|
| Real Property Display - Screen Produced 3/22/2026 7:23:12 AM | ||||
|---|---|---|---|---|
| Account: R120261710 | Type: Residential | Location: |
12008 DOVER DR |
|
| Building Name/Occupant: |
|
OKLAHOMA CITY |
||
| Owner Name 1: | FAIRMAN JONATHAN |
Parcel PIN#: |
3881-12-026-1710 |
|
| Owner Name 2: | FAIRMAN MELISSA RABOLD | 1/4 section #: |
3881 |
|
| Owner Name 3: | Parent Acct: |
|
||
| Billing Address: | 12008 DOVER DR | Tax District: |
|
|
| City, State, Zip | OKLAHOMA CITY, OK 73162-1703 | School System: |
Putnam City #1 |
|
|
Country: (If noted) |
Land Size: |
0.2058 Acres |
||
|
Land Value: 48,854 |
|
|||
|
Sect 21-T13N-R4W Qtr NE |
WARWICK ESTATES SEC III
Block
020
Lot
008
|
|||
| Full Legal Description: WARWICK ESTATES SEC III 020 008 |
| Photo & Sketch (if available) | Comp Sales (ordered by relevancy) |
|
||||||||||||||||||
|
||||||||||||||||||||
| Value History (*The County Treasurer 405-713-1300 posts & collects actual tax amounts. Contact information HERE) | |||||||||||||
|---|---|---|---|---|---|---|---|---|---|---|---|---|---|
| Year | Market Value | Taxable Mkt Value | Gross Assessed | Exemption | Net Assessed | Millage | Est. Tax | Tax Savings | |||||
|
2025 |
422,500 |
410,970 |
45,206 |
1,000 |
44,206 |
123.17 |
$5,445 |
$279 |
|||||
|
2024 |
399,000 |
399,000 |
43,890 |
1,000 |
42,890 |
122.30 |
$5,245 |
$122 |
|||||
|
2023 |
397,500 |
310,104 |
34,110 |
1,000 |
33,110 |
121.91 |
$4,037 |
$1,294 |
|||||
|
2022 |
332,500 |
301,072 |
33,116 |
1,000 |
32,116 |
123.41 |
$3,964 |
$550 |
|||||
|
2021 |
305,500 |
292,303 |
32,152 |
1,000 |
31,152 |
122.23 |
$3,808 |
$300 |
|||||
| Property Account Status/Adjustments/Exemptions | ||
|---|---|---|
| Account # | Exemption Description | Amount |
|
R120261710 |
3% Cap Homestead |
0 |
|
R120261710 |
Homestead |
1,000 |
| Property Deed Transaction History (Recorded in the County Clerk's Office) | ||||||||||
|---|---|---|---|---|---|---|---|---|---|---|
| Date | Type | Book | Page | Price | Grantor | Grantee | ||||
|
9/28/2023 |
|
Deeds |
$400,000 |
CROOK MARCIA TRS |
FAIRMAN JONATHAN |
|||||
|
3/24/2023 |
|
Hmstd Off & |
$0 |
CROOK RICHARD H TRS |
CROOK MARCIA TRS |
|||||
|
6/24/2013 |
|
Deeds |
$0 |
CROOK RICHARD H TRS & REV TRUST |
CROOK RICHARD H |
|||||
|
6/24/2013 |
|
Deeds |
$0 |
CROOK RICHARD H |
CROOK RICHARD H TRS |
|||||
|
11/17/2008 |
|
Deeds |
$0 |
CROOK RICHARD H |
CROOK RICHARD H TRS CROOK RICHARD H REV TRUST |
|||||
| Last Mailed Notice of Value (N.O.V.) Information/History | ||||||||
|---|---|---|---|---|---|---|---|---|
| Year | Date | Market Value | Taxable Market Value | Gross Assessed | Exemption | Net Assessed | ||
|
2026 |
02/23/2026 |
423,500 |
423,299 |
46,562 |
1,000 |
45,562 |
||
|
2025 |
02/14/2025 |
422,500 |
410,970 |
45,206 |
1,000 |
44,206 |
||
|
2024 |
02/13/2024 |
399,000 |
399,000 |
43,890 |
0 |
43,890 |
||
|
2023 |
02/14/2023 |
397,500 |
310,104 |
34,110 |
1,000 |
33,110 |
||
|
2022 |
03/15/2022 |
332,500 |
301,072 |
33,116 |
1,000 |
32,116 |
||
| Property Building Permit History | |||||||||||
|---|---|---|---|---|---|---|---|---|---|---|---|
| Issued | Permit # | Provided by | Bldg # | Description | Est Construction Cost | Status | |||||
| No Building Permit records returned. | |||||||||||
| Click button on building number to access detailed information: | ||||||
|---|---|---|---|---|---|---|
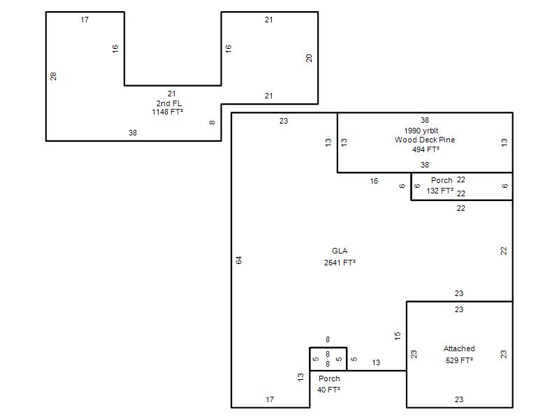
| Bldg # | Vacant/Improved Land | Bldg Description | Year Built | SqFt | # Stories | |
|
1 |
Improved |
1½ Story Fin |
1983 |
3,689 |
1.5 Stories |
|