|
|
|
| Larry Stein Oklahoma County Assessor (405) 713-1200 - Public Access System |
|
|
|
|
|
|
| Real Property Display - Screen Produced 3/26/2026 6:01:00 AM | ||||
|---|---|---|---|---|
| Account: R148941040 | Type: Residential | Location: |
11600 WOODBRIDGE RD |
|
| Building Name/Occupant: |
|
OKLAHOMA CITY |
||
| Owner Name 1: | KUTCH MATT K & KATHY M |
Parcel PIN#: |
3881-14-894-1040 |
|
| Owner Name 2: | 1/4 section #: |
3881 |
||
| Owner Name 3: | Parent Acct: |
|
||
| Billing Address: | 11600 WOODBRIDGE RD | Tax District: |
|
|
| City, State, Zip | OKLAHOMA CITY, OK 73162-3215 | School System: |
Putnam City #1 |
|
|
Country: (If noted) |
Land Size: |
0.4500 Acres |
||
|
Land Value: 116,436 |
|
|||
|
Sect 21-T13N-R4W Qtr NE |
WARWICK ESTATES
Block
001
Lot
000
|
|||
| Full Legal Description: WARWICK ESTATES 001 000 LOTS 1 & 2 |
| Photo & Sketch (if available) | Comp Sales (ordered by relevancy) |
|
||||||||||||||||||
|
||||||||||||||||||||
| Value History (*The County Treasurer 405-713-1300 posts & collects actual tax amounts. Contact information HERE) | |||||||||||||
|---|---|---|---|---|---|---|---|---|---|---|---|---|---|
| Year | Market Value | Taxable Mkt Value | Gross Assessed | Exemption | Net Assessed | Millage | Est. Tax | Tax Savings | |||||
|
2026 |
524,500 |
420,902 |
46,298 |
1,000 |
45,298 |
123.17 |
$5,580 |
$1,527 |
|||||
|
2025 |
515,000 |
408,643 |
44,950 |
1,000 |
43,950 |
123.17 |
$5,413 |
$1,564 |
|||||
|
2024 |
495,500 |
396,741 |
43,641 |
1,000 |
42,641 |
122.30 |
$5,215 |
$1,451 |
|||||
|
2023 |
491,000 |
385,186 |
42,370 |
1,000 |
41,370 |
121.91 |
$5,043 |
$1,541 |
|||||
|
2022 |
410,000 |
373,967 |
41,136 |
1,000 |
40,136 |
123.41 |
$4,953 |
$613 |
|||||
| Property Account Status/Adjustments/Exemptions | ||
|---|---|---|
| Account # | Exemption Description | Amount |
|
R148941040 |
Homestead |
1,000 |
|
R148941040 |
3% Cap Homestead |
0 |
| Property Deed Transaction History (Recorded in the County Clerk's Office) | |||||||
|---|---|---|---|---|---|---|---|
| Date | Type | Book | Page | Price | Grantor | Grantee | |
|
9/10/1997 |
|
Historical |
$222,000 |
WOLF MIKE & BONNIE J |
KUTCH MATT K & KATHY M |
||
|
12/4/1989 |
|
Historical |
$0 |
NORTHWEST FEDERAL |
WOLF MIKE & BONNIE J |
||
|
3/27/1989 |
|
Historical |
$0 |
NESOM DANIEL E |
NORTHWEST FEDERAL |
||
|
6/1/1985 |
|
Historical |
$0 |
|
NESOM DANIEL E |
||
| Last Mailed Notice of Value (N.O.V.) Information/History | ||||||||
|---|---|---|---|---|---|---|---|---|
| Year | Date | Market Value | Taxable Market Value | Gross Assessed | Exemption | Net Assessed | ||
|
2026 |
02/23/2026 |
524,500 |
420,902 |
46,298 |
1,000 |
45,298 |
||
|
2025 |
02/14/2025 |
515,000 |
408,643 |
44,950 |
1,000 |
43,950 |
||
|
2024 |
02/13/2024 |
495,500 |
396,741 |
43,641 |
1,000 |
42,641 |
||
|
2023 |
02/14/2023 |
491,000 |
385,186 |
42,370 |
1,000 |
41,370 |
||
|
2022 |
03/15/2022 |
410,000 |
373,967 |
41,136 |
1,000 |
40,136 |
||
| Property Building Permit History | ||||||
|---|---|---|---|---|---|---|
| Issued | Permit # | Provided by | Bldg # | Description | Est Construction Cost | Status |
|
10/1/1999 |
10243882 |
OKLAHOMA CITY |
1 |
Other |
0 |
Inactive |
| Click button on building number to access detailed information: | ||||||
|---|---|---|---|---|---|---|
| Bldg # | Vacant/Improved Land | Bldg Description | Year Built | SqFt | # Stories | |
|
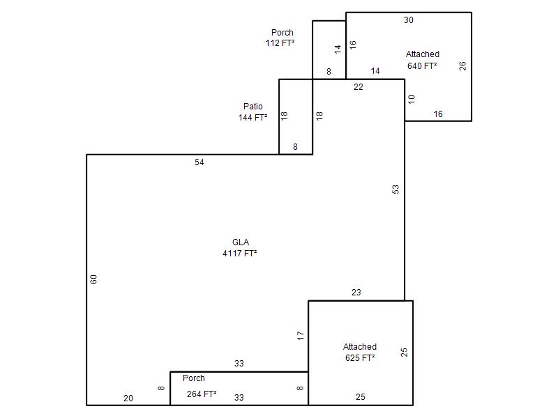
1 |
Improved |
Ranch 1 Story |
1978 |
4,117 |
1 Stories |
|