|
|
|
| Larry Stein Oklahoma County Assessor (405) 713-1200 - Public Access System |
|
|
|
|
|
|
| Real Property Display - Screen Produced 3/26/2026 5:57:12 AM | ||||
|---|---|---|---|---|
| Account: R148941170 | Type: Residential | Location: |
6016 KINGSBRIDGE DR |
|
| Building Name/Occupant: |
|
OKLAHOMA CITY |
||
| Owner Name 1: | DODSON DRU |
Parcel PIN#: |
3881-14-894-1170 |
|
| Owner Name 2: | DODSON JO HELEN | 1/4 section #: |
3881 |
|
| Owner Name 3: | Parent Acct: |
|
||
| Billing Address: | 6016 KINGSBRIDGE DR | Tax District: |
|
|
| City, State, Zip | OKLAHOMA CITY, OK 73162-3208 | School System: |
Putnam City #1 |
|
|
Country: (If noted) |
Land Size: |
0.2537 Acres |
||
|
Land Value: 72,930 |
|
|||
|
Sect 21-T13N-R4W Qtr NE |
WARWICK ESTATES
Block
002
Lot
002
|
|||
| Full Legal Description: WARWICK ESTATES 002 002 |
| Photo & Sketch (if available) | Comp Sales (ordered by relevancy) |
|
||||||||||||||||||
|
||||||||||||||||||||
| Value History (*The County Treasurer 405-713-1300 posts & collects actual tax amounts. Contact information HERE) | |||||||||||||
|---|---|---|---|---|---|---|---|---|---|---|---|---|---|
| Year | Market Value | Taxable Mkt Value | Gross Assessed | Exemption | Net Assessed | Millage | Est. Tax | Tax Savings | |||||
|
2026 |
347,000 |
347,000 |
38,170 |
1,000 |
37,170 |
123.17 |
$4,578 |
$123 |
|||||
|
2025 |
340,000 |
229,000 |
25,190 |
1,000 |
24,190 |
123.17 |
$2,979 |
$1,627 |
|||||
|
2024 |
324,500 |
229,000 |
25,190 |
1,000 |
24,190 |
122.30 |
$2,958 |
$1,407 |
|||||
|
2023 |
321,500 |
229,000 |
25,190 |
1,000 |
24,190 |
121.91 |
$2,949 |
$1,362 |
|||||
|
2022 |
269,000 |
229,000 |
25,190 |
1,000 |
24,190 |
123.41 |
$2,985 |
$666 |
|||||
| Property Account Status/Adjustments/Exemptions | ||
|---|---|---|
| Account # | Exemption Description | Amount |
|
R148941170 |
Homestead |
1,000 |
| Property Deed Transaction History (Recorded in the County Clerk's Office) | |||||||
|---|---|---|---|---|---|---|---|
| Date | Type | Book | Page | Price | Grantor | Grantee | |
|
4/17/2025 |
|
Deeds |
$349,000 |
KELLY PAUL J JR |
DODSON DRU |
||
|
5/14/2021 |
|
Deeds |
$0 |
KELLY PAUL J JR & SARA ALICE |
KELLY SARA ALICE |
||
|
1/1/1981 |
|
Historical |
$0 |
|
KELLY PAUL J JR & SARA ALICE |
||
| Last Mailed Notice of Value (N.O.V.) Information/History | ||||||||
|---|---|---|---|---|---|---|---|---|
| Year | Date | Market Value | Taxable Market Value | Gross Assessed | Exemption | Net Assessed | ||
|
2026 |
02/23/2026 |
347,000 |
347,000 |
38,170 |
0 |
38,170 |
||
|
2025 |
02/14/2025 |
340,000 |
229,000 |
25,190 |
1,000 |
24,190 |
||
|
2024 |
02/13/2024 |
324,500 |
229,000 |
25,190 |
1,000 |
24,190 |
||
|
2023 |
02/14/2023 |
321,500 |
229,000 |
25,190 |
1,000 |
24,190 |
||
|
2022 |
03/15/2022 |
269,000 |
229,000 |
25,190 |
1,000 |
24,190 |
||
| Property Building Permit History | |||||||||||
|---|---|---|---|---|---|---|---|---|---|---|---|
| Issued | Permit # | Provided by | Bldg # | Description | Est Construction Cost | Status | |||||
| No Building Permit records returned. | |||||||||||
| Click button on building number to access detailed information: | ||||||
|---|---|---|---|---|---|---|
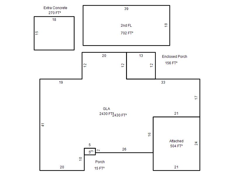
| Bldg # | Vacant/Improved Land | Bldg Description | Year Built | SqFt | # Stories | |
|
1 |
Improved |
1½ Story Fin |
1976 |
3,132 |
1.5 Stories |
|