|
|
|
| Larry Stein Oklahoma County Assessor (405) 713-1200 - Public Access System |
|
|
|
|
|
|
| Real Property Display - Screen Produced 3/26/2026 5:55:12 AM | ||||
|---|---|---|---|---|
| Account: R148941370 | Type: Residential | Location: |
6225 KINGSBRIDGE DR |
|
| Building Name/Occupant: |
|
OKLAHOMA CITY |
||
| Owner Name 1: | GIBSON CATHLEEN L TRS |
Parcel PIN#: |
3881-14-894-1370 |
|
| Owner Name 2: | GIBSON CATHLEEN L TRUST | 1/4 section #: |
3881 |
|
| Owner Name 3: | Parent Acct: |
|
||
| Billing Address: | 6225 KINGBRIDGE DR | Tax District: |
|
|
| City, State, Zip | OKLAHOMA CITY, OK 73162-3238 | School System: |
Putnam City #1 |
|
|
Country: (If noted) |
Land Size: |
0.2020 Acres |
||
|
Land Value: 58,080 |
|
|||
|
Sect 21-T13N-R4W Qtr NE |
WARWICK ESTATES
Block
002
Lot
022
|
|||
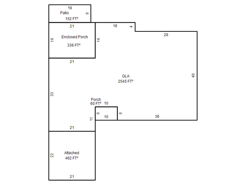
| Full Legal Description: WARWICK ESTATES 002 022 |
| Photo & Sketch (if available) | Comp Sales (ordered by relevancy) |
|
||||||||||||||||||
|
||||||||||||||||||||
| Value History (*The County Treasurer 405-713-1300 posts & collects actual tax amounts. Contact information HERE) | |||||||||||||
|---|---|---|---|---|---|---|---|---|---|---|---|---|---|
| Year | Market Value | Taxable Mkt Value | Gross Assessed | Exemption | Net Assessed | Millage | Est. Tax | Tax Savings | |||||
|
2026 |
311,000 |
299,013 |
32,891 |
0 |
32,891 |
123.17 |
$4,051 |
$162 |
|||||
|
2025 |
311,000 |
284,775 |
31,324 |
0 |
31,324 |
123.17 |
$3,858 |
$355 |
|||||
|
2024 |
306,000 |
271,215 |
29,833 |
0 |
29,833 |
122.30 |
$3,649 |
$468 |
|||||
|
2023 |
293,500 |
258,300 |
28,413 |
0 |
28,413 |
121.91 |
$3,464 |
$472 |
|||||
|
2022 |
246,000 |
246,000 |
27,060 |
0 |
27,060 |
123.41 |
$3,339 |
$0 |
|||||
| Property Account Status/Adjustments/Exemptions | ||
|---|---|---|
| Account # | Exemption Description | Amount |
|
R148941370 |
5% Capped Account |
0 |
| Property Deed Transaction History (Recorded in the County Clerk's Office) | ||||||||||
|---|---|---|---|---|---|---|---|---|---|---|
| Date | Type | Book | Page | Price | Grantor | Grantee | ||||
|
11/10/2021 |
|
Deeds |
$250,000 |
BRODIE ANNE C |
GIBSON CATHLEEN L TRS |
|||||
|
7/21/2016 |
|
Deeds |
$212,000 |
HUTCHISON ANTHONY M HUTCHISON JANE NELSON |
BRODIE ANNE C |
|||||
|
11/10/1993 |
|
Historical |
$124,500 |
WRIGHT J ROLAND & M KATHLEEN |
HUTCHISON ANTHONY M |
|||||
|
11/4/1988 |
|
Historical |
$0 |
FEDERAL DEPOSIT |
WRIGHT J ROLAND & M KATHLEEN |
|||||
|
9/1/1986 |
|
Historical |
$0 |
REID RALPH II & JO C |
FEDERAL DEPOSIT |
|||||
| Last Mailed Notice of Value (N.O.V.) Information/History | ||||||||
|---|---|---|---|---|---|---|---|---|
| Year | Date | Market Value | Taxable Market Value | Gross Assessed | Exemption | Net Assessed | ||
|
2026 |
02/23/2026 |
311,000 |
299,013 |
32,891 |
0 |
32,891 |
||
|
2025 |
02/14/2025 |
311,000 |
284,775 |
31,324 |
0 |
31,324 |
||
|
2024 |
02/13/2024 |
306,000 |
271,215 |
29,833 |
0 |
29,833 |
||
|
2023 |
02/14/2023 |
293,500 |
258,300 |
28,413 |
0 |
28,413 |
||
|
2022 |
03/15/2022 |
246,000 |
246,000 |
27,060 |
0 |
27,060 |
||
| Property Building Permit History | |||||||||||
|---|---|---|---|---|---|---|---|---|---|---|---|
| Issued | Permit # | Provided by | Bldg # | Description | Est Construction Cost | Status | |||||
| No Building Permit records returned. | |||||||||||
| Click button on building number to access detailed information: | ||||||
|---|---|---|---|---|---|---|
| Bldg # | Vacant/Improved Land | Bldg Description | Year Built | SqFt | # Stories | |
|
1 |
Improved |
Ranch 1 Story |
1975 |
2,545 |
1 Stories |
|