|
|
|
| Larry Stein Oklahoma County Assessor (405) 713-1200 - Public Access System |
|
|
|
|
|
|
| Real Property Display - Screen Produced 3/26/2026 5:55:44 AM | ||||
|---|---|---|---|---|
| Account: R148941480 | Type: Residential | Location: |
6205 OLDE HARWICK CIR |
|
| Building Name/Occupant: |
|
OKLAHOMA CITY |
||
| Owner Name 1: | BINKLEY KENNETH LEN & VICKI LYNN REV TRUST |
Parcel PIN#: |
3881-14-894-1480 |
|
| Owner Name 2: | 1/4 section #: |
3881 |
||
| Owner Name 3: | Parent Acct: |
|
||
| Billing Address: | 6205 OLDE HARWICK CIR | Tax District: |
|
|
| City, State, Zip | OKLAHOMA CITY, OK 73162-3207 | School System: |
Putnam City #1 |
|
|
Country: (If noted) |
Land Size: |
0.2146 Acres |
||
|
Land Value: 64,152 |
|
|||
|
Sect 21-T13N-R4W Qtr NE |
WARWICK ESTATES
Block
003
Lot
010
|
|||
| Full Legal Description: WARWICK ESTATES 003 010 |
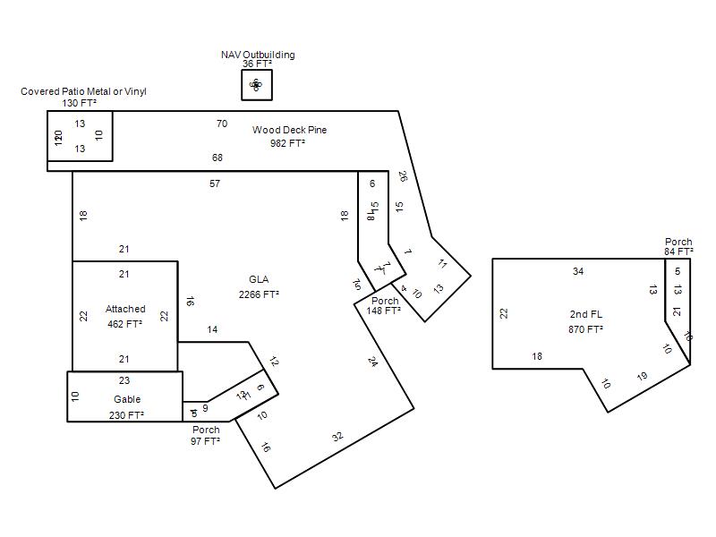
| Photo & Sketch (if available) | Comp Sales (ordered by relevancy) |
|
||||||||||||||||||
|
||||||||||||||||||||
| Value History (*The County Treasurer 405-713-1300 posts & collects actual tax amounts. Contact information HERE) | |||||||||||||
|---|---|---|---|---|---|---|---|---|---|---|---|---|---|
| Year | Market Value | Taxable Mkt Value | Gross Assessed | Exemption | Net Assessed | Millage | Est. Tax | Tax Savings | |||||
|
2026 |
364,500 |
282,988 |
31,128 |
1,000 |
30,128 |
123.17 |
$3,711 |
$1,228 |
|||||
|
2025 |
347,500 |
274,746 |
30,221 |
1,000 |
29,221 |
123.17 |
$3,599 |
$1,109 |
|||||
|
2024 |
359,500 |
266,744 |
29,341 |
1,000 |
28,341 |
122.30 |
$3,466 |
$1,370 |
|||||
|
2023 |
343,500 |
258,975 |
28,486 |
1,000 |
27,486 |
121.91 |
$3,351 |
$1,255 |
|||||
|
2022 |
276,000 |
251,433 |
27,657 |
1,000 |
26,657 |
123.41 |
$3,290 |
$457 |
|||||
| Property Account Status/Adjustments/Exemptions | ||
|---|---|---|
| Account # | Exemption Description | Amount |
|
R148941480 |
3% Cap Homestead |
0 |
|
R148941480 |
Homestead |
1,000 |
| Property Deed Transaction History (Recorded in the County Clerk's Office) | |||||||
|---|---|---|---|---|---|---|---|
| Date | Type | Book | Page | Price | Grantor | Grantee | |
|
9/19/2024 |
|
Deeds |
$0 |
BINKLEY KENNETH L & VICKI L |
BINKLEY KENNETH LEN & VICKI LYNN REV TRUST |
||
|
7/29/1999 |
|
Deeds |
$155,000 |
INGRAHAM RICHARD B |
BINKLEY KENNETH L & VICKI L |
||
|
12/2/1998 |
|
Historical |
$143,500 |
HALASA ZAID N & RIMA Z |
INGRAHAM RICHARD B |
||
|
10/7/1994 |
|
Historical |
$140,000 |
FITZGERALD RICHARD W & CONNIE |
HALASA ZAID N & RIMA Z |
||
|
4/1/1985 |
|
Historical |
$168,500 |
|
FITZGERALD RICHARD W & CONNIE |
||
| Last Mailed Notice of Value (N.O.V.) Information/History | ||||||||
|---|---|---|---|---|---|---|---|---|
| Year | Date | Market Value | Taxable Market Value | Gross Assessed | Exemption | Net Assessed | ||
|
2026 |
02/23/2026 |
364,500 |
282,988 |
31,128 |
1,000 |
30,128 |
||
|
2025 |
02/14/2025 |
347,500 |
274,746 |
30,221 |
1,000 |
29,221 |
||
|
2024 |
02/13/2024 |
359,500 |
266,744 |
29,341 |
1,000 |
28,341 |
||
|
2023 |
02/14/2023 |
343,500 |
258,975 |
28,486 |
1,000 |
27,486 |
||
|
2022 |
03/15/2022 |
276,000 |
251,433 |
27,657 |
1,000 |
26,657 |
||
| Property Building Permit History | |||||||||||
|---|---|---|---|---|---|---|---|---|---|---|---|
| Issued | Permit # | Provided by | Bldg # | Description | Est Construction Cost | Status | |||||
| No Building Permit records returned. | |||||||||||
| Click button on building number to access detailed information: | ||||||
|---|---|---|---|---|---|---|
| Bldg # | Vacant/Improved Land | Bldg Description | Year Built | SqFt | # Stories | |
|
1 |
Improved |
1½ Story Fin |
1978 |
3,136 |
1.5 Stories |
|