|
|
|
| Larry Stein Oklahoma County Assessor (405) 713-1200 - Public Access System |
|
|
|
|
|
|
| Real Property Display - Screen Produced 3/26/2026 5:55:42 AM | ||||
|---|---|---|---|---|
| Account: R148941560 | Type: Residential | Location: |
11808 WOODBRIDGE RD |
|
| Building Name/Occupant: |
|
OKLAHOMA CITY |
||
| Owner Name 1: | PRICE LEO |
Parcel PIN#: |
3881-14-894-1560 |
|
| Owner Name 2: | STEFANOVICH PAULA | 1/4 section #: |
3881 |
|
| Owner Name 3: | Parent Acct: |
|
||
| Billing Address: | 11808 WOODBRIDGE RD | Tax District: |
|
|
| City, State, Zip | OKLAHOMA CITY, OK 73162 | School System: |
Putnam City #1 |
|
|
Country: (If noted) |
UNITED STATES |
Land Size: |
0.2598 Acres |
|
|
Land Value: 74,686 |
|
|||
|
Sect 21-T13N-R4W Qtr NE |
WARWICK ESTATES
Block
004
Lot
001
|
|||
| Full Legal Description: WARWICK ESTATES 004 001 |
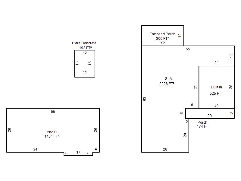
| Photo & Sketch (if available) | Comp Sales (ordered by relevancy) |
|
||||||||||||||||||
|
||||||||||||||||||||
| Value History (*The County Treasurer 405-713-1300 posts & collects actual tax amounts. Contact information HERE) | |||||||||||||
|---|---|---|---|---|---|---|---|---|---|---|---|---|---|
| Year | Market Value | Taxable Mkt Value | Gross Assessed | Exemption | Net Assessed | Millage | Est. Tax | Tax Savings | |||||
|
2026 |
503,500 |
447,952 |
49,274 |
1,000 |
48,274 |
123.17 |
$5,946 |
$876 |
|||||
|
2025 |
494,000 |
434,905 |
47,839 |
1,000 |
46,839 |
123.17 |
$5,769 |
$924 |
|||||
|
2024 |
478,500 |
422,238 |
46,445 |
1,000 |
45,445 |
122.30 |
$5,558 |
$879 |
|||||
|
2023 |
471,500 |
409,940 |
45,093 |
1,000 |
44,093 |
121.91 |
$5,375 |
$947 |
|||||
|
2022 |
398,000 |
398,000 |
43,780 |
1,000 |
42,780 |
123.41 |
$5,279 |
$123 |
|||||
| Property Account Status/Adjustments/Exemptions | ||
|---|---|---|
| Account # | Exemption Description | Amount |
|
R148941560 |
Freeze Senior Valuation |
0 |
|
R148941560 |
3% Cap Homestead |
0 |
|
R148941560 |
Homestead |
1,000 |
| Property Deed Transaction History (Recorded in the County Clerk's Office) | ||||||||||
|---|---|---|---|---|---|---|---|---|---|---|
| Date | Type | Book | Page | Price | Grantor | Grantee | ||||
|
3/23/2021 |
|
Deeds |
$399,000 |
OKLAHOMA PROPERTY SHOP LLC |
PRICE LEO |
|||||
|
7/24/2019 |
|
Deeds |
$190,000 |
WANG CHI SUN & NANCY |
SOUP TO NUTS LLC |
|||||
|
7/24/2019 |
|
Deeds |
$197,000 |
SOUP TO NUTS LLC |
OKLAHOMA PROPERTY SHOP LLC |
|||||
|
12/8/1993 |
|
Historical |
$150,500 |
SLOANE EDWARD M & JANELLE TRS |
WANG CHI-SUN & NANCY T |
|||||
|
11/7/1991 |
|
Historical |
$0 |
SLOANE EDWARD M & JANELLE A |
SLOANE EDWARD M & JANELLE TRS |
|||||
| Last Mailed Notice of Value (N.O.V.) Information/History | ||||||||
|---|---|---|---|---|---|---|---|---|
| Year | Date | Market Value | Taxable Market Value | Gross Assessed | Exemption | Net Assessed | ||
|
2026 |
02/23/2026 |
503,500 |
447,952 |
49,274 |
1,000 |
48,274 |
||
|
2025 |
02/14/2025 |
494,000 |
434,905 |
47,839 |
1,000 |
46,839 |
||
|
2024 |
02/13/2024 |
478,500 |
422,238 |
46,445 |
1,000 |
45,445 |
||
|
2023 |
02/14/2023 |
471,500 |
409,940 |
45,093 |
1,000 |
44,093 |
||
|
2022 |
03/15/2022 |
398,000 |
398,000 |
43,780 |
1,000 |
42,780 |
||
| Property Building Permit History | |||||||||||
|---|---|---|---|---|---|---|---|---|---|---|---|
| Issued | Permit # | Provided by | Bldg # | Description | Est Construction Cost | Status | |||||
| No Building Permit records returned. | |||||||||||
| Click button on building number to access detailed information: | ||||||
|---|---|---|---|---|---|---|
| Bldg # | Vacant/Improved Land | Bldg Description | Year Built | SqFt | # Stories | |
|
1 |
Improved |
2 Story |
1975 |
3,690 |
2 Stories |
|