|
|
|
| Larry Stein Oklahoma County Assessor (405) 713-1200 - Public Access System |
|
|
|
|
|
|
| Real Property Display - Screen Produced 3/26/2026 5:55:48 AM | ||||
|---|---|---|---|---|
| Account: R148941880 | Type: Residential | Location: |
6117 WOODBRIDGE RD |
|
| Building Name/Occupant: |
|
OKLAHOMA CITY |
||
| Owner Name 1: | DEWAR VIVIAN KAYE & JOHN |
Parcel PIN#: |
3881-14-894-1880 |
|
| Owner Name 2: | 1/4 section #: |
3881 |
||
| Owner Name 3: | Parent Acct: |
|
||
| Billing Address: | 6117 WOODBRIDGE RD | Tax District: |
|
|
| City, State, Zip | OKLAHOMA CITY , OK 73162-3220 | School System: |
Putnam City #1 |
|
|
Country: (If noted) |
Land Size: |
0.2020 Acres |
||
|
Land Value: 58,080 |
|
|||
|
Sect 21-T13N-R4W Qtr NE |
WARWICK ESTATES
Block
008
Lot
002
|
|||
| Full Legal Description: WARWICK ESTATES 008 002 |
| Photo & Sketch (if available) | Comp Sales (ordered by relevancy) |
|
||||||||||||||||||
|
||||||||||||||||||||
| Value History (*The County Treasurer 405-713-1300 posts & collects actual tax amounts. Contact information HERE) | |||||||||||||
|---|---|---|---|---|---|---|---|---|---|---|---|---|---|
| Year | Market Value | Taxable Mkt Value | Gross Assessed | Exemption | Net Assessed | Millage | Est. Tax | Tax Savings | |||||
|
2026 |
302,500 |
238,211 |
26,203 |
1,000 |
25,203 |
123.17 |
$3,104 |
$994 |
|||||
|
2025 |
300,500 |
231,273 |
25,439 |
1,000 |
24,439 |
123.17 |
$3,010 |
$1,061 |
|||||
|
2024 |
294,000 |
224,537 |
24,698 |
1,000 |
23,698 |
122.30 |
$2,898 |
$1,057 |
|||||
|
2023 |
284,500 |
217,998 |
23,979 |
1,000 |
22,979 |
121.91 |
$2,801 |
$1,014 |
|||||
|
2022 |
233,500 |
211,649 |
23,281 |
1,000 |
22,281 |
123.41 |
$2,750 |
$420 |
|||||
| Property Account Status/Adjustments/Exemptions | ||
|---|---|---|
| Account # | Exemption Description | Amount |
|
R148941880 |
3% Cap Homestead |
0 |
|
R148941880 |
Homestead |
1,000 |
| Property Deed Transaction History (Recorded in the County Clerk's Office) | ||||||||||
|---|---|---|---|---|---|---|---|---|---|---|
| Date | Type | Book | Page | Price | Grantor | Grantee | ||||
|
11/21/2018 |
|
Deeds |
$0 |
DEWAR VIVIAN KAYE |
DEWAR VIVIAN KAYE & JOHN |
|||||
|
1/12/2016 |
|
Deeds |
$0 |
DEWAR JOHN & VIVIAN |
DEWAR VIVIAN KAYE |
|||||
|
9/1/1995 |
|
Historical |
$0 |
DEWAR JOHN |
DEWAR JOHN & VIVIAN |
|||||
|
6/28/1995 |
|
Historical |
$137,500 |
CAUBLE ERNESTINE & JAMES TRS |
DEWAR JOHN |
|||||
|
3/10/1994 |
|
Historical |
$0 |
CAUBLE JAMES S & ERNESTINE |
CAUBLE ERNESTINE & JAMES TRS |
|||||
| Last Mailed Notice of Value (N.O.V.) Information/History | ||||||||
|---|---|---|---|---|---|---|---|---|
| Year | Date | Market Value | Taxable Market Value | Gross Assessed | Exemption | Net Assessed | ||
|
2026 |
02/23/2026 |
302,500 |
238,211 |
26,203 |
1,000 |
25,203 |
||
|
2025 |
02/14/2025 |
300,500 |
231,273 |
25,439 |
1,000 |
24,439 |
||
|
2024 |
02/13/2024 |
294,000 |
224,537 |
24,698 |
1,000 |
23,698 |
||
|
2023 |
02/14/2023 |
284,500 |
217,998 |
23,979 |
1,000 |
22,979 |
||
|
2022 |
03/15/2022 |
233,500 |
211,649 |
23,281 |
1,000 |
22,281 |
||
| Property Building Permit History | |||||||||||
|---|---|---|---|---|---|---|---|---|---|---|---|
| Issued | Permit # | Provided by | Bldg # | Description | Est Construction Cost | Status | |||||
| No Building Permit records returned. | |||||||||||
| Click button on building number to access detailed information: | ||||||
|---|---|---|---|---|---|---|
| Bldg # | Vacant/Improved Land | Bldg Description | Year Built | SqFt | # Stories | |
|
1 |
Improved |
Ranch 1 Story |
1981 |
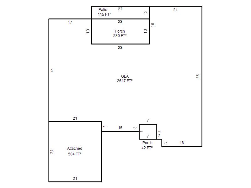
2,617 |
1 Stories |
|