|
|
|
| Larry Stein Oklahoma County Assessor (405) 713-1200 - Public Access System |
|
|
|
|
|
|
| Real Property Display - Screen Produced 3/22/2026 1:34:53 PM | ||||
|---|---|---|---|---|
| Account: R204801170 | Type: Residential | Location: |
6820 NW 118TH ST |
|
| Building Name/Occupant: |
|
OKLAHOMA CITY |
||
| Owner Name 1: | TUCKER PAMELA |
Parcel PIN#: |
3884-20-480-1170 |
|
| Owner Name 2: | BORDAS JOZSEF T | 1/4 section #: |
3884 |
|
| Owner Name 3: | Parent Acct: |
3884-14-319-4055 |
||
| Billing Address: | 6820 NW 118TH ST | Tax District: |
|
|
| City, State, Zip | OKLAHOMA CITY, OK 73162 | School System: |
Putnam City #1 |
|
|
Country: (If noted) |
UNITED STATES |
Land Size: |
0.4911 Acres |
|
|
Land Value: 83,351 |
|
|||
|
Sect 21-T13N-R4W Qtr NW |
WARWICK WEST SEC 4
Block
010
Lot
016
|
|||
| Full Legal Description: WARWICK WEST SEC 4 010 016 |
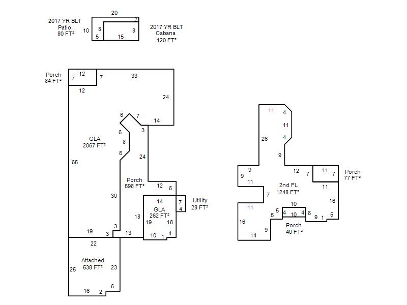
| Photo & Sketch (if available) | Comp Sales (ordered by relevancy) |
|
||||||||||||||||||
|
||||||||||||||||||||
| Value History (*The County Treasurer 405-713-1300 posts & collects actual tax amounts. Contact information HERE) | |||||||||||||
|---|---|---|---|---|---|---|---|---|---|---|---|---|---|
| Year | Market Value | Taxable Mkt Value | Gross Assessed | Exemption | Net Assessed | Millage | Est. Tax | Tax Savings | |||||
|
2025 |
640,500 |
521,451 |
57,359 |
0 |
57,359 |
123.17 |
$7,065 |
$1,613 |
|||||
|
2024 |
603,500 |
496,620 |
54,627 |
0 |
54,627 |
122.30 |
$6,681 |
$1,438 |
|||||
|
2023 |
583,000 |
472,972 |
52,026 |
0 |
52,026 |
121.91 |
$6,343 |
$1,475 |
|||||
|
2022 |
470,000 |
450,450 |
49,549 |
0 |
49,549 |
123.41 |
$6,115 |
$265 |
|||||
|
2021 |
429,000 |
429,000 |
47,190 |
0 |
47,190 |
122.23 |
$5,768 |
$0 |
|||||
| Property Account Status/Adjustments/Exemptions | ||
|---|---|---|
| Account # | Exemption Description | Amount |
|
R204801170 |
Homestead |
1,000 |
| Property Deed Transaction History (Recorded in the County Clerk's Office) | |||||||
|---|---|---|---|---|---|---|---|
| Date | Type | Book | Page | Price | Grantor | Grantee | |
|
7/9/2025 |
|
Deeds |
$665,000 |
BAILEY NISHA |
TUCKER PAMELA |
||
|
6/11/2013 |
|
Deeds |
$35,000 |
ODOM NORTHWEST LLC |
BAILEY NISHA |
||
| Last Mailed Notice of Value (N.O.V.) Information/History | ||||||||
|---|---|---|---|---|---|---|---|---|
| Year | Date | Market Value | Taxable Market Value | Gross Assessed | Exemption | Net Assessed | ||
|
2026 |
02/23/2026 |
628,000 |
628,000 |
69,080 |
1,000 |
68,080 |
||
|
2025 |
02/14/2025 |
640,500 |
521,451 |
57,359 |
0 |
57,359 |
||
|
2024 |
02/13/2024 |
603,500 |
496,620 |
54,627 |
0 |
54,627 |
||
|
2023 |
02/14/2023 |
583,000 |
472,972 |
52,026 |
0 |
52,026 |
||
|
2022 |
03/15/2022 |
470,000 |
450,450 |
49,549 |
0 |
49,549 |
||
| Property Building Permit History | ||||||
|---|---|---|---|---|---|---|
| Issued | Permit # | Provided by | Bldg # | Description | Est Construction Cost | Status |
|
3/4/2014 |
10462089 |
OKLAHOMA CITY |
1 |
Swimming Pool |
67,700 |
Inactive |
|
1/9/2014 |
10457876 |
OKLAHOMA CITY |
1 |
Main Dwellin |
300,000 |
Inactive |
| Click button on building number to access detailed information: | ||||||
|---|---|---|---|---|---|---|
| Bldg # | Vacant/Improved Land | Bldg Description | Year Built | SqFt | # Stories | |
|
1 |
Improved |
1½ Story Fin |
2014 |
3,577 |
1.5 Stories |
|