|
|
|
| Larry Stein Oklahoma County Assessor (405) 713-1200 - Public Access System |
|
|
|
|
|
|
| Real Property Display - Screen Produced 3/22/2026 1:26:19 PM | ||||
|---|---|---|---|---|
| Account: R204801210 | Type: Residential | Location: |
6804 NW 118TH ST |
|
| Building Name/Occupant: |
|
OKLAHOMA CITY |
||
| Owner Name 1: | DIMSDALE WILLIAM & KORI |
Parcel PIN#: |
3884-20-480-1210 |
|
| Owner Name 2: | 1/4 section #: |
3884 |
||
| Owner Name 3: | Parent Acct: |
3884-14-319-4055 |
||
| Billing Address: | 6804 NW 118TH ST | Tax District: |
|
|
| City, State, Zip | OKLAHOMA CITY, OK 73162-1742 | School System: |
Putnam City #1 |
|
|
Country: (If noted) |
Land Size: |
0.3610 Acres |
||
|
Land Value: 86,488 |
|
|||
|
Sect 21-T13N-R4W Qtr NW |
WARWICK WEST SEC 4
Block
010
Lot
020
|
|||
| Full Legal Description: WARWICK WEST SEC 4 010 020 |
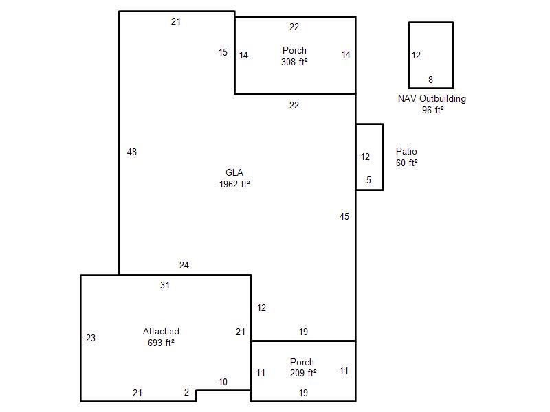
| Photo & Sketch (if available) | Comp Sales (ordered by relevancy) |
|
||||||||||||||||||
|
||||||||||||||||||||
| Value History (*The County Treasurer 405-713-1300 posts & collects actual tax amounts. Contact information HERE) | |||||||||||||
|---|---|---|---|---|---|---|---|---|---|---|---|---|---|
| Year | Market Value | Taxable Mkt Value | Gross Assessed | Exemption | Net Assessed | Millage | Est. Tax | Tax Savings | |||||
|
2025 |
400,500 |
315,767 |
34,733 |
1,000 |
33,733 |
123.17 |
$4,155 |
$1,271 |
|||||
|
2024 |
383,500 |
306,570 |
33,722 |
1,000 |
32,722 |
122.30 |
$4,002 |
$1,157 |
|||||
|
2023 |
376,500 |
297,641 |
32,739 |
1,000 |
31,739 |
121.91 |
$3,869 |
$1,179 |
|||||
|
2022 |
302,500 |
288,972 |
31,785 |
1,000 |
30,785 |
123.41 |
$3,799 |
$307 |
|||||
|
2021 |
263,000 |
262,109 |
28,831 |
1,000 |
27,831 |
122.23 |
$3,402 |
$134 |
|||||
| Property Account Status/Adjustments/Exemptions | ||
|---|---|---|
| Account # | Exemption Description | Amount |
|
R204801210 |
Homestead |
1,000 |
|
R204801210 |
3% Cap Homestead |
0 |
| Property Deed Transaction History (Recorded in the County Clerk's Office) | |||||||
|---|---|---|---|---|---|---|---|
| Date | Type | Book | Page | Price | Grantor | Grantee | |
|
12/21/2012 |
|
Deeds |
$200,000 |
TIMBERCRAFT HOMES LLC |
DIMSDALE WILLIAM & KORI |
||
|
4/30/2012 |
|
Deeds |
$35,000 |
ODOM NORTHWEST LLC |
TIMBERCRAFT HOMES LLC |
||
| Last Mailed Notice of Value (N.O.V.) Information/History | ||||||||
|---|---|---|---|---|---|---|---|---|
| Year | Date | Market Value | Taxable Market Value | Gross Assessed | Exemption | Net Assessed | ||
|
2026 |
02/23/2026 |
400,000 |
325,240 |
35,776 |
1,000 |
34,776 |
||
|
2025 |
02/14/2025 |
400,500 |
315,767 |
34,733 |
1,000 |
33,733 |
||
|
2024 |
02/13/2024 |
383,500 |
306,570 |
33,722 |
1,000 |
32,722 |
||
|
2023 |
02/14/2023 |
376,500 |
297,641 |
32,739 |
1,000 |
31,739 |
||
|
2022 |
03/15/2022 |
302,500 |
288,972 |
31,785 |
1,000 |
30,785 |
||
| Property Building Permit History | ||||||
|---|---|---|---|---|---|---|
| Issued | Permit # | Provided by | Bldg # | Description | Est Construction Cost | Status |
|
9/16/2020 |
POOL-2020-00478 |
|
1 |
Swimming Pool |
52,700 |
Inactive |
|
7/16/2012 |
10443305 |
OKLAHOMA CITY |
1 |
Main Dwellin |
200,000 |
Inactive |
| Click button on building number to access detailed information: | ||||||
|---|---|---|---|---|---|---|
| Bldg # | Vacant/Improved Land | Bldg Description | Year Built | SqFt | # Stories | |
|
1 |
Improved |
Ranch 1 Story |
2012 |
1,962 |
1 Stories |
|