|
|
|
| Larry Stein Oklahoma County Assessor (405) 713-1200 - Public Access System |
|
|
|
|
|
|
| Real Property Display - Screen Produced 3/21/2026 5:53:56 AM | ||||
|---|---|---|---|---|
| Account: R150547290 | Type: Residential | Location: |
513 E CURTIS DR |
|
| Building Name/Occupant: |
|
MIDWEST CITY |
||
| Owner Name 1: | SNELL ROY D & FRANCES M TRS |
Parcel PIN#: |
1438-15-054-7290 |
|
| Owner Name 2: | SNELL ROY & FRANCES LIV TRUST | 1/4 section #: |
1438 |
|
| Owner Name 3: | Parent Acct: |
|
||
| Billing Address: | 5513 S KATHY DR | Tax District: |
|
|
| City, State, Zip | OKLAHOMA CITY, OK 73135 | School System: |
Mid-Del #52 |
|
|
Country: (If noted) |
Land Size: |
0.1286 Acres |
||
|
Land Value: 16,240 |
|
|||
|
Sect 10-T11N-R2W Qtr SE |
CHESSER ADDITION
Block
010
Lot
025
|
|||
| Full Legal Description: CHESSER ADDITION 010 025 |
| Photo & Sketch (if available) | Comp Sales (ordered by relevancy) |
|
||||||||||||||||||
|
||||||||||||||||||||
| Value History (*The County Treasurer 405-713-1300 posts & collects actual tax amounts. Contact information HERE) | |||||||||||||
|---|---|---|---|---|---|---|---|---|---|---|---|---|---|
| Year | Market Value | Taxable Mkt Value | Gross Assessed | Exemption | Net Assessed | Millage | Est. Tax | Tax Savings | |||||
|
2025 |
86,500 |
61,261 |
6,737 |
0 |
6,737 |
119.58 |
$806 |
$332 |
|||||
|
2024 |
80,000 |
58,344 |
6,417 |
0 |
6,417 |
122.51 |
$786 |
$292 |
|||||
|
2023 |
70,000 |
55,566 |
6,112 |
0 |
6,112 |
117.71 |
$719 |
$187 |
|||||
|
2022 |
63,000 |
52,920 |
5,821 |
0 |
5,821 |
116.64 |
$679 |
$129 |
|||||
|
2021 |
54,000 |
50,400 |
5,544 |
0 |
5,544 |
119.45 |
$662 |
$47 |
|||||
| Property Account Status/Adjustments/Exemptions | ||
|---|---|---|
| Account # | Exemption Description | Amount |
|
R150547290 |
5% Capped Account |
0 |
| Property Deed Transaction History (Recorded in the County Clerk's Office) | |||||||
|---|---|---|---|---|---|---|---|
| Date | Type | Book | Page | Price | Grantor | Grantee | |
|
3/23/2022 |
|
Deeds |
$0 |
SNELL ROY D & FRANCES M |
SNELL ROY D & FRANCES M TRS |
||
|
8/7/1995 |
|
Historical |
$16,000 |
GEREMIA DANIEL ANDREW |
SNELL ROY D & FRANCES M |
||
|
11/15/1994 |
|
Historical |
$0 |
B & G REAL EST INVESTORS INC |
GEREMIA DANIEL ANDREW |
||
|
11/4/1992 |
|
Historical |
$17,000 |
MULLINS MARJORIE A |
B & G REAL EST INVESTORS INC |
||
|
4/1/1986 |
|
Historical |
$24,000 |
|
MULLINS MARJORIE A |
||
| Last Mailed Notice of Value (N.O.V.) Information/History | ||||||||
|---|---|---|---|---|---|---|---|---|
| Year | Date | Market Value | Taxable Market Value | Gross Assessed | Exemption | Net Assessed | ||
|
2026 |
02/06/2026 |
86,500 |
64,324 |
7,074 |
0 |
7,074 |
||
|
2025 |
01/31/2025 |
86,500 |
61,261 |
6,737 |
0 |
6,737 |
||
|
2024 |
01/22/2024 |
80,000 |
58,344 |
6,417 |
0 |
6,417 |
||
|
2023 |
01/23/2023 |
70,000 |
55,566 |
6,112 |
0 |
6,112 |
||
|
2022 |
02/22/2022 |
63,000 |
52,920 |
5,821 |
0 |
5,821 |
||
| Property Building Permit History | |||||||||||
|---|---|---|---|---|---|---|---|---|---|---|---|
| Issued | Permit # | Provided by | Bldg # | Description | Est Construction Cost | Status | |||||
| No Building Permit records returned. | |||||||||||
| Click button on building number to access detailed information: | ||||||
|---|---|---|---|---|---|---|
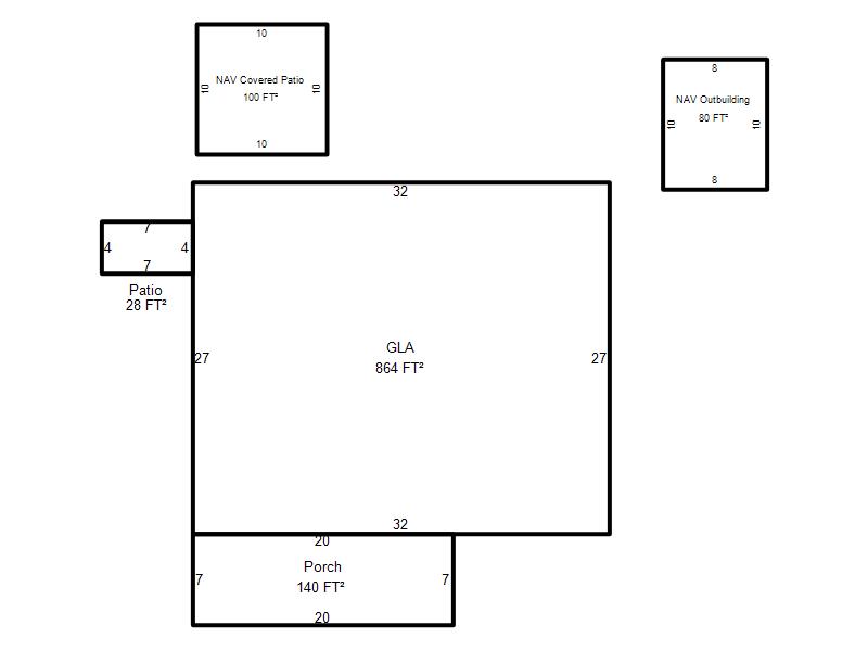
| Bldg # | Vacant/Improved Land | Bldg Description | Year Built | SqFt | # Stories | |
|
1 |
Improved |
Ranch 1 Story |
1944 |
864 |
1 Stories |
|