|
|
|
| Larry Stein Oklahoma County Assessor (405) 713-1200 - Public Access System |
|
|
|
|
|
|
| Real Property Display - Screen Produced 3/16/2026 7:46:49 AM | ||||
|---|---|---|---|---|
| Account: R134990250 | Type: Residential | Location: |
4754 HEMLOCK CIR |
|
| Building Name/Occupant: |
|
OKLAHOMA CITY |
||
| Owner Name 1: | ALLEN BARBARA |
Parcel PIN#: |
3885-13-499-0250 |
|
| Owner Name 2: | 1/4 section #: |
3885 |
||
| Owner Name 3: | Parent Acct: |
|
||
| Billing Address: | 4750 HEMLOCK CIR | Tax District: |
|
|
| City, State, Zip | OKLAHOMA CITY, OK 73162-1927 | School System: |
Oklahoma City #89 |
|
|
Country: (If noted) |
Land Size: |
0.1328 Acres |
||
|
Land Value: 56,115 |
|
|||
|
Sect 22-T13N-R4W Qtr NE |
THE ARBORS
Block
003
Lot
000
|
|||
| Full Legal Description: THE ARBORS 003 000 S/2 OF LOT 7 & ALL OF LOTS 8 & 9 |
| Photo & Sketch (if available) | Comp Sales (ordered by relevancy) |
|
||||||||||||||||||
|
||||||||||||||||||||
| Value History (*The County Treasurer 405-713-1300 posts & collects actual tax amounts. Contact information HERE) | |||||||||||||
|---|---|---|---|---|---|---|---|---|---|---|---|---|---|
| Year | Market Value | Taxable Mkt Value | Gross Assessed | Exemption | Net Assessed | Millage | Est. Tax | Tax Savings | |||||
|
2025 |
315,000 |
278,866 |
30,674 |
0 |
30,674 |
122.90 |
$3,770 |
$488 |
|||||
|
2024 |
296,500 |
265,587 |
29,214 |
0 |
29,214 |
123.89 |
$3,619 |
$421 |
|||||
|
2023 |
297,500 |
252,940 |
27,822 |
0 |
27,822 |
122.82 |
$3,417 |
$602 |
|||||
|
2022 |
255,500 |
240,896 |
26,497 |
0 |
26,497 |
117.63 |
$3,117 |
$189 |
|||||
|
2021 |
240,000 |
229,425 |
25,236 |
0 |
25,236 |
117.70 |
$2,970 |
$137 |
|||||
| Property Account Status/Adjustments/Exemptions | ||
|---|---|---|
| Account # | Exemption Description | Amount |
|
R134990250 |
5% Capped Account |
0 |
| Property Deed Transaction History (Recorded in the County Clerk's Office) | ||||||||||
|---|---|---|---|---|---|---|---|---|---|---|
| Date | Type | Book | Page | Price | Grantor | Grantee | ||||
|
12/15/2010 |
|
Hmstd Off & |
$0 |
SMAY GLENDEEN CO TRS WILLIAMS CONSTANCE RAE CO TRS |
WILLIAMS CONSTANCE RAE SOLE TRS SMAY GLENDEEN LIVING TRUST |
|||||
|
12/15/2010 |
|
Deeds |
$184,000 |
WILLIAMS CONSTANCE RAE SOLE TRS SMAY GLENDEEN LIVING TRUST |
ALLEN BARBARA |
|||||
|
5/28/2009 |
|
Deeds |
$0 |
SMAY GLENDEEN & RICHARD |
SMAY GLENDEEN |
|||||
|
5/28/2009 |
|
Deeds |
$0 |
SMAY RICHARD E & GLENDEEN |
SMAY GLENDEEN CO TRS WILLIAMS CONSTANCE RAE CO TRS |
|||||
|
5/5/1992 |
|
Historical |
$0 |
FIRST OKLAHOMA MORTGAGE |
SMAY RICHARD E & GLENDEEN |
|||||
| Last Mailed Notice of Value (N.O.V.) Information/History | ||||||||
|---|---|---|---|---|---|---|---|---|
| Year | Date | Market Value | Taxable Market Value | Gross Assessed | Exemption | Net Assessed | ||
|
2026 |
02/23/2026 |
310,000 |
292,809 |
32,208 |
0 |
32,208 |
||
|
2025 |
02/14/2025 |
315,000 |
278,866 |
30,674 |
0 |
30,674 |
||
|
2024 |
02/13/2024 |
296,500 |
265,587 |
29,214 |
0 |
29,214 |
||
|
2023 |
02/14/2023 |
297,500 |
252,940 |
27,822 |
0 |
27,822 |
||
|
2022 |
03/15/2022 |
255,500 |
240,896 |
26,497 |
0 |
26,497 |
||
| Property Building Permit History | ||||||
|---|---|---|---|---|---|---|
| Issued | Permit # | Provided by | Bldg # | Description | Est Construction Cost | Status |
|
4/20/1992 |
10232159 |
OKLAHOMA CITY |
1 |
Other |
0 |
Inactive |
| Click button on building number to access detailed information: | ||||||
|---|---|---|---|---|---|---|
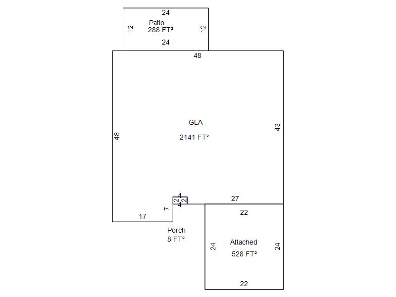
| Bldg # | Vacant/Improved Land | Bldg Description | Year Built | SqFt | # Stories | |
|
1 |
Improved |
Ranch 1 Story |
1992 |
2,141 |
1 Stories |
|