|
|
|
| Larry Stein Oklahoma County Assessor (405) 713-1200 - Public Access System |
|
|
|
|
|
|
| Real Property Display - Screen Produced 3/16/2026 7:47:10 AM | ||||
|---|---|---|---|---|
| Account: R134990460 | Type: Residential | Location: |
4715 HEMLOCK LN |
|
| Building Name/Occupant: |
|
OKLAHOMA CITY |
||
| Owner Name 1: | LACEK BRIANNA MARIE |
Parcel PIN#: |
3885-13-499-0460 |
|
| Owner Name 2: | DUGAN ROBERT COLE | 1/4 section #: |
3885 |
|
| Owner Name 3: | Parent Acct: |
|
||
| Billing Address: | 4715 HEMLOCK LN | Tax District: |
|
|
| City, State, Zip | OKLAHOMA CITY, OK 73162 | School System: |
Oklahoma City #89 |
|
|
Country: (If noted) |
Land Size: |
0.0511 Acres |
||
|
Land Value: 21,583 |
|
|||
|
Sect 22-T13N-R4W Qtr NE |
THE ARBORS
Block
004
Lot
010
|
|||
| Full Legal Description: THE ARBORS 004 010 |
| Photo & Sketch (if available) | Comp Sales (ordered by relevancy) |
|
||||||||||||||||||
|
||||||||||||||||||||
| Value History (*The County Treasurer 405-713-1300 posts & collects actual tax amounts. Contact information HERE) | |||||||||||||
|---|---|---|---|---|---|---|---|---|---|---|---|---|---|
| Year | Market Value | Taxable Mkt Value | Gross Assessed | Exemption | Net Assessed | Millage | Est. Tax | Tax Savings | |||||
|
2025 |
189,500 |
171,335 |
18,845 |
1,000 |
17,845 |
122.90 |
$2,193 |
$368 |
|||||
|
2024 |
193,500 |
166,345 |
18,297 |
1,000 |
17,297 |
123.89 |
$2,143 |
$494 |
|||||
|
2023 |
161,500 |
161,500 |
17,765 |
1,000 |
16,765 |
122.82 |
$2,059 |
$123 |
|||||
|
2022 |
149,500 |
112,798 |
12,407 |
1,000 |
11,407 |
117.63 |
$1,342 |
$593 |
|||||
|
2021 |
140,000 |
112,798 |
12,407 |
1,000 |
11,407 |
117.70 |
$1,343 |
$470 |
|||||
| Property Account Status/Adjustments/Exemptions | ||
|---|---|---|
| Account # | Exemption Description | Amount |
|
R134990460 |
3% Cap Homestead |
0 |
|
R134990460 |
Homestead |
1,000 |
| Property Deed Transaction History (Recorded in the County Clerk's Office) | ||||||||||
|---|---|---|---|---|---|---|---|---|---|---|
| Date | Type | Book | Page | Price | Grantor | Grantee | ||||
|
4/22/2022 |
|
Deeds |
$160,000 |
MITCHELL PHYLLIS J |
LACEK BRIANNA MARIE |
|||||
|
4/5/2006 |
|
Deeds |
$117,000 |
TAPP GEORGE MICHAEL |
MITCHELL PHYLLIS J |
|||||
|
5/9/1996 |
|
Historical |
$0 |
TAPP GEORGE M & CELIA ANN |
TAPP GEORGE MICHAEL |
|||||
|
4/24/1990 |
|
Historical |
$39,000 |
TALMAN HOME FEDERAL SAVINGS |
TAPP GEORGE M & CELIA ANN |
|||||
|
2/9/1990 |
|
Historical |
$0 |
KRAHL JIMMY D & BEULAH F |
TALMAN HOME FEDERAL SAVINGS |
|||||
| Last Mailed Notice of Value (N.O.V.) Information/History | ||||||||
|---|---|---|---|---|---|---|---|---|
| Year | Date | Market Value | Taxable Market Value | Gross Assessed | Exemption | Net Assessed | ||
|
2026 |
02/23/2026 |
189,000 |
176,475 |
19,411 |
1,000 |
18,411 |
||
|
2025 |
02/14/2025 |
189,500 |
171,335 |
18,845 |
1,000 |
17,845 |
||
|
2024 |
02/13/2024 |
193,500 |
166,345 |
18,297 |
1,000 |
17,297 |
||
|
2023 |
02/14/2023 |
161,500 |
161,500 |
17,765 |
0 |
17,765 |
||
|
2022 |
03/15/2022 |
149,500 |
112,798 |
12,407 |
1,000 |
11,407 |
||
| Property Building Permit History | |||||||||||
|---|---|---|---|---|---|---|---|---|---|---|---|
| Issued | Permit # | Provided by | Bldg # | Description | Est Construction Cost | Status | |||||
| No Building Permit records returned. | |||||||||||
| Click button on building number to access detailed information: | ||||||
|---|---|---|---|---|---|---|
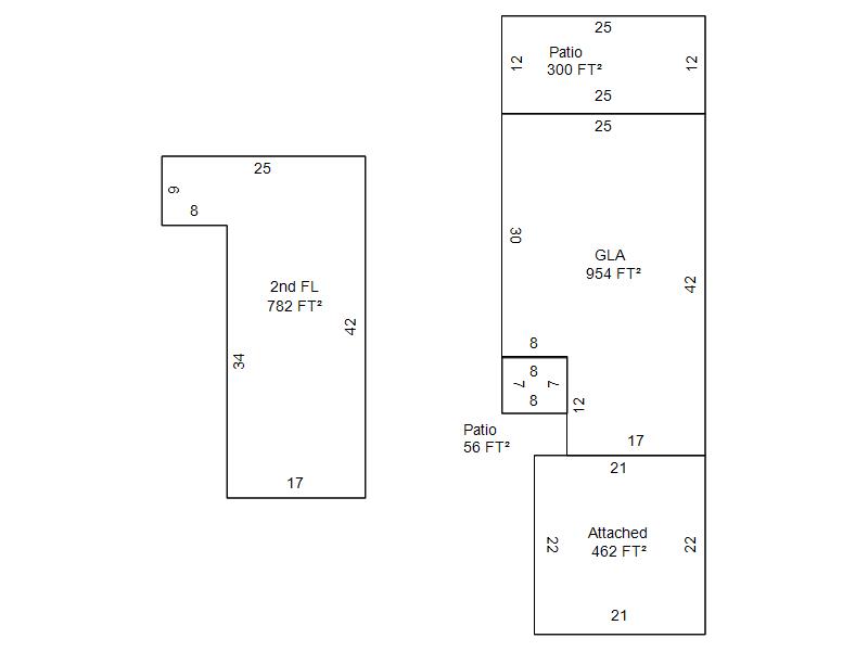
| Bldg # | Vacant/Improved Land | Bldg Description | Year Built | SqFt | # Stories | |
|
1 |
Improved |
Townhouse Multiple Story |
1982 |
1,736 |
2 Stories |
|