|
|
|
| Larry Stein Oklahoma County Assessor (405) 713-1200 - Public Access System |
|
|
|
|
|
|
| Real Property Display - Screen Produced 3/16/2026 7:47:10 AM | ||||
|---|---|---|---|---|
| Account: R134990475 | Type: Residential | Location: |
4709 HEMLOCK LN |
|
| Building Name/Occupant: |
|
OKLAHOMA CITY |
||
| Owner Name 1: | CLASS ONE INVESTMENTS LLC |
Parcel PIN#: |
3885-13-499-0475 |
|
| Owner Name 2: | 1/4 section #: |
3885 |
||
| Owner Name 3: | Parent Acct: |
|
||
| Billing Address: | 4709 HEMLOCK LN | Tax District: |
|
|
| City, State, Zip | OKLAHOMA CITY, OK 73162 | School System: |
Oklahoma City #89 |
|
|
Country: (If noted) |
Land Size: |
0.0511 Acres |
||
|
Land Value: 21,583 |
|
|||
|
Sect 22-T13N-R4W Qtr NE |
THE ARBORS
Block
004
Lot
013
|
|||
| Full Legal Description: THE ARBORS 004 013 |
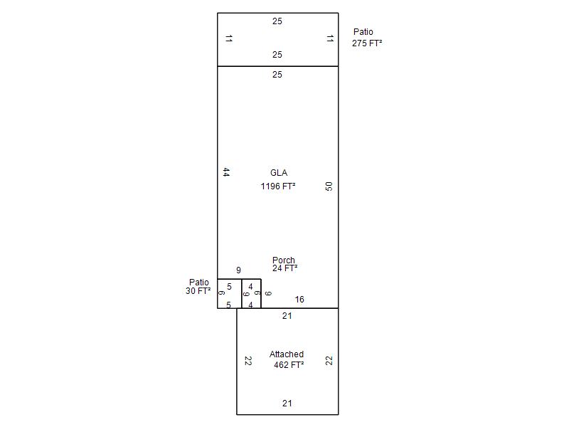
| Photo & Sketch (if available) | Comp Sales (ordered by relevancy) |
|
||||||||||||||||||
|
||||||||||||||||||||
| Value History (*The County Treasurer 405-713-1300 posts & collects actual tax amounts. Contact information HERE) | |||||||||||||
|---|---|---|---|---|---|---|---|---|---|---|---|---|---|
| Year | Market Value | Taxable Mkt Value | Gross Assessed | Exemption | Net Assessed | Millage | Est. Tax | Tax Savings | |||||
|
2025 |
150,500 |
150,500 |
16,555 |
0 |
16,555 |
122.90 |
$2,035 |
$0 |
|||||
|
2024 |
156,500 |
156,500 |
17,215 |
0 |
17,215 |
123.89 |
$2,133 |
$0 |
|||||
|
2023 |
150,500 |
150,500 |
16,555 |
0 |
16,555 |
122.82 |
$2,033 |
$0 |
|||||
|
2022 |
121,000 |
121,000 |
13,310 |
0 |
13,310 |
117.63 |
$1,566 |
$0 |
|||||
|
2021 |
114,000 |
92,449 |
10,169 |
1,000 |
9,169 |
117.70 |
$1,079 |
$397 |
|||||
| Property Account Status/Adjustments/Exemptions | ||
|---|---|---|
| Account # | Exemption Description | Amount |
|
R134990475 |
5% Capped Account |
0 |
| Property Deed Transaction History (Recorded in the County Clerk's Office) | |||||||
|---|---|---|---|---|---|---|---|
| Date | Type | Book | Page | Price | Grantor | Grantee | |
|
1/11/2022 |
|
Other |
$0 |
SECRETARY OF VETERANS AFFAIRS |
CLASS ONE INVESTMENTS LLC |
||
|
6/4/2021 |
|
Other |
$ |
MONEY SOURCE INC |
SECRETARY OF VETERANS AFFAIRS |
||
|
5/26/2021 |
|
Other |
$ |
KIRK NORMAN RAY |
MONEY SOURCE INC |
||
|
6/15/2009 |
|
Deeds |
$99,500 |
RICE BARBARA ANN |
KIRK NORMAN RAY |
||
|
7/1/1984 |
|
Historical |
$0 |
|
RICE BARBARA ANN |
||
| Last Mailed Notice of Value (N.O.V.) Information/History | ||||||||
|---|---|---|---|---|---|---|---|---|
| Year | Date | Market Value | Taxable Market Value | Gross Assessed | Exemption | Net Assessed | ||
|
2026 |
02/23/2026 |
153,000 |
153,000 |
16,830 |
0 |
16,830 |
||
|
2024 |
02/13/2024 |
156,500 |
156,500 |
17,215 |
0 |
17,215 |
||
|
2023 |
02/14/2023 |
150,500 |
150,500 |
16,555 |
0 |
16,555 |
||
|
2022 |
03/15/2022 |
121,000 |
121,000 |
13,310 |
0 |
13,310 |
||
|
2021 |
03/19/2021 |
114,000 |
92,449 |
10,169 |
1,000 |
9,169 |
||
| Property Building Permit History | |||||||||||
|---|---|---|---|---|---|---|---|---|---|---|---|
| Issued | Permit # | Provided by | Bldg # | Description | Est Construction Cost | Status | |||||
| No Building Permit records returned. | |||||||||||
| Click button on building number to access detailed information: | ||||||
|---|---|---|---|---|---|---|
| Bldg # | Vacant/Improved Land | Bldg Description | Year Built | SqFt | # Stories | |
|
1 |
Improved |
Townhouse One Story |
1982 |
1,196 |
1 Stories |
|