|
|
|
| Larry Stein Oklahoma County Assessor (405) 713-1200 - Public Access System |
|
|
|
|
|
|
| Real Property Display - Screen Produced 3/16/2026 7:48:52 AM | ||||
|---|---|---|---|---|
| Account: R134990485 | Type: Residential | Location: |
4705 HEMLOCK LN |
|
| Building Name/Occupant: |
|
OKLAHOMA CITY |
||
| Owner Name 1: | DAVIS KENNETH J |
Parcel PIN#: |
3885-13-499-0485 |
|
| Owner Name 2: | 1/4 section #: |
3885 |
||
| Owner Name 3: | Parent Acct: |
|
||
| Billing Address: | 4705 HEMLOCK LN | Tax District: |
|
|
| City, State, Zip | OKLAHOMA CITY, OK 73162-1943 | School System: |
Oklahoma City #89 |
|
|
Country: (If noted) |
Land Size: |
0.0511 Acres |
||
|
Land Value: 21,583 |
|
|||
|
Sect 22-T13N-R4W Qtr NE |
THE ARBORS
Block
004
Lot
015
|
|||
| Full Legal Description: THE ARBORS 004 015 |
| Photo & Sketch (if available) | Comp Sales (ordered by relevancy) |
|
||||||||||||||||||
|
||||||||||||||||||||
| Value History (*The County Treasurer 405-713-1300 posts & collects actual tax amounts. Contact information HERE) | |||||||||||||
|---|---|---|---|---|---|---|---|---|---|---|---|---|---|
| Year | Market Value | Taxable Mkt Value | Gross Assessed | Exemption | Net Assessed | Millage | Est. Tax | Tax Savings | |||||
|
2025 |
211,000 |
184,931 |
20,341 |
0 |
20,341 |
122.90 |
$2,500 |
$352 |
|||||
|
2024 |
213,500 |
176,125 |
19,373 |
0 |
19,373 |
123.89 |
$2,400 |
$509 |
|||||
|
2023 |
204,000 |
167,739 |
18,450 |
0 |
18,450 |
122.82 |
$2,266 |
$490 |
|||||
|
2022 |
169,000 |
159,752 |
17,571 |
0 |
17,571 |
117.63 |
$2,067 |
$120 |
|||||
|
2021 |
158,000 |
152,145 |
16,735 |
0 |
16,735 |
117.70 |
$1,970 |
$76 |
|||||
| Property Account Status/Adjustments/Exemptions | ||
|---|---|---|
| Account # | Exemption Description | Amount |
|
R134990485 |
5% Capped Account |
0 |
| Property Deed Transaction History (Recorded in the County Clerk's Office) | ||||||||||
|---|---|---|---|---|---|---|---|---|---|---|
| Date | Type | Book | Page | Price | Grantor | Grantee | ||||
|
12/23/2015 |
|
Deeds |
$130,000 |
PATTERSON JEFFERY S |
DAVIS KENNETH J |
|||||
|
6/15/2005 |
|
Deeds |
$114,000 |
MCDERMOTT SHERRI W TRS MCDERMOTT SHERRI W TRUST |
PATTERSON JEFFERY S |
|||||
|
11/1/1996 |
|
Historical |
$0 |
MCDERMOTT BERNARD J & SHERRI W |
MCDERMOTT SHERRI W TRS |
|||||
|
3/17/1992 |
|
Historical |
$54,000 |
DENTON LESLIE A |
MCDERMOTT BERNARD J & SHERRI W |
|||||
|
10/7/1991 |
|
Historical |
$0 |
DENTON LESLIE A |
DENTON LESLIE A |
|||||
| Last Mailed Notice of Value (N.O.V.) Information/History | ||||||||
|---|---|---|---|---|---|---|---|---|
| Year | Date | Market Value | Taxable Market Value | Gross Assessed | Exemption | Net Assessed | ||
|
2026 |
02/23/2026 |
210,000 |
194,177 |
21,359 |
0 |
21,359 |
||
|
2025 |
02/14/2025 |
211,000 |
184,931 |
20,341 |
0 |
20,341 |
||
|
2024 |
02/13/2024 |
213,500 |
176,125 |
19,373 |
0 |
19,373 |
||
|
2023 |
02/14/2023 |
204,000 |
167,739 |
18,450 |
0 |
18,450 |
||
|
2022 |
03/15/2022 |
169,000 |
159,752 |
17,571 |
0 |
17,571 |
||
| Property Building Permit History | |||||||||||
|---|---|---|---|---|---|---|---|---|---|---|---|
| Issued | Permit # | Provided by | Bldg # | Description | Est Construction Cost | Status | |||||
| No Building Permit records returned. | |||||||||||
| Click button on building number to access detailed information: | ||||||
|---|---|---|---|---|---|---|
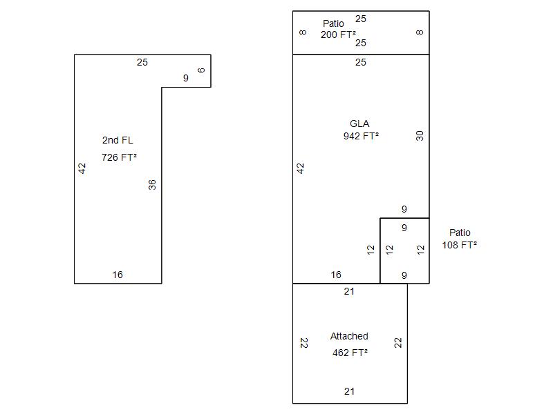
| Bldg # | Vacant/Improved Land | Bldg Description | Year Built | SqFt | # Stories | |
|
1 |
Improved |
Townhouse Multiple Story |
1982 |
1,668 |
2 Stories |
|