|
|
|
| Larry Stein Oklahoma County Assessor (405) 713-1200 - Public Access System |
|
|
|
|
|
|
| Real Property Display - Screen Produced 3/16/2026 7:49:18 AM | ||||
|---|---|---|---|---|
| Account: R134990495 | Type: Residential | Location: |
4701 HEMLOCK LN |
|
| Building Name/Occupant: |
|
OKLAHOMA CITY |
||
| Owner Name 1: | MMB LLC |
Parcel PIN#: |
3885-13-499-0495 |
|
| Owner Name 2: | 1/4 section #: |
3885 |
||
| Owner Name 3: | Parent Acct: |
|
||
| Billing Address: | 3813 NW 69TH TER | Tax District: |
|
|
| City, State, Zip | OKLAHOMA CITY, OK 73116-1709 | School System: |
Oklahoma City #89 |
|
|
Country: (If noted) |
Land Size: |
0.0572 Acres |
||
|
Land Value: 24,172 |
|
|||
|
Sect 22-T13N-R4W Qtr NE |
THE ARBORS
Block
004
Lot
017
|
|||
| Full Legal Description: THE ARBORS 004 017 |
| Photo & Sketch (if available) | Comp Sales (ordered by relevancy) |
|
||||||||||||||||||
|
||||||||||||||||||||
| Value History (*The County Treasurer 405-713-1300 posts & collects actual tax amounts. Contact information HERE) | |||||||||||||
|---|---|---|---|---|---|---|---|---|---|---|---|---|---|
| Year | Market Value | Taxable Mkt Value | Gross Assessed | Exemption | Net Assessed | Millage | Est. Tax | Tax Savings | |||||
|
2025 |
156,000 |
138,697 |
15,256 |
0 |
15,256 |
122.90 |
$1,875 |
$234 |
|||||
|
2024 |
162,500 |
132,093 |
14,529 |
0 |
14,529 |
123.89 |
$1,800 |
$414 |
|||||
|
2023 |
156,500 |
125,803 |
13,837 |
0 |
13,837 |
122.82 |
$1,700 |
$415 |
|||||
|
2022 |
126,000 |
119,813 |
13,178 |
0 |
13,178 |
117.63 |
$1,550 |
$80 |
|||||
|
2021 |
119,500 |
114,108 |
12,551 |
0 |
12,551 |
117.70 |
$1,477 |
$70 |
|||||
| Property Account Status/Adjustments/Exemptions | ||
|---|---|---|
| Account # | Exemption Description | Amount |
|
R134990495 |
5% Capped Account |
0 |
| Property Deed Transaction History (Recorded in the County Clerk's Office) | |||||||
|---|---|---|---|---|---|---|---|
| Date | Type | Book | Page | Price | Grantor | Grantee | |
|
10/1/2006 |
|
|
$0 |
MULLINS MARY K |
MMB LLC |
||
|
10/1/1982 |
|
Historical |
$0 |
|
MULLINS MARY K |
||
| Last Mailed Notice of Value (N.O.V.) Information/History | ||||||||
|---|---|---|---|---|---|---|---|---|
| Year | Date | Market Value | Taxable Market Value | Gross Assessed | Exemption | Net Assessed | ||
|
2026 |
02/23/2026 |
159,000 |
145,631 |
16,018 |
0 |
16,018 |
||
|
2025 |
02/14/2025 |
156,000 |
138,697 |
15,256 |
0 |
15,256 |
||
|
2024 |
02/13/2024 |
162,500 |
132,093 |
14,529 |
0 |
14,529 |
||
|
2023 |
02/14/2023 |
156,500 |
125,803 |
13,837 |
0 |
13,837 |
||
|
2022 |
03/15/2022 |
126,000 |
119,813 |
13,178 |
0 |
13,178 |
||
| Property Building Permit History | |||||||||||
|---|---|---|---|---|---|---|---|---|---|---|---|
| Issued | Permit # | Provided by | Bldg # | Description | Est Construction Cost | Status | |||||
| No Building Permit records returned. | |||||||||||
| Click button on building number to access detailed information: | ||||||
|---|---|---|---|---|---|---|
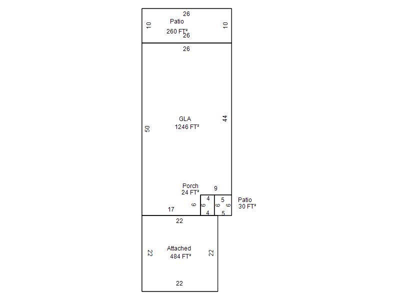
| Bldg # | Vacant/Improved Land | Bldg Description | Year Built | SqFt | # Stories | |
|
1 |
Improved |
Townhouse One Story |
1982 |
1,246 |
1 Stories |
|