|
|
|
| Larry Stein Oklahoma County Assessor (405) 713-1200 - Public Access System |
|
|
|
|
|
|
| Real Property Display - Screen Produced 3/16/2026 7:47:10 AM | ||||
|---|---|---|---|---|
| Account: R134990505 | Type: Residential | Location: |
4702 HEMLOCK LN |
|
| Building Name/Occupant: |
|
OKLAHOMA CITY |
||
| Owner Name 1: | POWE TYRESE |
Parcel PIN#: |
3885-13-499-0505 |
|
| Owner Name 2: | 1/4 section #: |
3885 |
||
| Owner Name 3: | Parent Acct: |
|
||
| Billing Address: | 4702 HEMLOCK LN | Tax District: |
|
|
| City, State, Zip | OKLAHOMA CITY, OK 73162-1942 | School System: |
Oklahoma City #89 |
|
|
Country: (If noted) |
Land Size: |
0.0511 Acres |
||
|
Land Value: 21,583 |
|
|||
|
Sect 22-T13N-R4W Qtr NE |
THE ARBORS
Block
004
Lot
019
|
|||
| Full Legal Description: THE ARBORS 004 019 |
| Photo & Sketch (if available) | Comp Sales (ordered by relevancy) |
|
||||||||||||||||||
|
||||||||||||||||||||
| Value History (*The County Treasurer 405-713-1300 posts & collects actual tax amounts. Contact information HERE) | |||||||||||||
|---|---|---|---|---|---|---|---|---|---|---|---|---|---|
| Year | Market Value | Taxable Mkt Value | Gross Assessed | Exemption | Net Assessed | Millage | Est. Tax | Tax Savings | |||||
|
2025 |
175,000 |
152,097 |
16,730 |
0 |
16,730 |
122.90 |
$2,056 |
$310 |
|||||
|
2024 |
179,500 |
144,855 |
15,933 |
0 |
15,933 |
123.89 |
$1,974 |
$472 |
|||||
|
2023 |
172,500 |
137,958 |
15,174 |
0 |
15,174 |
122.82 |
$1,864 |
$467 |
|||||
|
2022 |
140,500 |
131,389 |
14,452 |
0 |
14,452 |
117.63 |
$1,700 |
$118 |
|||||
|
2021 |
129,000 |
125,133 |
13,764 |
0 |
13,764 |
117.70 |
$1,620 |
$50 |
|||||
| Property Account Status/Adjustments/Exemptions | ||
|---|---|---|
| Account # | Exemption Description | Amount |
|
R134990505 |
Homestead |
1,000 |
| Property Deed Transaction History (Recorded in the County Clerk's Office) | ||||||||||
|---|---|---|---|---|---|---|---|---|---|---|
| Date | Type | Book | Page | Price | Grantor | Grantee | ||||
|
12/8/2025 |
|
Deeds |
$175,000 |
SINGLETERRY SUZANNE E |
POWE TYRESE |
|||||
|
6/9/2003 |
|
Deeds |
$89,000 |
MULL PROPERTIES LLC |
SINGLETERRY SUZANNE E |
|||||
|
3/14/2003 |
|
Deeds |
$70,000 |
MOORE ERROL DEAN |
MULL PROPERTIES LLC |
|||||
|
9/29/1992 |
|
Historical |
$0 |
MOORE ERROL DEAN & VICKEY K |
MOORE ERROL DEAN |
|||||
|
11/6/1987 |
|
Historical |
$53,000 |
AMERICAN BANC |
MOORE ERROL DEAN & VICKEY K |
|||||
| Last Mailed Notice of Value (N.O.V.) Information/History | ||||||||
|---|---|---|---|---|---|---|---|---|
| Year | Date | Market Value | Taxable Market Value | Gross Assessed | Exemption | Net Assessed | ||
|
2026 |
02/23/2026 |
169,500 |
169,500 |
18,645 |
0 |
18,645 |
||
|
2025 |
02/14/2025 |
175,000 |
152,097 |
16,730 |
0 |
16,730 |
||
|
2024 |
02/13/2024 |
179,500 |
144,855 |
15,933 |
0 |
15,933 |
||
|
2023 |
02/14/2023 |
172,500 |
137,958 |
15,174 |
0 |
15,174 |
||
|
2022 |
03/15/2022 |
140,500 |
131,389 |
14,452 |
0 |
14,452 |
||
| Property Building Permit History | |||||||||||
|---|---|---|---|---|---|---|---|---|---|---|---|
| Issued | Permit # | Provided by | Bldg # | Description | Est Construction Cost | Status | |||||
| No Building Permit records returned. | |||||||||||
| Click button on building number to access detailed information: | ||||||
|---|---|---|---|---|---|---|
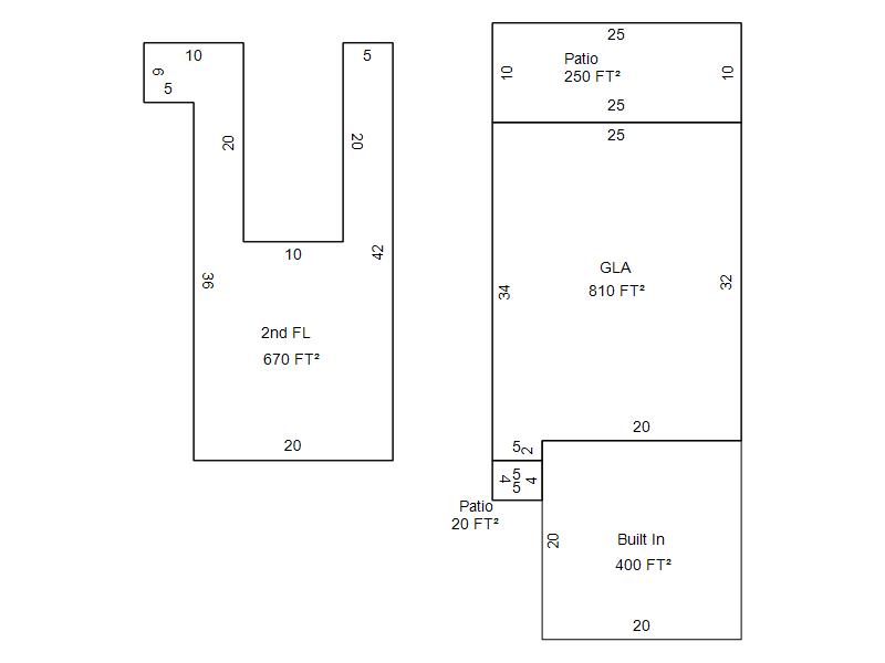
| Bldg # | Vacant/Improved Land | Bldg Description | Year Built | SqFt | # Stories | |
|
1 |
Improved |
Townhouse Multiple Story |
1983 |
1,480 |
2 Stories |
|