|
|
|
| Larry Stein Oklahoma County Assessor (405) 713-1200 - Public Access System |
|
|
|
|
|
|
| Real Property Display - Screen Produced 3/16/2026 7:48:52 AM | ||||
|---|---|---|---|---|
| Account: R134990510 | Type: Residential | Location: |
4704 HEMLOCK LN |
|
| Building Name/Occupant: |
|
OKLAHOMA CITY |
||
| Owner Name 1: | ROPER AVA N |
Parcel PIN#: |
3885-13-499-0510 |
|
| Owner Name 2: | 1/4 section #: |
3885 |
||
| Owner Name 3: | Parent Acct: |
|
||
| Billing Address: | 4704 HEMLOCK LN | Tax District: |
|
|
| City, State, Zip | OKLAHOMA CITY, OK 73162-1942 | School System: |
Oklahoma City #89 |
|
|
Country: (If noted) |
Land Size: |
0.0572 Acres |
||
|
Land Value: 24,172 |
|
|||
|
Sect 22-T13N-R4W Qtr NE |
THE ARBORS
Block
004
Lot
020
|
|||
| Full Legal Description: THE ARBORS 004 020 |
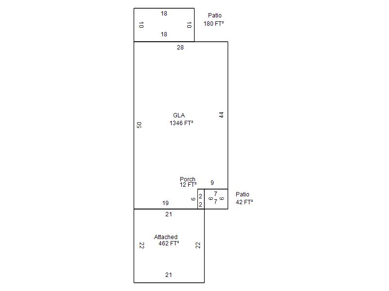
| Photo & Sketch (if available) | Comp Sales (ordered by relevancy) |
|
||||||||||||||||||
|
||||||||||||||||||||
| Value History (*The County Treasurer 405-713-1300 posts & collects actual tax amounts. Contact information HERE) | |||||||||||||
|---|---|---|---|---|---|---|---|---|---|---|---|---|---|
| Year | Market Value | Taxable Mkt Value | Gross Assessed | Exemption | Net Assessed | Millage | Est. Tax | Tax Savings | |||||
|
2025 |
169,000 |
133,731 |
14,709 |
1,000 |
13,709 |
122.90 |
$1,685 |
$600 |
|||||
|
2024 |
176,000 |
129,836 |
14,281 |
1,000 |
13,281 |
123.89 |
$1,646 |
$753 |
|||||
|
2023 |
168,500 |
126,055 |
13,865 |
1,000 |
12,865 |
122.82 |
$1,580 |
$696 |
|||||
|
2022 |
138,000 |
122,384 |
13,461 |
1,000 |
12,461 |
117.63 |
$1,466 |
$320 |
|||||
|
2021 |
128,500 |
118,820 |
13,069 |
1,000 |
12,069 |
117.70 |
$1,421 |
$243 |
|||||
| Property Account Status/Adjustments/Exemptions | ||
|---|---|---|
| Account # | Exemption Description | Amount |
|
R134990510 |
Homestead |
1,000 |
| Property Deed Transaction History (Recorded in the County Clerk's Office) | ||||||||||
|---|---|---|---|---|---|---|---|---|---|---|
| Date | Type | Book | Page | Price | Grantor | Grantee | ||||
|
12/12/2025 |
|
Deeds |
$173,500 |
HAMILTON TOYE E |
ROPER AVA N |
|||||
|
12/27/2017 |
|
Deeds |
$116,500 |
MATHENY THRESA |
HAMILTON TOYE E |
|||||
|
1/19/2012 |
|
Deeds |
$0 |
MATHENY RONALD D & THRESA |
MATHENY THRESA |
|||||
|
4/3/2003 |
|
Deeds |
$87,000 |
GIST J FRED |
MATHENY RONALD D & THRESA |
|||||
|
11/4/2002 |
|
Deeds |
$0 |
GIST J FRED GIST WINNELLE C |
GIST J FRED |
|||||
| Last Mailed Notice of Value (N.O.V.) Information/History | ||||||||
|---|---|---|---|---|---|---|---|---|
| Year | Date | Market Value | Taxable Market Value | Gross Assessed | Exemption | Net Assessed | ||
|
2026 |
02/23/2026 |
168,500 |
168,500 |
18,535 |
0 |
18,535 |
||
|
2025 |
02/14/2025 |
169,000 |
133,731 |
14,709 |
1,000 |
13,709 |
||
|
2024 |
02/13/2024 |
176,000 |
129,836 |
14,281 |
1,000 |
13,281 |
||
|
2023 |
02/14/2023 |
168,500 |
126,055 |
13,865 |
1,000 |
12,865 |
||
|
2022 |
03/15/2022 |
138,000 |
122,384 |
13,461 |
1,000 |
12,461 |
||
| Property Building Permit History | |||||||||||
|---|---|---|---|---|---|---|---|---|---|---|---|
| Issued | Permit # | Provided by | Bldg # | Description | Est Construction Cost | Status | |||||
| No Building Permit records returned. | |||||||||||
| Click button on building number to access detailed information: | ||||||
|---|---|---|---|---|---|---|
| Bldg # | Vacant/Improved Land | Bldg Description | Year Built | SqFt | # Stories | |
|
1 |
Improved |
Townhouse One Story |
1983 |
1,346 |
1 Stories |
|