|
|
|
| Larry Stein Oklahoma County Assessor (405) 713-1200 - Public Access System |
|
|
|
|
|
|
| Real Property Display - Screen Produced 3/16/2026 7:48:22 AM | ||||
|---|---|---|---|---|
| Account: R134990525 | Type: Residential | Location: |
4710 HEMLOCK LN |
|
| Building Name/Occupant: |
|
OKLAHOMA CITY |
||
| Owner Name 1: | CARPENTER JAMES SCOTT |
Parcel PIN#: |
3885-13-499-0525 |
|
| Owner Name 2: | 1/4 section #: |
3885 |
||
| Owner Name 3: | Parent Acct: |
|
||
| Billing Address: | 5217 N BRUNSON ST | Tax District: |
|
|
| City, State, Zip | OKLAHOMA CITY, OK 73112-2123 | School System: |
Oklahoma City #89 |
|
|
Country: (If noted) |
Land Size: |
0.0511 Acres |
||
|
Land Value: 21,583 |
|
|||
|
Sect 22-T13N-R4W Qtr NE |
THE ARBORS
Block
004
Lot
023
|
|||
| Full Legal Description: THE ARBORS 004 023 |
| Photo & Sketch (if available) | Comp Sales (ordered by relevancy) |
|
||||||||||||||||||
|
||||||||||||||||||||
| Value History (*The County Treasurer 405-713-1300 posts & collects actual tax amounts. Contact information HERE) | |||||||||||||
|---|---|---|---|---|---|---|---|---|---|---|---|---|---|
| Year | Market Value | Taxable Mkt Value | Gross Assessed | Exemption | Net Assessed | Millage | Est. Tax | Tax Savings | |||||
|
2025 |
169,500 |
145,399 |
15,993 |
0 |
15,993 |
122.90 |
$1,966 |
$326 |
|||||
|
2024 |
173,000 |
138,476 |
15,232 |
0 |
15,232 |
123.89 |
$1,887 |
$470 |
|||||
|
2023 |
164,000 |
131,882 |
14,506 |
0 |
14,506 |
122.82 |
$1,782 |
$434 |
|||||
|
2022 |
134,000 |
125,602 |
13,814 |
0 |
13,814 |
117.63 |
$1,625 |
$109 |
|||||
|
2021 |
124,500 |
119,621 |
13,157 |
0 |
13,157 |
117.70 |
$1,549 |
$63 |
|||||
| Property Account Status/Adjustments/Exemptions | ||
|---|---|---|
| Account # | Exemption Description | Amount |
|
R134990525 |
5% Capped Account |
0 |
| Property Deed Transaction History (Recorded in the County Clerk's Office) | ||||||||||
|---|---|---|---|---|---|---|---|---|---|---|
| Date | Type | Book | Page | Price | Grantor | Grantee | ||||
|
10/6/2023 |
|
Hmstd Off & |
$0 |
CARPENTER PATRICIA A TRS |
CARPENTER JAMES SCOTT |
|||||
|
2/24/1999 |
|
Historical |
$0 |
CARPENTER PATRICIA A |
CARPENTER PATRICIA A TRS |
|||||
|
1/22/1992 |
|
Historical |
$42,000 |
EQUITY BANK FOR SAVINGS FA |
CARPENTER PATRICIA A |
|||||
|
5/24/1991 |
|
Historical |
$0 |
JRC DISBURSEMENTS INC |
EQUITY BANK FOR SAVINGS FA |
|||||
|
2/23/1988 |
|
Historical |
$0 |
BOUZIDEN JANICE DELEA |
JRC DISBURSEMENTS INC |
|||||
| Last Mailed Notice of Value (N.O.V.) Information/History | ||||||||
|---|---|---|---|---|---|---|---|---|
| Year | Date | Market Value | Taxable Market Value | Gross Assessed | Exemption | Net Assessed | ||
|
2026 |
02/23/2026 |
170,500 |
152,668 |
16,792 |
0 |
16,792 |
||
|
2025 |
02/14/2025 |
169,500 |
145,399 |
15,993 |
0 |
15,993 |
||
|
2024 |
02/13/2024 |
173,000 |
138,476 |
15,232 |
0 |
15,232 |
||
|
2023 |
02/14/2023 |
164,000 |
131,882 |
14,506 |
0 |
14,506 |
||
|
2022 |
03/15/2022 |
134,000 |
125,602 |
13,814 |
0 |
13,814 |
||
| Property Building Permit History | |||||||||||
|---|---|---|---|---|---|---|---|---|---|---|---|
| Issued | Permit # | Provided by | Bldg # | Description | Est Construction Cost | Status | |||||
| No Building Permit records returned. | |||||||||||
| Click button on building number to access detailed information: | ||||||
|---|---|---|---|---|---|---|
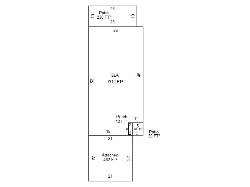
| Bldg # | Vacant/Improved Land | Bldg Description | Year Built | SqFt | # Stories | |
|
1 |
Improved |
Townhouse One Story |
1983 |
1,310 |
1 Stories |
|