|
|
|
| Larry Stein Oklahoma County Assessor (405) 713-1200 - Public Access System |
|
|
|
|
|
|
| Real Property Display - Screen Produced 3/16/2026 7:43:49 AM | ||||
|---|---|---|---|---|
| Account: R134990560 | Type: Residential | Location: |
4743 HEMLOCK CIR |
|
| Building Name/Occupant: |
|
OKLAHOMA CITY |
||
| Owner Name 1: | MUCKLEROY MARGARET SOLE TRS |
Parcel PIN#: |
3885-13-499-0560 |
|
| Owner Name 2: | MUCKLEROY MARGARET LIV TRUST | 1/4 section #: |
3885 |
|
| Owner Name 3: | Parent Acct: |
|
||
| Billing Address: | 4743 HEMLOCK CIR | Tax District: |
|
|
| City, State, Zip | OKLAHOMA CITY, OK 73162 | School System: |
Oklahoma City #89 |
|
|
Country: (If noted) |
Land Size: |
0.0511 Acres |
||
|
Land Value: 21,583 |
|
|||
|
Sect 22-T13N-R4W Qtr NE |
THE ARBORS
Block
004
Lot
030
|
|||
| Full Legal Description: THE ARBORS 004 030 |
| Photo & Sketch (if available) | Comp Sales (ordered by relevancy) |
|
||||||||||||||||||
|
||||||||||||||||||||
| Value History (*The County Treasurer 405-713-1300 posts & collects actual tax amounts. Contact information HERE) | |||||||||||||
|---|---|---|---|---|---|---|---|---|---|---|---|---|---|
| Year | Market Value | Taxable Mkt Value | Gross Assessed | Exemption | Net Assessed | Millage | Est. Tax | Tax Savings | |||||
|
2025 |
176,000 |
148,078 |
16,287 |
0 |
16,287 |
122.90 |
$2,002 |
$377 |
|||||
|
2024 |
176,000 |
141,027 |
15,512 |
0 |
15,512 |
123.89 |
$1,922 |
$477 |
|||||
|
2023 |
168,000 |
134,312 |
14,773 |
0 |
14,773 |
122.82 |
$1,815 |
$455 |
|||||
|
2022 |
137,000 |
127,917 |
14,070 |
0 |
14,070 |
117.63 |
$1,655 |
$118 |
|||||
|
2021 |
125,000 |
121,826 |
13,400 |
0 |
13,400 |
117.70 |
$1,577 |
$41 |
|||||
| Property Account Status/Adjustments/Exemptions | ||
|---|---|---|
| Account # | Exemption Description | Amount |
|
R134990560 |
5% Capped Account |
0 |
| Property Deed Transaction History (Recorded in the County Clerk's Office) | |||||||
|---|---|---|---|---|---|---|---|
| Date | Type | Book | Page | Price | Grantor | Grantee | |
|
6/9/2020 |
|
Hmstd Off & |
$0 |
PORTWOOD DEWEY W TRS |
MUCKLEROY MARGARET SOLE TRS |
||
|
5/20/2010 |
|
Deeds |
$0 |
JACOBS BETTY L & RONALD W |
PORTWOOD DEWEY W TRS |
||
|
7/2/2008 |
|
Deeds |
$127,500 |
JACOBS BETTY L |
PORTWOOD DEWEY W TRS PORTWOOD EMILIE M TRS |
||
|
1/19/1994 |
|
Historical |
$64,500 |
MARTIN RICHARD G |
JACOBS BETTY L |
||
|
4/1/1984 |
|
Historical |
$0 |
|
MARTIN RICHARD G |
||
| Last Mailed Notice of Value (N.O.V.) Information/History | ||||||||
|---|---|---|---|---|---|---|---|---|
| Year | Date | Market Value | Taxable Market Value | Gross Assessed | Exemption | Net Assessed | ||
|
2026 |
02/23/2026 |
171,500 |
155,481 |
17,102 |
0 |
17,102 |
||
|
2025 |
02/14/2025 |
176,000 |
148,078 |
16,287 |
0 |
16,287 |
||
|
2024 |
02/13/2024 |
176,000 |
141,027 |
15,512 |
0 |
15,512 |
||
|
2023 |
02/14/2023 |
168,000 |
134,312 |
14,773 |
0 |
14,773 |
||
|
2022 |
03/15/2022 |
137,000 |
127,917 |
14,070 |
0 |
14,070 |
||
| Property Building Permit History | |||||||||||
|---|---|---|---|---|---|---|---|---|---|---|---|
| Issued | Permit # | Provided by | Bldg # | Description | Est Construction Cost | Status | |||||
| No Building Permit records returned. | |||||||||||
| Click button on building number to access detailed information: | ||||||
|---|---|---|---|---|---|---|
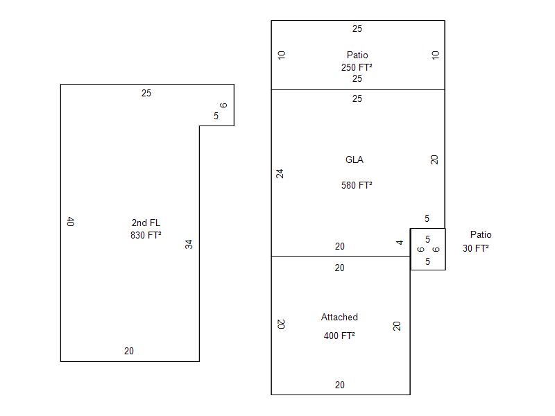
| Bldg # | Vacant/Improved Land | Bldg Description | Year Built | SqFt | # Stories | |
|
1 |
Improved |
Townhouse Multiple Story |
1983 |
1,410 |
2 Stories |
|