|
|
|
| Larry Stein Oklahoma County Assessor (405) 713-1200 - Public Access System |
|
|
|
|
|
|
| Real Property Display - Screen Produced 3/16/2026 7:45:17 AM | ||||
|---|---|---|---|---|
| Account: R134990575 | Type: Residential | Location: |
4737 HEMLOCK CIR |
|
| Building Name/Occupant: |
|
OKLAHOMA CITY |
||
| Owner Name 1: | ELDER SAMUEL M |
Parcel PIN#: |
3885-13-499-0575 |
|
| Owner Name 2: | 1/4 section #: |
3885 |
||
| Owner Name 3: | Parent Acct: |
|
||
| Billing Address: | 4737 HEMLOCK CIR | Tax District: |
|
|
| City, State, Zip | OKLAHOMA CITY , OK 73162-1929 | School System: |
Oklahoma City #89 |
|
|
Country: (If noted) |
Land Size: |
0.1022 Acres |
||
|
Land Value: 43,165 |
|
|||
|
Sect 22-T13N-R4W Qtr NE |
THE ARBORS
Block
004
Lot
000
|
|||
| Full Legal Description: THE ARBORS 004 000 LOTS 32 & 33 |
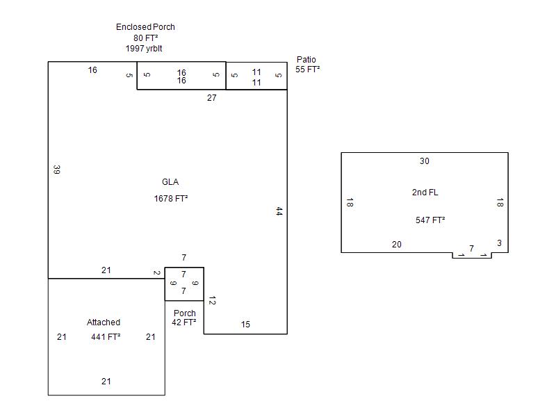
| Photo & Sketch (if available) | Comp Sales (ordered by relevancy) |
|
||||||||||||||||||
|
||||||||||||||||||||
| Value History (*The County Treasurer 405-713-1300 posts & collects actual tax amounts. Contact information HERE) | |||||||||||||
|---|---|---|---|---|---|---|---|---|---|---|---|---|---|
| Year | Market Value | Taxable Mkt Value | Gross Assessed | Exemption | Net Assessed | Millage | Est. Tax | Tax Savings | |||||
|
2025 |
305,500 |
245,185 |
26,969 |
1,000 |
25,969 |
122.90 |
$3,192 |
$938 |
|||||
|
2024 |
296,000 |
238,044 |
26,184 |
1,000 |
25,184 |
123.89 |
$3,120 |
$914 |
|||||
|
2023 |
286,500 |
231,111 |
25,421 |
1,000 |
24,421 |
122.82 |
$3,000 |
$871 |
|||||
|
2022 |
245,500 |
224,380 |
24,680 |
1,000 |
23,680 |
117.63 |
$2,786 |
$391 |
|||||
|
2021 |
229,000 |
217,845 |
23,962 |
1,000 |
22,962 |
117.70 |
$2,703 |
$262 |
|||||
| Property Account Status/Adjustments/Exemptions | ||
|---|---|---|
| Account # | Exemption Description | Amount |
|
R134990575 |
3% Cap Homestead |
0 |
|
R134990575 |
Homestead |
1,000 |
| Property Deed Transaction History (Recorded in the County Clerk's Office) | ||||||||||
|---|---|---|---|---|---|---|---|---|---|---|
| Date | Type | Book | Page | Price | Grantor | Grantee | ||||
|
4/2/2018 |
|
Deeds |
$221,000 |
WELLMAN JOY F TRS |
ELDER SAMUEL M |
|||||
|
5/24/2006 |
|
Deeds |
$0 |
WELLMAN TERERELLIE T & JOY |
WELLMAN JOY F |
|||||
|
5/24/2006 |
|
Deeds |
$0 |
WELLMAN TERRELLIE T & JOY F |
WELLMAN JOY F TRS |
|||||
|
7/6/2001 |
|
Deeds |
$160,000 |
LAMBERTON FRANK |
WELLMAN TERRELLIE T & JOY F |
|||||
|
8/13/1999 |
|
Hmstd Off & |
$0 |
SIMONS OLGA M LF EST |
LAMBERTON FRANK |
|||||
| Last Mailed Notice of Value (N.O.V.) Information/History | ||||||||
|---|---|---|---|---|---|---|---|---|
| Year | Date | Market Value | Taxable Market Value | Gross Assessed | Exemption | Net Assessed | ||
|
2026 |
02/23/2026 |
305,000 |
252,540 |
27,779 |
1,000 |
26,779 |
||
|
2025 |
02/14/2025 |
305,500 |
245,185 |
26,969 |
1,000 |
25,969 |
||
|
2024 |
02/13/2024 |
296,000 |
238,044 |
26,184 |
1,000 |
25,184 |
||
|
2023 |
02/14/2023 |
286,500 |
231,111 |
25,421 |
1,000 |
24,421 |
||
|
2022 |
03/15/2022 |
245,500 |
224,380 |
24,680 |
1,000 |
23,680 |
||
| Property Building Permit History | |||||||||||
|---|---|---|---|---|---|---|---|---|---|---|---|
| Issued | Permit # | Provided by | Bldg # | Description | Est Construction Cost | Status | |||||
| No Building Permit records returned. | |||||||||||
| Click button on building number to access detailed information: | ||||||
|---|---|---|---|---|---|---|
| Bldg # | Vacant/Improved Land | Bldg Description | Year Built | SqFt | # Stories | |
|
1 |
Improved |
1½ Story Fin |
1994 |
2,225 |
1.5 Stories |
|