|
|
|
| Larry Stein Oklahoma County Assessor (405) 713-1200 - Public Access System |
|
|
|
|
|
|
| Real Property Display - Screen Produced 3/16/2026 7:48:52 AM | ||||
|---|---|---|---|---|
| Account: R134990600 | Type: Residential | Location: |
4727 HEMLOCK CIR |
|
| Building Name/Occupant: |
|
OKLAHOMA CITY |
||
| Owner Name 1: | CALDWELL GEORGE M |
Parcel PIN#: |
3885-13-499-0600 |
|
| Owner Name 2: | 1/4 section #: |
3885 |
||
| Owner Name 3: | Parent Acct: |
|
||
| Billing Address: | 4727 HEMLOCK CIR | Tax District: |
|
|
| City, State, Zip | OKLAHOMA CITY, OK 73162 | School System: |
Oklahoma City #89 |
|
|
Country: (If noted) |
Land Size: |
0.0572 Acres |
||
|
Land Value: 24,172 |
|
|||
|
Sect 22-T13N-R4W Qtr NE |
THE ARBORS
Block
004
Lot
038
|
|||
| Full Legal Description: THE ARBORS 004 038 |
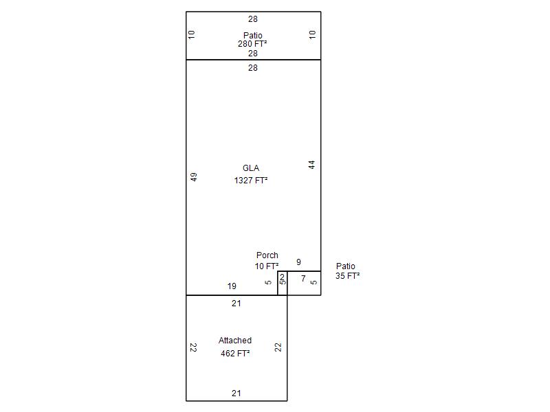
| Photo & Sketch (if available) | Comp Sales (ordered by relevancy) |
|
||||||||||||||||||
|
||||||||||||||||||||
| Value History (*The County Treasurer 405-713-1300 posts & collects actual tax amounts. Contact information HERE) | |||||||||||||
|---|---|---|---|---|---|---|---|---|---|---|---|---|---|
| Year | Market Value | Taxable Mkt Value | Gross Assessed | Exemption | Net Assessed | Millage | Est. Tax | Tax Savings | |||||
|
2025 |
167,500 |
140,569 |
15,462 |
1,000 |
14,462 |
122.90 |
$1,777 |
$487 |
|||||
|
2024 |
174,500 |
140,569 |
15,462 |
1,000 |
14,462 |
123.89 |
$1,792 |
$586 |
|||||
|
2023 |
166,500 |
136,475 |
15,012 |
1,000 |
14,012 |
122.82 |
$1,721 |
$528 |
|||||
|
2022 |
132,500 |
132,500 |
14,575 |
1,000 |
13,575 |
117.63 |
$1,597 |
$118 |
|||||
|
2021 |
132,500 |
132,500 |
14,575 |
1,000 |
13,575 |
117.70 |
$1,598 |
$118 |
|||||
| Property Account Status/Adjustments/Exemptions | ||
|---|---|---|
| Account # | Exemption Description | Amount |
|
R134990600 |
Freeze Senior Valuation |
0 |
|
R134990600 |
3% Cap Homestead |
0 |
|
R134990600 |
Homestead |
1,000 |
| Property Deed Transaction History (Recorded in the County Clerk's Office) | |||||||
|---|---|---|---|---|---|---|---|
| Date | Type | Book | Page | Price | Grantor | Grantee | |
|
4/27/2020 |
|
Deeds |
$134,000 |
CARPENTER PATRICIA A TRS |
CALDWELL GEORGE M |
||
|
8/23/2004 |
|
Deeds |
$92,000 |
CLANAHAN SANDRA SUE |
CARPENTER PATRICIA |
||
|
8/23/2004 |
|
Deeds |
$0 |
CARPENTER PATRICIA |
CARPENTER PATRICIA A TRS |
||
|
8/24/1983 |
|
Historical |
$0 |
|
CLANAHAN SANDRA SUE |
||
| Last Mailed Notice of Value (N.O.V.) Information/History | ||||||||
|---|---|---|---|---|---|---|---|---|
| Year | Date | Market Value | Taxable Market Value | Gross Assessed | Exemption | Net Assessed | ||
|
2024 |
02/13/2024 |
174,500 |
140,569 |
15,462 |
1,000 |
14,462 |
||
|
2023 |
02/14/2023 |
166,500 |
136,475 |
15,012 |
1,000 |
14,012 |
||
|
2021 |
03/19/2021 |
132,500 |
132,500 |
14,575 |
1,000 |
13,575 |
||
|
2020 |
03/10/2020 |
117,500 |
116,025 |
12,762 |
0 |
12,762 |
||
|
2018 |
04/16/2018 |
111,000 |
111,000 |
12,210 |
0 |
12,210 |
||
| Property Building Permit History | |||||||||||
|---|---|---|---|---|---|---|---|---|---|---|---|
| Issued | Permit # | Provided by | Bldg # | Description | Est Construction Cost | Status | |||||
| No Building Permit records returned. | |||||||||||
| Click button on building number to access detailed information: | ||||||
|---|---|---|---|---|---|---|
| Bldg # | Vacant/Improved Land | Bldg Description | Year Built | SqFt | # Stories | |
|
1 |
Improved |
Townhouse One Story |
1982 |
1,327 |
1 Stories |
|