|
|
|
| Larry Stein Oklahoma County Assessor (405) 713-1200 - Public Access System |
|
|
|
|
|
|
| Real Property Display - Screen Produced 3/16/2026 7:47:55 AM | ||||
|---|---|---|---|---|
| Account: R134990620 | Type: Residential | Location: |
4719 HEMLOCK CIR |
|
| Building Name/Occupant: |
|
OKLAHOMA CITY |
||
| Owner Name 1: | LEVISAY LEE M TRS |
Parcel PIN#: |
3885-13-499-0620 |
|
| Owner Name 2: | LEVISAY LEE M REV TRUST | 1/4 section #: |
3885 |
|
| Owner Name 3: | Parent Acct: |
|
||
| Billing Address: | 4738 HEMLOCK CIR | Tax District: |
|
|
| City, State, Zip | OKLAHOMA CITY, OK 73162 | School System: |
Oklahoma City #89 |
|
|
Country: (If noted) |
Land Size: |
0.0511 Acres |
||
|
Land Value: 21,583 |
|
|||
|
Sect 22-T13N-R4W Qtr NE |
THE ARBORS
Block
004
Lot
042
|
|||
| Full Legal Description: THE ARBORS 004 042 |
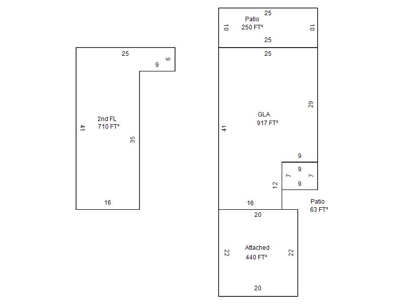
| Photo & Sketch (if available) | Comp Sales (ordered by relevancy) |
|
||||||||||||||||||
|
||||||||||||||||||||
| Value History (*The County Treasurer 405-713-1300 posts & collects actual tax amounts. Contact information HERE) | |||||||||||||
|---|---|---|---|---|---|---|---|---|---|---|---|---|---|
| Year | Market Value | Taxable Mkt Value | Gross Assessed | Exemption | Net Assessed | Millage | Est. Tax | Tax Savings | |||||
|
2025 |
185,000 |
185,000 |
20,350 |
0 |
20,350 |
122.90 |
$2,501 |
$0 |
|||||
|
2024 |
187,500 |
187,500 |
20,625 |
0 |
20,625 |
123.89 |
$2,555 |
$0 |
|||||
|
2023 |
180,000 |
180,000 |
19,800 |
0 |
19,800 |
122.82 |
$2,432 |
$0 |
|||||
|
2022 |
145,500 |
130,580 |
14,363 |
1,000 |
13,363 |
117.63 |
$1,572 |
$311 |
|||||
|
2021 |
135,500 |
126,777 |
13,945 |
1,000 |
12,945 |
117.70 |
$1,524 |
$231 |
|||||
| Property Account Status/Adjustments/Exemptions | ||
|---|---|---|
| Account # | Exemption Description | Amount |
|
R134990620 |
5% Capped Account |
0 |
| Property Deed Transaction History (Recorded in the County Clerk's Office) | ||||||||||
|---|---|---|---|---|---|---|---|---|---|---|
| Date | Type | Book | Page | Price | Grantor | Grantee | ||||
|
5/22/2022 |
|
Deeds |
$165,000 |
GILLEY DAVID |
LEVISAY LEE M TRS |
|||||
|
7/5/2017 |
|
Deeds |
$124,000 |
BARTON MARY JO |
GILLEY DAVID |
|||||
|
5/22/2017 |
|
Deeds |
$0 |
BARTON WILLIAM H & MARY JO |
BARTON MARY JO |
|||||
|
6/8/2000 |
|
Deeds |
$90,000 |
LINDSAY CAROL A |
BARTON WILLIAM H & MARY JO |
|||||
|
8/24/1999 |
|
Deeds |
$46,500 |
TARBOX HENRIETTA |
LINDSAY CAROL A |
|||||
| Last Mailed Notice of Value (N.O.V.) Information/History | ||||||||
|---|---|---|---|---|---|---|---|---|
| Year | Date | Market Value | Taxable Market Value | Gross Assessed | Exemption | Net Assessed | ||
|
2024 |
02/13/2024 |
187,500 |
187,500 |
20,625 |
0 |
20,625 |
||
|
2023 |
02/14/2023 |
180,000 |
180,000 |
19,800 |
0 |
19,800 |
||
|
2022 |
03/15/2022 |
145,500 |
130,580 |
14,363 |
1,000 |
13,363 |
||
|
2021 |
03/19/2021 |
135,500 |
126,777 |
13,945 |
1,000 |
12,945 |
||
|
2020 |
03/10/2020 |
128,000 |
123,085 |
13,539 |
1,000 |
12,539 |
||
| Property Building Permit History | |||||||||||
|---|---|---|---|---|---|---|---|---|---|---|---|
| Issued | Permit # | Provided by | Bldg # | Description | Est Construction Cost | Status | |||||
| No Building Permit records returned. | |||||||||||
| Click button on building number to access detailed information: | ||||||
|---|---|---|---|---|---|---|
| Bldg # | Vacant/Improved Land | Bldg Description | Year Built | SqFt | # Stories | |
|
1 |
Improved |
Townhouse Multiple Story |
1983 |
1,627 |
2 Stories |
|