|
|
|
| Larry Stein Oklahoma County Assessor (405) 713-1200 - Public Access System |
|
|
|
|
|
|
| Real Property Display - Screen Produced 3/26/2026 4:48:19 AM | ||||
|---|---|---|---|---|
| Account: R134990655 | Type: Residential | Location: |
12023 HAWTHORNE LN |
|
| Building Name/Occupant: |
|
OKLAHOMA CITY |
||
| Owner Name 1: | SIDDA BHAVANA REDDY |
Parcel PIN#: |
3885-13-499-0655 |
|
| Owner Name 2: | 1/4 section #: |
3885 |
||
| Owner Name 3: | Parent Acct: |
|
||
| Billing Address: | 12023 HAWTHORNE LN | Tax District: |
|
|
| City, State, Zip | OKLAHOMA CITY, OK 73162-1944 | School System: |
Oklahoma City #89 |
|
|
Country: (If noted) |
Land Size: |
0.0511 Acres |
||
|
Land Value: 21,583 |
|
|||
|
Sect 22-T13N-R4W Qtr NE |
THE ARBORS
Block
005
Lot
003
|
|||
| Full Legal Description: THE ARBORS 005 003 |
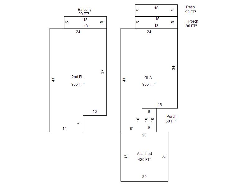
| Photo & Sketch (if available) | Comp Sales (ordered by relevancy) |
|
||||||||||||||||||
|
||||||||||||||||||||
| Value History (*The County Treasurer 405-713-1300 posts & collects actual tax amounts. Contact information HERE) | |||||||||||||
|---|---|---|---|---|---|---|---|---|---|---|---|---|---|
| Year | Market Value | Taxable Mkt Value | Gross Assessed | Exemption | Net Assessed | Millage | Est. Tax | Tax Savings | |||||
|
2026 |
189,500 |
189,500 |
20,845 |
0 |
20,845 |
122.90 |
$2,562 |
$0 |
|||||
|
2025 |
193,500 |
193,500 |
21,285 |
0 |
21,285 |
122.90 |
$2,616 |
$0 |
|||||
|
2024 |
192,500 |
192,500 |
21,175 |
0 |
21,175 |
123.89 |
$2,623 |
$0 |
|||||
|
2023 |
195,000 |
147,075 |
16,177 |
0 |
16,177 |
122.82 |
$1,987 |
$647 |
|||||
|
2022 |
151,500 |
140,072 |
15,406 |
0 |
15,406 |
117.63 |
$1,812 |
$148 |
|||||
| Property Account Status/Adjustments/Exemptions | ||
|---|---|---|
| Account # | Exemption Description | Amount |
|
R134990655 |
5% Capped Account |
0 |
| Property Deed Transaction History (Recorded in the County Clerk's Office) | ||||||||||
|---|---|---|---|---|---|---|---|---|---|---|
| Date | Type | Book | Page | Price | Grantor | Grantee | ||||
|
9/19/2023 |
|
Deeds |
$207,000 |
BODDEN PROPERTIES LLC |
SIDDA BHAVANA REDDY |
|||||
|
4/14/2023 |
|
Deeds |
$140,000 |
CROSLEY STEWART |
BODDEN PROPERTIES LLC |
|||||
|
8/1/2016 |
|
Deeds |
$108,000 |
COPELAND PAULA L |
CROSLEY STEWART |
|||||
|
7/12/2012 |
|
Hmstd Off & |
$0 |
COPELAND SONNY |
COPELAND PAULA L |
|||||
|
7/5/2012 |
|
Hmstd Off & |
$0 |
MATHENY RONALD & KAREN TRS MATHENY FAMILY TRUST |
COPELAND SONNY |
|||||
| Last Mailed Notice of Value (N.O.V.) Information/History | ||||||||
|---|---|---|---|---|---|---|---|---|
| Year | Date | Market Value | Taxable Market Value | Gross Assessed | Exemption | Net Assessed | ||
|
2025 |
02/14/2025 |
193,500 |
193,500 |
21,285 |
0 |
21,285 |
||
|
2024 |
02/13/2024 |
192,500 |
192,500 |
21,175 |
0 |
21,175 |
||
|
2023 |
02/14/2023 |
195,000 |
147,075 |
16,177 |
0 |
16,177 |
||
|
2022 |
03/15/2022 |
151,500 |
140,072 |
15,406 |
0 |
15,406 |
||
|
2021 |
03/19/2021 |
137,500 |
133,402 |
14,674 |
0 |
14,674 |
||
| Property Building Permit History | |||||||||||
|---|---|---|---|---|---|---|---|---|---|---|---|
| Issued | Permit # | Provided by | Bldg # | Description | Est Construction Cost | Status | |||||
| No Building Permit records returned. | |||||||||||
| Click button on building number to access detailed information: | ||||||
|---|---|---|---|---|---|---|
| Bldg # | Vacant/Improved Land | Bldg Description | Year Built | SqFt | # Stories | |
|
1 |
Improved |
Townhouse Multiple Story |
1978 |
1,892 |
2 Stories |
|