|
|
|
| Larry Stein Oklahoma County Assessor (405) 713-1200 - Public Access System |
|
|
|
|
|
|
| Real Property Display - Screen Produced 4/1/2026 5:38:40 AM | ||||
|---|---|---|---|---|
| Account: R124150270 | Type: Residential | Location: |
11525 N MERIDIAN AVE, Unit 124 |
|
| Building Name/Occupant: |
|
OKLAHOMA CITY |
||
| Owner Name 1: | BROCK R TODD & TRACY L |
Parcel PIN#: |
3886-12-415-0270 |
|
| Owner Name 2: | 1/4 section #: |
3886 |
||
| Owner Name 3: | Parent Acct: |
|
||
| Billing Address: | 5104 SUMMIT DR | Tax District: |
|
|
| City, State, Zip | EDMOND, OK 73034-7963 | School System: |
Oklahoma City #89 |
|
|
Country: (If noted) |
Land Size: |
1.0000 Site |
||
|
Land Value: 12,375 |
|
|||
|
Sect 22-T13N-R4W Qtr SE |
FOREST POINTE CONDOMINIUMS
Block
000
Lot
000
|
|||
| Full Legal Description: FOREST POINTE CONDOMINIUMS 000 000 UNIT 11B3 |
| Photo & Sketch (if available) | Comp Sales (ordered by relevancy) |
|
||||||||||||||||||
|
||||||||||||||||||||
| Value History (*The County Treasurer 405-713-1300 posts & collects actual tax amounts. Contact information HERE) | |||||||||||||
|---|---|---|---|---|---|---|---|---|---|---|---|---|---|
| Year | Market Value | Taxable Mkt Value | Gross Assessed | Exemption | Net Assessed | Millage | Est. Tax | Tax Savings | |||||
|
2026 |
99,000 |
84,423 |
9,286 |
0 |
9,286 |
122.90 |
$1,141 |
$197 |
|||||
|
2025 |
100,000 |
80,403 |
8,844 |
0 |
8,844 |
122.90 |
$1,087 |
$265 |
|||||
|
2024 |
98,500 |
76,575 |
8,423 |
0 |
8,423 |
123.89 |
$1,044 |
$299 |
|||||
|
2023 |
92,500 |
72,929 |
8,022 |
0 |
8,022 |
122.82 |
$985 |
$264 |
|||||
|
2022 |
74,500 |
69,457 |
7,639 |
0 |
7,639 |
117.63 |
$899 |
$65 |
|||||
| Property Account Status/Adjustments/Exemptions | ||
|---|---|---|
| Account # | Exemption Description | Amount |
|
R124150270 |
5% Capped Account |
0 |
| Property Deed Transaction History (Recorded in the County Clerk's Office) | |||||||
|---|---|---|---|---|---|---|---|
| Date | Type | Book | Page | Price | Grantor | Grantee | |
|
7/10/2001 |
|
Deeds |
$33,500 |
CARINDER JAMES E & PEGGIE TRS CARINDER JAMES E & PEGGIE E |
BROCK R TODD & TRACY L |
||
|
8/6/1996 |
|
Historical |
$0 |
CARINDER JAMES E & PEGGY |
CARINDER JAMES E & PEGGIE TRS |
||
|
3/1/1985 |
|
Historical |
$0 |
|
CARINDER JAMES E & PEGGY |
||
| Last Mailed Notice of Value (N.O.V.) Information/History | ||||||||
|---|---|---|---|---|---|---|---|---|
| Year | Date | Market Value | Taxable Market Value | Gross Assessed | Exemption | Net Assessed | ||
|
2026 |
02/23/2026 |
99,000 |
84,423 |
9,286 |
0 |
9,286 |
||
|
2025 |
02/14/2025 |
100,000 |
80,403 |
8,844 |
0 |
8,844 |
||
|
2024 |
02/13/2024 |
98,500 |
76,575 |
8,423 |
0 |
8,423 |
||
|
2023 |
02/14/2023 |
92,500 |
72,929 |
8,022 |
0 |
8,022 |
||
|
2022 |
03/15/2022 |
74,500 |
69,457 |
7,639 |
0 |
7,639 |
||
| Property Building Permit History | |||||||||||
|---|---|---|---|---|---|---|---|---|---|---|---|
| Issued | Permit # | Provided by | Bldg # | Description | Est Construction Cost | Status | |||||
| No Building Permit records returned. | |||||||||||
| Click button on building number to access detailed information: | ||||||
|---|---|---|---|---|---|---|
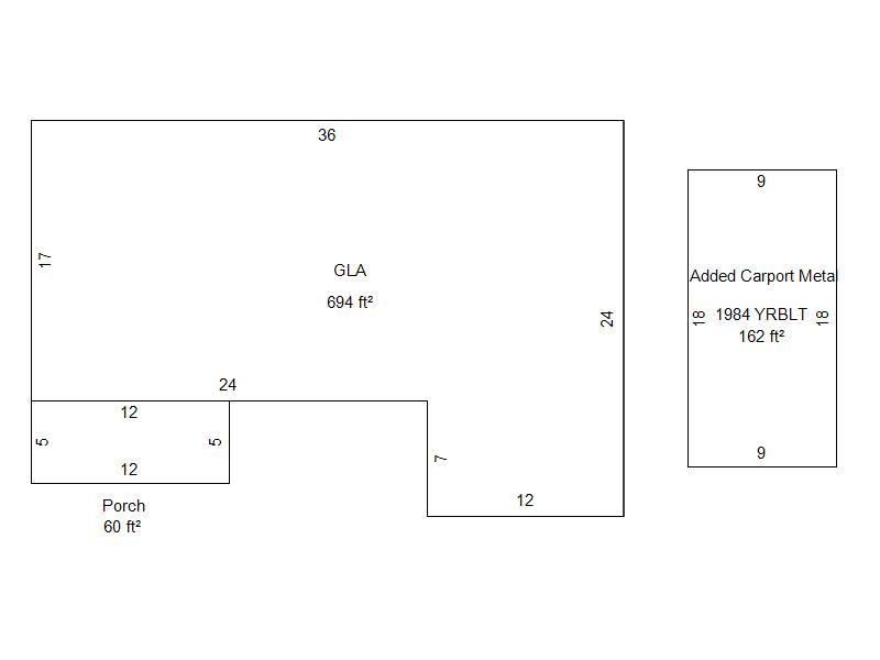
| Bldg # | Vacant/Improved Land | Bldg Description | Year Built | SqFt | # Stories | |
|
1 |
Improved |
Condo <= 3 Stories |
1984 |
694 |
1 Stories |
|