|
|
|
| Larry Stein Oklahoma County Assessor (405) 713-1200 - Public Access System |
|
|
|
|
|
|
| Real Property Display - Screen Produced 4/1/2026 5:15:52 AM | ||||
|---|---|---|---|---|
| Account: R144661100 | Type: Residential | Location: |
11509 SAINT CHARLES AVE |
|
| Building Name/Occupant: |
|
OKLAHOMA CITY |
||
| Owner Name 1: | REYNOLDS ERIC L |
Parcel PIN#: |
3887-14-466-1100 |
|
| Owner Name 2: | 1/4 section #: |
3887 |
||
| Owner Name 3: | Parent Acct: |
|
||
| Billing Address: | 5900 SULGRAVE MNR | Tax District: |
|
|
| City, State, Zip | OKLAHOMA CITY, OK 73132-4731 | School System: |
Putnam City #1 |
|
|
Country: (If noted) |
Land Size: |
0.2342 Acres |
||
|
Land Value: 44,880 |
|
|||
|
Sect 22-T13N-R4W Qtr SW |
BLUFF CREEK
Block
001
Lot
011
|
|||
| Full Legal Description: BLUFF CREEK 001 011 |
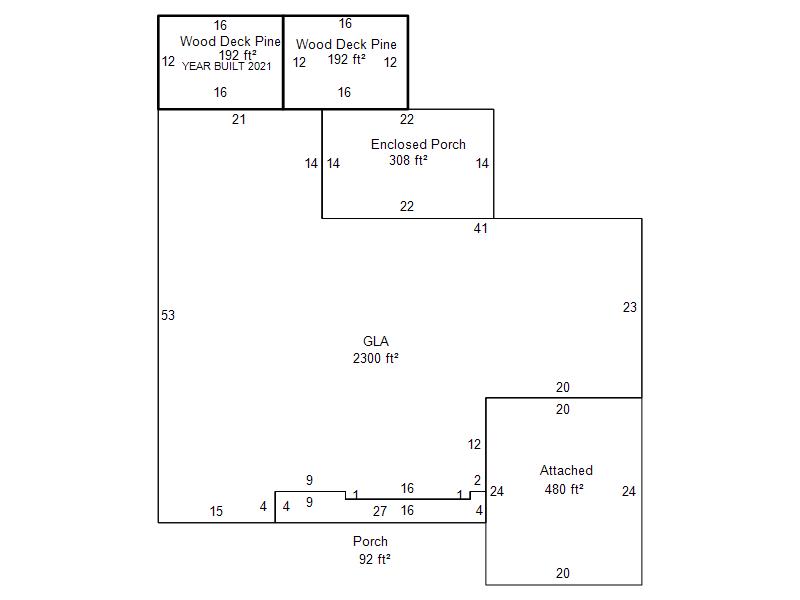
| Photo & Sketch (if available) | Comp Sales (ordered by relevancy) |
|
||||||||||||||||||
|
||||||||||||||||||||
| Value History (*The County Treasurer 405-713-1300 posts & collects actual tax amounts. Contact information HERE) | |||||||||||||
|---|---|---|---|---|---|---|---|---|---|---|---|---|---|
| Year | Market Value | Taxable Mkt Value | Gross Assessed | Exemption | Net Assessed | Millage | Est. Tax | Tax Savings | |||||
|
2026 |
298,500 |
263,535 |
28,988 |
0 |
28,988 |
123.17 |
$3,571 |
$474 |
|||||
|
2025 |
292,500 |
250,986 |
27,607 |
0 |
27,607 |
123.17 |
$3,401 |
$562 |
|||||
|
2024 |
288,000 |
239,035 |
26,293 |
0 |
26,293 |
122.30 |
$3,216 |
$659 |
|||||
|
2023 |
272,000 |
227,653 |
25,041 |
0 |
25,041 |
121.91 |
$3,053 |
$595 |
|||||
|
2022 |
239,500 |
211,575 |
23,273 |
0 |
23,273 |
123.41 |
$2,872 |
$379 |
|||||
| Property Account Status/Adjustments/Exemptions | ||
|---|---|---|
| Account # | Exemption Description | Amount |
|
R144661100 |
5% Capped Account |
0 |
| Property Deed Transaction History (Recorded in the County Clerk's Office) | ||||||||||
|---|---|---|---|---|---|---|---|---|---|---|
| Date | Type | Book | Page | Price | Grantor | Grantee | ||||
|
7/9/2020 |
|
Deeds |
$194,000 |
LITICKER DOUGLAS W & BEVERLY A |
REYNOLDS ERIC L |
|||||
|
9/6/2011 |
|
Deeds |
$117,500 |
HINSHAW DENNY |
LITICKER DOUGLAS W & BEVERLY A |
|||||
|
1/5/2011 |
|
Deeds |
$105,000 |
BASH MARGERY RUTH |
CUATRO PROPERTIES LLC |
|||||
|
1/5/2011 |
|
Deeds |
$117,000 |
CUATRO PROPERTIES LLC CUATRO PROPERTIES LLC |
HINSHAW DENNY |
|||||
|
12/14/2001 |
|
Deeds |
$0 |
BASH JAMES L & MARGERY RUTH |
BASH MARGERY RUTH |
|||||
| Last Mailed Notice of Value (N.O.V.) Information/History | ||||||||
|---|---|---|---|---|---|---|---|---|
| Year | Date | Market Value | Taxable Market Value | Gross Assessed | Exemption | Net Assessed | ||
|
2026 |
02/23/2026 |
298,500 |
263,535 |
28,988 |
0 |
28,988 |
||
|
2025 |
02/14/2025 |
292,500 |
250,986 |
27,607 |
0 |
27,607 |
||
|
2024 |
02/13/2024 |
288,000 |
239,035 |
26,293 |
0 |
26,293 |
||
|
2023 |
03/02/2023 |
272,000 |
227,653 |
25,041 |
0 |
25,041 |
||
|
2022 |
03/15/2022 |
239,500 |
211,575 |
23,273 |
0 |
23,273 |
||
| Property Building Permit History | |||||||||||
|---|---|---|---|---|---|---|---|---|---|---|---|
| Issued | Permit # | Provided by | Bldg # | Description | Est Construction Cost | Status | |||||
| No Building Permit records returned. | |||||||||||
| Click button on building number to access detailed information: | ||||||
|---|---|---|---|---|---|---|
| Bldg # | Vacant/Improved Land | Bldg Description | Year Built | SqFt | # Stories | |
|
1 |
Improved |
Ranch 1 Story |
1974 |
2,300 |
1 Stories |
|