|
|
|
| Larry Stein Oklahoma County Assessor (405) 713-1200 - Public Access System |
|
|
|
|
|
|
| Real Property Display - Screen Produced 4/1/2026 5:15:50 AM | ||||
|---|---|---|---|---|
| Account: R144661700 | Type: Residential | Location: |
5504 NW 115TH ST |
|
| Building Name/Occupant: |
|
OKLAHOMA CITY |
||
| Owner Name 1: | 5504 NW 115TH STREET LLC |
Parcel PIN#: |
3887-14-466-1700 |
|
| Owner Name 2: | 1/4 section #: |
3887 |
||
| Owner Name 3: | Parent Acct: |
|
||
| Billing Address: | 6915 N CLASSEN BLVD STE C | Tax District: |
|
|
| City, State, Zip | OKLAHOMA CITY, OK 73116 | School System: |
Putnam City #1 |
|
|
Country: (If noted) |
Land Size: |
0.1816 Acres |
||
|
Land Value: 34,804 |
|
|||
|
Sect 22-T13N-R4W Qtr SW |
BLUFF CREEK
Block
005
Lot
004
|
|||
| Full Legal Description: BLUFF CREEK 005 004 |
| Photo & Sketch (if available) | Comp Sales (ordered by relevancy) |
|
||||||||||||||||||
|
||||||||||||||||||||
| Value History (*The County Treasurer 405-713-1300 posts & collects actual tax amounts. Contact information HERE) | |||||||||||||
|---|---|---|---|---|---|---|---|---|---|---|---|---|---|
| Year | Market Value | Taxable Mkt Value | Gross Assessed | Exemption | Net Assessed | Millage | Est. Tax | Tax Savings | |||||
|
2026 |
224,500 |
193,993 |
21,339 |
0 |
21,339 |
123.17 |
$2,628 |
$413 |
|||||
|
2025 |
218,500 |
184,756 |
20,322 |
0 |
20,322 |
123.17 |
$2,503 |
$457 |
|||||
|
2024 |
214,000 |
175,959 |
19,354 |
0 |
19,354 |
122.30 |
$2,367 |
$512 |
|||||
|
2023 |
205,500 |
167,580 |
18,433 |
0 |
18,433 |
121.91 |
$2,247 |
$509 |
|||||
|
2022 |
180,000 |
159,600 |
17,556 |
0 |
17,556 |
123.41 |
$2,167 |
$277 |
|||||
| Property Account Status/Adjustments/Exemptions | ||
|---|---|---|
| Account # | Exemption Description | Amount |
|
R144661700 |
5% Capped Account |
0 |
| Property Deed Transaction History (Recorded in the County Clerk's Office) | ||||||||||
|---|---|---|---|---|---|---|---|---|---|---|
| Date | Type | Book | Page | Price | Grantor | Grantee | ||||
|
11/19/2019 |
|
Deeds |
$163,000 |
STARK RICHARD W |
5504 NW 115TH STREET LLC |
|||||
|
1/23/2017 |
|
Deeds |
$0 |
STARK RICHARD W & GINGER L |
STARK RICHARD W |
|||||
|
6/29/2016 |
|
Other |
$0 |
SECRETARY OF HOUSING & URBAN DEV |
STARK RICHARD W & GINGER L |
|||||
|
7/30/2015 |
|
Other |
$0 |
US BANK NATIONAL ASSOCIATION |
SECRETARY OF HOUSING & URBAN DEV |
|||||
|
7/1/2015 |
|
Hmstd Off & |
$0 |
BARRITT CLAYTON |
US BANK NATIONAL ASSOCIATION |
|||||
| Last Mailed Notice of Value (N.O.V.) Information/History | ||||||||
|---|---|---|---|---|---|---|---|---|
| Year | Date | Market Value | Taxable Market Value | Gross Assessed | Exemption | Net Assessed | ||
|
2026 |
02/23/2026 |
224,500 |
193,993 |
21,339 |
0 |
21,339 |
||
|
2025 |
02/14/2025 |
218,500 |
184,756 |
20,322 |
0 |
20,322 |
||
|
2024 |
02/13/2024 |
214,000 |
175,959 |
19,354 |
0 |
19,354 |
||
|
2023 |
02/14/2023 |
205,500 |
167,580 |
18,433 |
0 |
18,433 |
||
|
2022 |
03/15/2022 |
180,000 |
159,600 |
17,556 |
0 |
17,556 |
||
| Property Building Permit History | |||||||||||
|---|---|---|---|---|---|---|---|---|---|---|---|
| Issued | Permit # | Provided by | Bldg # | Description | Est Construction Cost | Status | |||||
| No Building Permit records returned. | |||||||||||
| Click button on building number to access detailed information: | ||||||
|---|---|---|---|---|---|---|
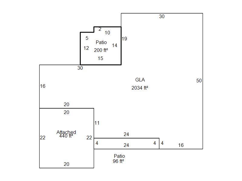
| Bldg # | Vacant/Improved Land | Bldg Description | Year Built | SqFt | # Stories | |
|
1 |
Improved |
Ranch 1 Story |
1973 |
2,034 |
1 Stories |
|