|
|
|
| Larry Stein Oklahoma County Assessor (405) 713-1200 - Public Access System |
|
|
|
|
|
|
| Real Property Display - Screen Produced 4/1/2026 7:41:49 AM | ||||
|---|---|---|---|---|
| Account: R144667030 | Type: Residential | Location: |
5400 NW 112TH ST |
|
| Building Name/Occupant: |
|
OKLAHOMA CITY |
||
| Owner Name 1: | SAPPINGTON ARIC & DANIELLE |
Parcel PIN#: |
3887-14-466-7030 |
|
| Owner Name 2: | 1/4 section #: |
3887 |
||
| Owner Name 3: | Parent Acct: |
|
||
| Billing Address: | 5400 NW 112TH ST | Tax District: |
|
|
| City, State, Zip | OKLAHOMA CITY, OK 73162-3701 | School System: |
Putnam City #1 |
|
|
Country: (If noted) |
Land Size: |
0.2314 Acres |
||
|
Land Value: 44,352 |
|
|||
|
Sect 22-T13N-R4W Qtr SW |
BLUFF CREEK
Block
013
Lot
009
|
|||
| Full Legal Description: BLUFF CREEK 013 009 |
| Photo & Sketch (if available) | Comp Sales (ordered by relevancy) |
|
||||||||||||||||||
|
||||||||||||||||||||
| Value History (*The County Treasurer 405-713-1300 posts & collects actual tax amounts. Contact information HERE) | |||||||||||||
|---|---|---|---|---|---|---|---|---|---|---|---|---|---|
| Year | Market Value | Taxable Mkt Value | Gross Assessed | Exemption | Net Assessed | Millage | Est. Tax | Tax Savings | |||||
|
2026 |
249,000 |
195,078 |
21,457 |
1,000 |
20,457 |
123.17 |
$2,520 |
$854 |
|||||
|
2025 |
243,500 |
189,397 |
20,832 |
1,000 |
19,832 |
123.17 |
$2,443 |
$856 |
|||||
|
2024 |
237,500 |
183,881 |
20,226 |
1,000 |
19,226 |
122.30 |
$2,351 |
$844 |
|||||
|
2023 |
227,000 |
178,526 |
19,636 |
1,000 |
18,636 |
121.91 |
$2,272 |
$772 |
|||||
|
2022 |
201,500 |
173,327 |
19,065 |
1,000 |
18,065 |
123.41 |
$2,230 |
$506 |
|||||
| Property Account Status/Adjustments/Exemptions | ||
|---|---|---|
| Account # | Exemption Description | Amount |
|
R144667030 |
3% Cap Homestead |
0 |
|
R144667030 |
Homestead |
1,000 |
| Property Deed Transaction History (Recorded in the County Clerk's Office) | |||||||
|---|---|---|---|---|---|---|---|
| Date | Type | Book | Page | Price | Grantor | Grantee | |
|
8/30/2007 |
|
Deeds |
$165,000 |
JOHNSTON JUDY M TRS |
SAPPINGTON ARIC & DANIELLE |
||
|
8/17/2005 |
|
Deeds |
$0 |
JOHNSTON JUDY M |
JOHNSTON JUDY M TRS |
||
|
11/1/1980 |
|
Historical |
$0 |
|
JOHNSTON JUDY M |
||
| Last Mailed Notice of Value (N.O.V.) Information/History | ||||||||
|---|---|---|---|---|---|---|---|---|
| Year | Date | Market Value | Taxable Market Value | Gross Assessed | Exemption | Net Assessed | ||
|
2026 |
02/23/2026 |
249,000 |
195,078 |
21,457 |
1,000 |
20,457 |
||
|
2025 |
02/14/2025 |
243,500 |
189,397 |
20,832 |
1,000 |
19,832 |
||
|
2024 |
02/13/2024 |
237,500 |
183,881 |
20,226 |
1,000 |
19,226 |
||
|
2023 |
02/14/2023 |
227,000 |
178,526 |
19,636 |
1,000 |
18,636 |
||
|
2022 |
03/15/2022 |
201,500 |
173,327 |
19,065 |
1,000 |
18,065 |
||
| Property Building Permit History | |||||||||||
|---|---|---|---|---|---|---|---|---|---|---|---|
| Issued | Permit # | Provided by | Bldg # | Description | Est Construction Cost | Status | |||||
| No Building Permit records returned. | |||||||||||
| Click button on building number to access detailed information: | ||||||
|---|---|---|---|---|---|---|
| Bldg # | Vacant/Improved Land | Bldg Description | Year Built | SqFt | # Stories | |
|
1 |
Improved |
Ranch 1 Story |
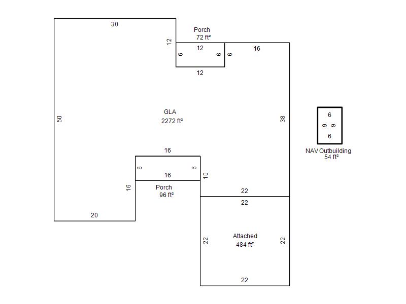
1975 |
2,272 |
1 Stories |
|