|
|
|
| Larry Stein Oklahoma County Assessor (405) 713-1200 - Public Access System |
|
|
|
|
|
|
| Real Property Display - Screen Produced 4/1/2026 5:36:25 AM | ||||
|---|---|---|---|---|
| Account: R171296380 | Type: Residential | Location: |
10904 BLUFF CREEK DR |
|
| Building Name/Occupant: |
|
OKLAHOMA CITY |
||
| Owner Name 1: | MORRIS SCOTTY |
Parcel PIN#: |
3887-17-129-6380 |
|
| Owner Name 2: | 1/4 section #: |
3887 |
||
| Owner Name 3: | Parent Acct: |
|
||
| Billing Address: | 10904 BLUFF CREEK DR | Tax District: |
|
|
| City, State, Zip | OKLAHOMA CITY, OK 73162-5909 | School System: |
Putnam City #1 |
|
|
Country: (If noted) |
Land Size: |
0.2026 Acres |
||
|
Land Value: 44,000 |
|
|||
|
Sect 22-T13N-R4W Qtr SW |
BLUFF CREEK SEC 2
Block
023
Lot
039
|
|||
| Full Legal Description: BLUFF CREEK SEC 2 023 039 |
| Photo & Sketch (if available) | Comp Sales (ordered by relevancy) |
|
||||||||||||||||||
|
||||||||||||||||||||
| Value History (*The County Treasurer 405-713-1300 posts & collects actual tax amounts. Contact information HERE) | |||||||||||||
|---|---|---|---|---|---|---|---|---|---|---|---|---|---|
| Year | Market Value | Taxable Mkt Value | Gross Assessed | Exemption | Net Assessed | Millage | Est. Tax | Tax Savings | |||||
|
2026 |
265,000 |
265,000 |
29,150 |
29,150 |
0 |
123.17 |
$0 |
$3,590 |
|||||
|
2025 |
259,500 |
259,500 |
28,545 |
28,545 |
0 |
123.17 |
$0 |
$3,516 |
|||||
|
2024 |
253,000 |
253,000 |
27,830 |
27,830 |
0 |
122.30 |
$0 |
$3,404 |
|||||
|
2023 |
241,500 |
187,948 |
20,674 |
9,614 |
11,060 |
121.91 |
$1,348 |
$1,890 |
|||||
|
2022 |
214,000 |
182,474 |
20,071 |
1,000 |
19,071 |
123.41 |
$2,354 |
$551 |
|||||
| Property Account Status/Adjustments/Exemptions | ||
|---|---|---|
| Account # | Exemption Description | Amount |
|
R171296380 |
3% Cap Homestead |
0 |
|
R171296380 |
100% DAV Exemption |
100 |
|
R171296380 |
DAV Homestead |
0 |
| Property Deed Transaction History (Recorded in the County Clerk's Office) | |||||||
|---|---|---|---|---|---|---|---|
| Date | Type | Book | Page | Price | Grantor | Grantee | |
|
8/25/2023 |
|
Deeds |
$255,000 |
HUGHES DAVID WAYNE & DEBORAH J TRS |
MORRIS SCOTTY |
||
|
12/7/2017 |
|
Deeds |
$0 |
HUGHES DAVID WAYNE & DEBORAH J |
HUGHES DAVID WAYNE & DEBORAH J TRS |
||
|
4/1/1986 |
|
Historical |
$92,500 |
|
HUGHES DAVID WAYNE & DEBORAH J |
||
| Last Mailed Notice of Value (N.O.V.) Information/History | ||||||||
|---|---|---|---|---|---|---|---|---|
| Year | Date | Market Value | Taxable Market Value | Gross Assessed | Exemption | Net Assessed | ||
|
2026 |
02/23/2026 |
265,000 |
265,000 |
29,150 |
29,150 |
0 |
||
|
2025 |
02/14/2025 |
259,500 |
259,500 |
28,545 |
28,545 |
0 |
||
|
2024 |
02/13/2024 |
253,000 |
253,000 |
27,830 |
27,830 |
0 |
||
|
2023 |
02/14/2023 |
241,500 |
187,948 |
20,674 |
1,000 |
19,674 |
||
|
2022 |
03/15/2022 |
214,000 |
182,474 |
20,071 |
1,000 |
19,071 |
||
| Property Building Permit History | |||||||||||
|---|---|---|---|---|---|---|---|---|---|---|---|
| Issued | Permit # | Provided by | Bldg # | Description | Est Construction Cost | Status | |||||
| No Building Permit records returned. | |||||||||||
| Click button on building number to access detailed information: | ||||||
|---|---|---|---|---|---|---|
| Bldg # | Vacant/Improved Land | Bldg Description | Year Built | SqFt | # Stories | |
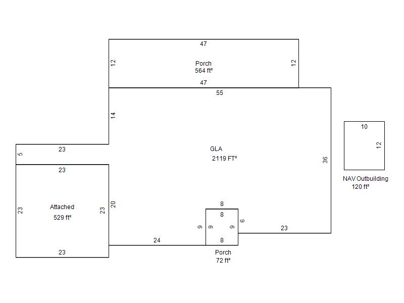
|
1 |
Improved |
Ranch 1 Story |
1982 |
2,119 |
1 Stories |
|