|
|
|
| Larry Stein Oklahoma County Assessor (405) 713-1200 - Public Access System |
|
|
|
|
|
|
| Real Property Display - Screen Produced 4/25/2026 6:15:48 PM | ||||
|---|---|---|---|---|
| Account: R267164030 | Type: Residential | Location: |
18300 SE 29TH ST |
|
| Building Name/Occupant: |
|
UNINCORPORATED |
||
| Owner Name 1: | YEARGAIN STEVEN & VICKY |
Parcel PIN#: |
1064-26-716-4030 |
|
| Owner Name 2: | 1/4 section #: |
1064 |
||
| Owner Name 3: | Parent Acct: |
|
||
| Billing Address: | 18300 1/2 SE 29TH ST | Tax District: |
|
|
| City, State, Zip | NEWALLA, OK 74857-8878 | School System: |
Choctaw #4 |
|
|
Country: (If noted) |
Land Size: |
3.5000 Acres |
||
|
Land Value: 70,161 |
|
|||
|
Sect 16-T11N-R1E Qtr NW |
POTTAWATOMIE TOWNSHIP
Block
000
Lot
000
|
|||
| Full Legal Description: POTTAWATOMIE TOWNSHIP PT NW4 SEC 16 11N 1E BEG NE/C OF W 1/2 OF NW4 TH W220FT S676.75FT E220FT N676.75FT TO BEG CONT 3 1/2ACRS MORE OR LESS |
| No comparable sales report available. | ||||||||||||||||||||||
|
||||||||||||||||||||||
| Value History (*The County Treasurer 405-713-1300 posts & collects actual tax amounts. Contact information HERE) | |||||||||||||
|---|---|---|---|---|---|---|---|---|---|---|---|---|---|
| Year | Market Value | Taxable Mkt Value | Gross Assessed | Exemption | Net Assessed | Millage | Est. Tax | Tax Savings | |||||
|
2026 |
176,601 |
92,233 |
10,145 |
1,000 |
9,145 |
117.21 |
$1,072 |
$1,205 |
|||||
|
2025 |
205,584 |
92,233 |
10,145 |
1,000 |
9,145 |
117.21 |
$1,072 |
$1,579 |
|||||
|
2024 |
174,166 |
89,547 |
9,849 |
1,000 |
8,849 |
116.35 |
$1,030 |
$1,199 |
|||||
| Property Account Status/Adjustments/Exemptions | ||
|---|---|---|
| Account # | Exemption Description | Amount |
|
R267164030 |
Freeze Senior Valuation |
0 |
|
R267164030 |
3% Cap Homestead |
0 |
|
R267164030 |
Homestead |
1,000 |
| Property Deed Transaction History (Recorded in the County Clerk's Office) | ||||||||||
|---|---|---|---|---|---|---|---|---|---|---|
| Date | Type | Book | Page | Price | Grantor | Grantee | ||||
|
7/25/2012 |
|
Deeds |
$0 |
GARZA MICHAEL SHANE |
YEARGAIN STEVEN & VICKY |
|||||
|
12/31/2003 |
|
Hmstd Off & |
$0 |
AFFIDAVIT OF SURVIVING JOINT TENANT |
GARZA MICHAEL S PERS REP FOR GARZA ADOLPH MALDANO |
|||||
|
12/31/2003 |
|
Deeds |
$80,000 |
GARZA MICHAEL S PER REP FOR GARZA ADOLPH MALDANO |
YEARGAIN STEVEN & VICKY |
|||||
| Last Mailed Notice of Value (N.O.V.) Information/History | ||||||||
|---|---|---|---|---|---|---|---|---|
| Year | Date | Market Value | Taxable Market Value | Gross Assessed | Exemption | Net Assessed | ||
|
2025 |
01/31/2025 |
205,584 |
92,233 |
10,145 |
1,000 |
9,145 |
||
|
2024 |
01/22/2024 |
174,166 |
89,547 |
9,849 |
1,000 |
8,849 |
||
|
2023 |
01/23/2023 |
174,947 |
86,939 |
9,562 |
1,000 |
8,562 |
||
| Property Building Permit History | |||||||||||
|---|---|---|---|---|---|---|---|---|---|---|---|
| Issued | Permit # | Provided by | Bldg # | Description | Est Construction Cost | Status | |||||
| No Building Permit records returned. | |||||||||||
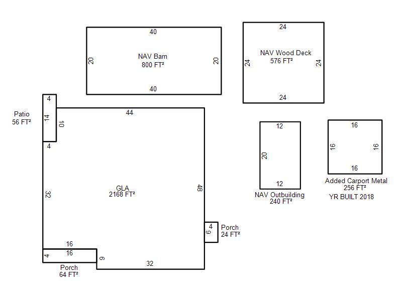
| Click button below to access detailed information and additional property photos: | ||||||
|---|---|---|---|---|---|---|
| Bldg # | Vacant/Improved Land | Bldg Description | Year Built | SqFt | # Stories | |
|
1 |
Improved |
Ranch 1 Story |
1959 |
2,168 |
1 Stories |
|
|
2 |
Improved |
Single Wide |
1981 |
924 |
1 Stories |
|
|
3 |
Improved |
Double Wide |
1995 |
1,400 |
1 Stories |
|