|
|
|
| Larry Stein Oklahoma County Assessor (405) 713-1200 - Public Access System |
|
|
|
|
|
|
| Real Property Display - Screen Produced 4/5/2026 1:46:43 AM | ||||
|---|---|---|---|---|
| Account: R108212912 | Type: Residential | Location: |
2912 ROSEWOOD LN |
|
| Building Name/Occupant: |
|
OKLAHOMA CITY |
||
| Owner Name 1: | HELVEY MARIA T TRS |
Parcel PIN#: |
3893-10-821-2912 |
|
| Owner Name 2: | HELVEY FAMILY TRUST | 1/4 section #: |
3893 |
|
| Owner Name 3: | Parent Acct: |
|
||
| Billing Address: | 15316 SHADOW MOUNTAIN DR | Tax District: |
|
|
| City, State, Zip | EDMOND, OK 73013-9203 | School System: |
Oklahoma City #89 |
|
|
Country: (If noted) |
Land Size: |
1.0000 Square Feet |
||
|
Land Value: 17,550 |
|
|||
|
Sect 24-T13N-R4W Qtr NE |
CHAUMONT CONDIMINIUM
Block
000
Lot
000
|
|||
| Full Legal Description: CHAUMONT CONDIMINIUM 000 000 UNIT 2912 |
| Photo & Sketch (if available) | Comp Sales (ordered by relevancy) |
|
||||||||||||||||||
|
||||||||||||||||||||
| Value History (*The County Treasurer 405-713-1300 posts & collects actual tax amounts. Contact information HERE) | |||||||||||||
|---|---|---|---|---|---|---|---|---|---|---|---|---|---|
| Year | Market Value | Taxable Mkt Value | Gross Assessed | Exemption | Net Assessed | Millage | Est. Tax | Tax Savings | |||||
|
2026 |
145,000 |
145,000 |
15,950 |
0 |
15,950 |
122.90 |
$1,960 |
$0 |
|||||
|
2025 |
142,000 |
142,000 |
15,620 |
0 |
15,620 |
122.90 |
$1,920 |
$0 |
|||||
|
2024 |
143,000 |
113,557 |
12,490 |
0 |
12,490 |
123.89 |
$1,548 |
$401 |
|||||
|
2023 |
143,000 |
108,150 |
11,896 |
0 |
11,896 |
122.82 |
$1,461 |
$471 |
|||||
|
2022 |
103,000 |
103,000 |
11,330 |
0 |
11,330 |
117.63 |
$1,333 |
$0 |
|||||
| Property Account Status/Adjustments/Exemptions | ||
|---|---|---|
| Account # | Exemption Description | Amount |
|
R108212912 |
5% Capped Account |
0 |
| Property Deed Transaction History (Recorded in the County Clerk's Office) | ||||||||||
|---|---|---|---|---|---|---|---|---|---|---|
| Date | Type | Book | Page | Price | Grantor | Grantee | ||||
|
7/11/2024 |
|
Deeds |
$165,000 |
HUMAN RESTORATION LLC |
HELVEY MARIA TERESA |
|||||
|
7/11/2024 |
|
Hmstd Off & |
$0 |
HELVEY MARIA TERESA |
HELVEY MARIA T TRS |
|||||
|
1/6/2004 |
|
Deeds |
$85,000 |
REAGAN BURKE K |
HUMAN RESTORATION LLC |
|||||
|
7/25/2002 |
|
Deeds |
$80,000 |
REAGAN KENNETH R & JIMMIE C |
REAGAN BURKE K |
|||||
|
6/4/1999 |
|
Deeds |
$73,000 |
CONE HAROLD H & MARGARET L TRS |
REAGAN KENNETH R & JIMMIE C |
|||||
| Last Mailed Notice of Value (N.O.V.) Information/History | ||||||||
|---|---|---|---|---|---|---|---|---|
| Year | Date | Market Value | Taxable Market Value | Gross Assessed | Exemption | Net Assessed | ||
|
2026 |
02/23/2026 |
145,000 |
145,000 |
15,950 |
0 |
15,950 |
||
|
2025 |
02/14/2025 |
142,000 |
142,000 |
15,620 |
0 |
15,620 |
||
|
2024 |
02/13/2024 |
143,000 |
113,557 |
12,490 |
0 |
12,490 |
||
|
2023 |
02/14/2023 |
143,000 |
108,150 |
11,896 |
0 |
11,896 |
||
|
2023 |
03/02/2023 |
143,000 |
108,150 |
11,896 |
0 |
11,896 |
||
| Property Building Permit History | |||||||||||
|---|---|---|---|---|---|---|---|---|---|---|---|
| Issued | Permit # | Provided by | Bldg # | Description | Est Construction Cost | Status | |||||
| No Building Permit records returned. | |||||||||||
| Click button on building number to access detailed information: | ||||||
|---|---|---|---|---|---|---|
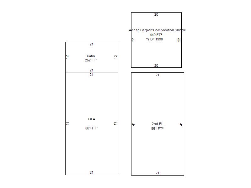
| Bldg # | Vacant/Improved Land | Bldg Description | Year Built | SqFt | # Stories | |
|
1 |
Improved |
Condo <= 3 Stories |
1971 |
1,722 |
2 Stories |
|