|
|
|
| Larry Stein Oklahoma County Assessor (405) 713-1200 - Public Access System |
|
|
|
|
|
|
| Real Property Display - Screen Produced 3/31/2026 10:26:11 PM | ||||
|---|---|---|---|---|
| Account: R120761040 | Type: Residential | Location: |
3133 PRAIRIE ROSE RD |
|
| Building Name/Occupant: |
|
OKLAHOMA CITY |
||
| Owner Name 1: | AMALONG WILLIAM D & KATHLEEN |
Parcel PIN#: |
3893-12-076-1040 |
|
| Owner Name 2: | 1/4 section #: |
3893 |
||
| Owner Name 3: | Parent Acct: |
|
||
| Billing Address: | 3133 PRAIRIE ROSE RD | Tax District: |
|
|
| City, State, Zip | OKLAHOMA CITY, OK 73120-5354 | School System: |
Oklahoma City #89 |
|
|
Country: (If noted) |
Land Size: |
0.2330 Acres |
||
|
Land Value: 63,932 |
|
|||
|
Sect 24-T13N-R4W Qtr NE |
QUAIL CREEK SEC 39
Block
082
Lot
023
|
|||
| Full Legal Description: QUAIL CREEK SEC 39 082 023 |
| Photo & Sketch (if available) | Comp Sales (ordered by relevancy) |
|
||||||||||||||||||
|
||||||||||||||||||||
| Value History (*The County Treasurer 405-713-1300 posts & collects actual tax amounts. Contact information HERE) | |||||||||||||
|---|---|---|---|---|---|---|---|---|---|---|---|---|---|
| Year | Market Value | Taxable Mkt Value | Gross Assessed | Exemption | Net Assessed | Millage | Est. Tax | Tax Savings | |||||
|
2026 |
486,000 |
437,540 |
48,128 |
0 |
48,128 |
122.90 |
$5,915 |
$655 |
|||||
|
2025 |
482,500 |
416,705 |
45,836 |
0 |
45,836 |
122.90 |
$5,633 |
$889 |
|||||
|
2024 |
454,500 |
396,862 |
43,654 |
0 |
43,654 |
123.89 |
$5,408 |
$785 |
|||||
|
2023 |
436,000 |
377,964 |
41,575 |
0 |
41,575 |
122.82 |
$5,106 |
$784 |
|||||
|
2022 |
378,500 |
359,966 |
39,595 |
0 |
39,595 |
117.63 |
$4,658 |
$240 |
|||||
| Property Account Status/Adjustments/Exemptions | ||
|---|---|---|
| Account # | Exemption Description | Amount |
|
R120761040 |
5% Capped Account |
0 |
| Property Deed Transaction History (Recorded in the County Clerk's Office) | |||||||
|---|---|---|---|---|---|---|---|
| Date | Type | Book | Page | Price | Grantor | Grantee | |
|
2/2/1988 |
|
Historical |
$0 |
FLYNN STEPHEN S & CHRISTI M |
AMALONG WILLIAM D & KATHLEEN |
||
|
12/1/1985 |
|
Historical |
$182,000 |
|
FLYNN STEPHEN S & CHRISTI M |
||
| Last Mailed Notice of Value (N.O.V.) Information/History | ||||||||
|---|---|---|---|---|---|---|---|---|
| Year | Date | Market Value | Taxable Market Value | Gross Assessed | Exemption | Net Assessed | ||
|
2026 |
02/23/2026 |
486,000 |
437,540 |
48,128 |
0 |
48,128 |
||
|
2025 |
02/14/2025 |
482,500 |
416,705 |
45,836 |
0 |
45,836 |
||
|
2024 |
02/13/2024 |
454,500 |
396,862 |
43,654 |
0 |
43,654 |
||
|
2023 |
02/14/2023 |
436,000 |
377,964 |
41,575 |
0 |
41,575 |
||
|
2022 |
03/15/2022 |
378,500 |
359,966 |
39,595 |
0 |
39,595 |
||
| Property Building Permit History | |||||||||||
|---|---|---|---|---|---|---|---|---|---|---|---|
| Issued | Permit # | Provided by | Bldg # | Description | Est Construction Cost | Status | |||||
| No Building Permit records returned. | |||||||||||
| Click button on building number to access detailed information: | ||||||
|---|---|---|---|---|---|---|
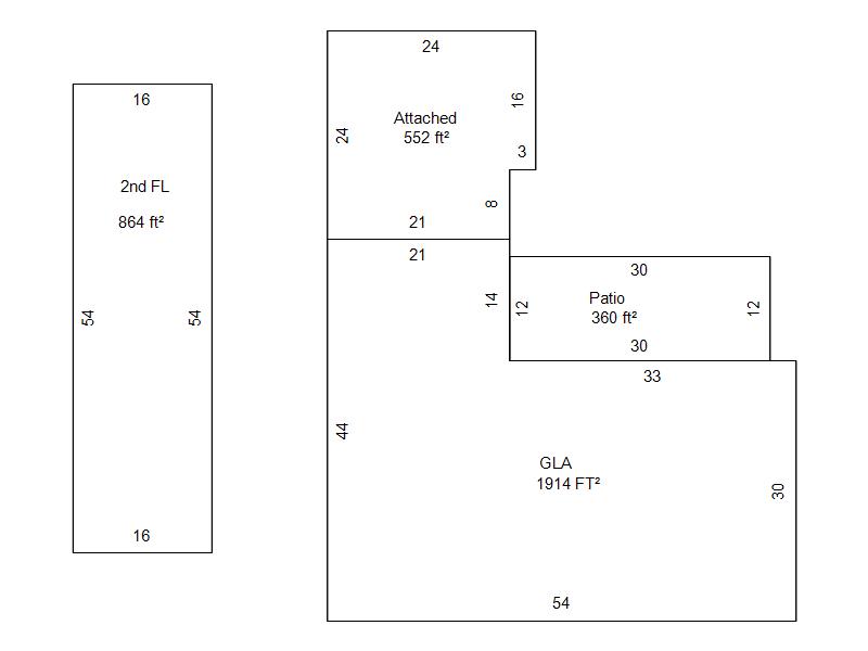
| Bldg # | Vacant/Improved Land | Bldg Description | Year Built | SqFt | # Stories | |
|
1 |
Improved |
1½ Story Fin |
1985 |
2,778 |
1.5 Stories |
|