|
|
|
| Larry Stein Oklahoma County Assessor (405) 713-1200 - Public Access System |
|
|
|
|
|
|
| Real Property Display - Screen Produced 4/2/2026 7:53:07 PM | ||||
|---|---|---|---|---|
| Account: R134671350 | Type: Residential | Location: |
11331 N MAY AVE |
|
| Building Name/Occupant: |
|
OKLAHOMA CITY |
||
| Owner Name 1: | PORTOFINO SERVICES LLC |
Parcel PIN#: |
3894-13-467-1350 |
|
| Owner Name 2: | 1/4 section #: |
3894 |
||
| Owner Name 3: | Parent Acct: |
|
||
| Billing Address: | PO BOX 21202 | Tax District: |
|
|
| City, State, Zip | OKLAHOMA CITY, OK 73156 | School System: |
Oklahoma City #89 |
|
|
Country: (If noted) |
Land Size: |
1.0000 Square Feet |
||
|
Land Value: 18,668 |
|
|||
|
Sect 24-T13N-R4W Qtr SE |
THE BARRINGTON
Block
000
Lot
000
|
|||
| Full Legal Description: THE BARRINGTON 000 000 UNIT 11331 |
| Photo & Sketch (if available) | Comp Sales (ordered by relevancy) |
|
||||||||||||||||||
|
||||||||||||||||||||
| Value History (*The County Treasurer 405-713-1300 posts & collects actual tax amounts. Contact information HERE) | |||||||||||||
|---|---|---|---|---|---|---|---|---|---|---|---|---|---|
| Year | Market Value | Taxable Mkt Value | Gross Assessed | Exemption | Net Assessed | Millage | Est. Tax | Tax Savings | |||||
|
2026 |
135,000 |
118,055 |
12,985 |
0 |
12,985 |
122.90 |
$1,596 |
$229 |
|||||
|
2025 |
134,500 |
112,434 |
12,366 |
0 |
12,366 |
122.90 |
$1,520 |
$298 |
|||||
|
2024 |
132,500 |
107,080 |
11,777 |
0 |
11,777 |
123.89 |
$1,459 |
$346 |
|||||
|
2023 |
117,000 |
101,981 |
11,217 |
0 |
11,217 |
122.82 |
$1,378 |
$203 |
|||||
|
2022 |
97,500 |
97,125 |
10,683 |
0 |
10,683 |
117.63 |
$1,257 |
$5 |
|||||
| Property Account Status/Adjustments/Exemptions | ||
|---|---|---|
| Account # | Exemption Description | Amount |
|
R134671350 |
5% Capped Account |
0 |
| Property Deed Transaction History (Recorded in the County Clerk's Office) | ||||||||||
|---|---|---|---|---|---|---|---|---|---|---|
| Date | Type | Book | Page | Price | Grantor | Grantee | ||||
|
6/28/2019 |
|
Hmstd Off & |
$0 |
CARTER CARSON |
PORTOFINO SERVICES LLC |
|||||
|
7/2/2007 |
|
Other |
$0 |
SECRETARY OF HOUSING & URBAN DEV |
CARTER CARSON |
|||||
|
1/8/2007 |
|
Hmstd Off & |
$0 |
FRIAS DOMINGO & HEATHER |
SECRETARY OF HOUSING & URBAN DEV |
|||||
|
9/24/2003 |
|
Other |
$0 |
URIEGAS DAVID |
FRIAS DOMINGO & HEATHER |
|||||
|
6/16/2000 |
|
Other |
$0 |
FRIAS DOMINGO |
URIEGAS DAVID |
|||||
| Last Mailed Notice of Value (N.O.V.) Information/History | ||||||||
|---|---|---|---|---|---|---|---|---|
| Year | Date | Market Value | Taxable Market Value | Gross Assessed | Exemption | Net Assessed | ||
|
2026 |
02/23/2026 |
135,000 |
118,055 |
12,985 |
0 |
12,985 |
||
|
2025 |
02/14/2025 |
134,500 |
112,434 |
12,366 |
0 |
12,366 |
||
|
2024 |
02/13/2024 |
132,500 |
107,080 |
11,777 |
0 |
11,777 |
||
|
2023 |
02/14/2023 |
117,000 |
101,981 |
11,217 |
0 |
11,217 |
||
|
2022 |
03/15/2022 |
97,500 |
97,125 |
10,683 |
0 |
10,683 |
||
| Property Building Permit History | |||||||||||
|---|---|---|---|---|---|---|---|---|---|---|---|
| Issued | Permit # | Provided by | Bldg # | Description | Est Construction Cost | Status | |||||
| No Building Permit records returned. | |||||||||||
| Click button on building number to access detailed information: | ||||||
|---|---|---|---|---|---|---|
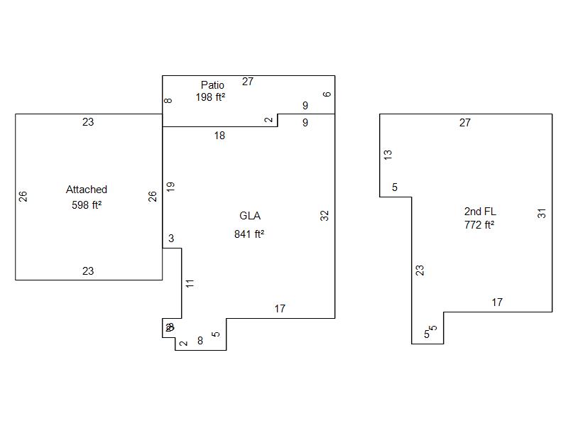
| Bldg # | Vacant/Improved Land | Bldg Description | Year Built | SqFt | # Stories | |
|
1 |
Improved |
Condo <= 3 Stories |
1977 |
1,613 |
2 Stories |
|