|
|
|
| Larry Stein Oklahoma County Assessor (405) 713-1200 - Public Access System |
|
|
|
|
|
|
| Real Property Display - Screen Produced 2/28/2026 2:56:45 AM | ||||
|---|---|---|---|---|
| Account: R148851200 | Type: Residential | Location: |
5810 HEFNER VILLAGE CT |
|
| Building Name/Occupant: |
|
OKLAHOMA CITY |
||
| Owner Name 1: | FLOWERS RONALD |
Parcel PIN#: |
3907-14-885-1200 |
|
| Owner Name 2: | 1/4 section #: |
3907 |
||
| Owner Name 3: | Parent Acct: |
|
||
| Billing Address: | 5810 HEFNER VILLAGE CT | Tax District: |
|
|
| City, State, Zip | OKLAHOMA CITY, OK 73162-7731 | School System: |
Putnam City #1 |
|
|
Country: (If noted) |
Land Size: |
0.0468 Acres |
||
|
Land Value: 17,952 |
|
|||
|
Sect 27-T13N-R4W Qtr SW |
HEFNER VILLAGE 1
Block
004
Lot
002
|
|||
| Full Legal Description: HEFNER VILLAGE 1 004 002 |
| Photo & Sketch (if available) | Comp Sales (ordered by relevancy) |
|
||||||||||||||||||
|
||||||||||||||||||||
| Value History (*The County Treasurer 405-713-1300 posts & collects actual tax amounts. Contact information HERE) | |||||||||||||
|---|---|---|---|---|---|---|---|---|---|---|---|---|---|
| Year | Market Value | Taxable Mkt Value | Gross Assessed | Exemption | Net Assessed | Millage | Est. Tax | Tax Savings | |||||
|
2025 |
163,500 |
163,500 |
17,985 |
1,000 |
16,985 |
123.17 |
$2,092 |
$123 |
|||||
|
2024 |
159,000 |
78,906 |
8,679 |
8,679 |
0 |
122.30 |
$0 |
$2,139 |
|||||
|
2023 |
158,500 |
78,906 |
8,679 |
8,679 |
0 |
121.91 |
$0 |
$2,125 |
|||||
|
2022 |
125,000 |
78,906 |
8,679 |
8,679 |
0 |
123.41 |
$0 |
$1,697 |
|||||
|
2021 |
117,000 |
78,906 |
8,679 |
8,679 |
0 |
122.23 |
$0 |
$1,573 |
|||||
| Property Account Status/Adjustments/Exemptions | ||
|---|---|---|
| Account # | Exemption Description | Amount |
|
R148851200 |
3% Cap Homestead |
0 |
|
R148851200 |
Homestead |
1,000 |
| Property Deed Transaction History (Recorded in the County Clerk's Office) | ||||||||||
|---|---|---|---|---|---|---|---|---|---|---|
| Date | Type | Book | Page | Price | Grantor | Grantee | ||||
|
4/11/2024 |
|
Deeds |
$126,500 |
FLOWERS LAWRENCE P |
FLOWERS RONALD |
|||||
|
7/14/2004 |
|
Deeds |
$0 |
FLOWERS LAWRENCE P FLOWERS RONNY L |
FLOWERS LAWRENCE P |
|||||
|
7/14/2004 |
|
Deeds |
$0 |
FLOWERS LAWRENCE P & KAY FLOWERS RONNY L |
FLOWERS LAWRENCE P |
|||||
|
9/3/1993 |
|
Historical |
$50,000 |
FLOWERS LAURENCE P & KAY |
FLOWERS LAWRENCE P & KAY |
|||||
|
8/13/1993 |
|
Historical |
$0 |
BURNETT DARRELL R |
FLOWERS LAURENCE P & KAY |
|||||
| Last Mailed Notice of Value (N.O.V.) Information/History | ||||||||
|---|---|---|---|---|---|---|---|---|
| Year | Date | Market Value | Taxable Market Value | Gross Assessed | Exemption | Net Assessed | ||
|
2025 |
02/14/2025 |
163,500 |
163,500 |
17,985 |
1,000 |
16,985 |
||
|
2024 |
02/13/2024 |
159,000 |
78,906 |
8,679 |
8,679 |
0 |
||
|
2023 |
02/14/2023 |
158,500 |
78,906 |
8,679 |
8,679 |
0 |
||
|
2022 |
03/15/2022 |
125,000 |
78,906 |
8,679 |
8,679 |
0 |
||
|
2021 |
03/19/2021 |
117,000 |
78,906 |
8,679 |
8,679 |
0 |
||
| Property Building Permit History | |||||||||||
|---|---|---|---|---|---|---|---|---|---|---|---|
| Issued | Permit # | Provided by | Bldg # | Description | Est Construction Cost | Status | |||||
| No Building Permit records returned. | |||||||||||
| Click button on building number to access detailed information: | ||||||
|---|---|---|---|---|---|---|
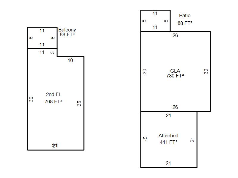
| Bldg # | Vacant/Improved Land | Bldg Description | Year Built | SqFt | # Stories | |
|
1 |
Improved |
Townhouse Multiple Story |
1975 |
1,548 |
2 Stories |
|