|
|
|
| Larry Stein Oklahoma County Assessor (405) 713-1200 - Public Access System |
|
|
|
|
|
|
| Real Property Display - Screen Produced 2/28/2026 2:56:47 AM | ||||
|---|---|---|---|---|
| Account: R148851810 | Type: Residential | Location: |
5839 HEFNER VILLAGE CT |
|
| Building Name/Occupant: |
|
OKLAHOMA CITY |
||
| Owner Name 1: | NIEVES YARELIE |
Parcel PIN#: |
3907-14-885-1810 |
|
| Owner Name 2: | 1/4 section #: |
3907 |
||
| Owner Name 3: | Parent Acct: |
|
||
| Billing Address: | 5839 HEFNER VILLAGE CT | Tax District: |
|
|
| City, State, Zip | OKLAHOMA CITY, OK 73162-7755 | School System: |
Putnam City #1 |
|
|
Country: (If noted) |
Land Size: |
0.0438 Acres |
||
|
Land Value: 16,790 |
|
|||
|
Sect 27-T13N-R4W Qtr SW |
HEFNER VILLAGE 1
Block
021
Lot
002
|
|||
| Full Legal Description: HEFNER VILLAGE 1 021 002 |
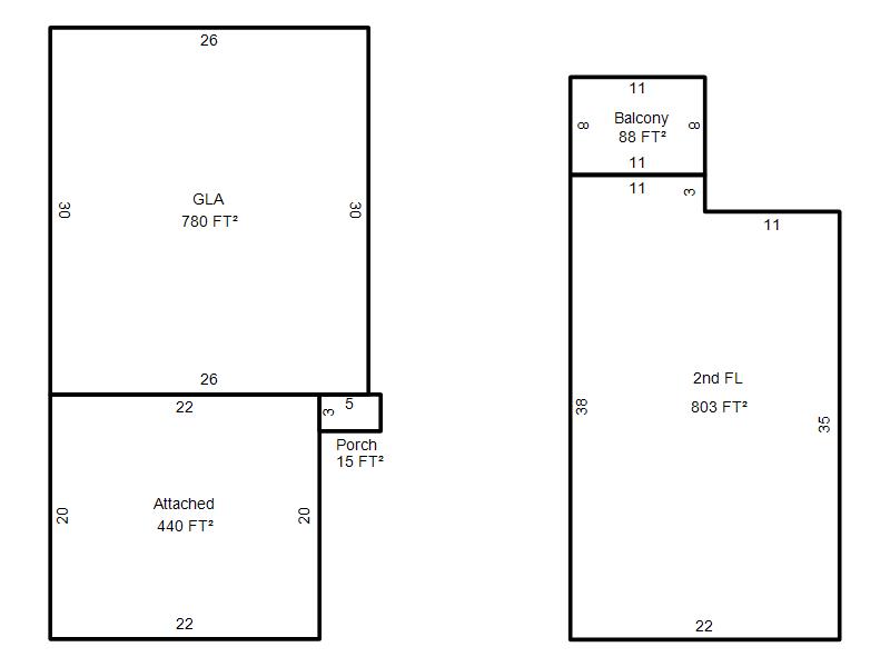
| Photo & Sketch (if available) | Comp Sales (ordered by relevancy) |
|
||||||||||||||||||
|
||||||||||||||||||||
| Value History (*The County Treasurer 405-713-1300 posts & collects actual tax amounts. Contact information HERE) | |||||||||||||
|---|---|---|---|---|---|---|---|---|---|---|---|---|---|
| Year | Market Value | Taxable Mkt Value | Gross Assessed | Exemption | Net Assessed | Millage | Est. Tax | Tax Savings | |||||
|
2025 |
184,000 |
184,000 |
20,240 |
0 |
20,240 |
123.17 |
$2,493 |
$0 |
|||||
|
2024 |
182,500 |
182,500 |
20,075 |
0 |
20,075 |
122.30 |
$2,455 |
$0 |
|||||
|
2023 |
183,500 |
127,000 |
13,970 |
1,000 |
12,970 |
121.91 |
$1,581 |
$880 |
|||||
|
2022 |
149,500 |
127,000 |
13,970 |
1,000 |
12,970 |
123.41 |
$1,601 |
$429 |
|||||
|
2021 |
142,500 |
127,000 |
13,970 |
1,000 |
12,970 |
122.23 |
$1,585 |
$331 |
|||||
| Property Account Status/Adjustments/Exemptions | ||||||
|---|---|---|---|---|---|---|
| Account # | Exemption Description | Amount | ||||
| No adjustment/exemption records returned. | ||||||
| Property Deed Transaction History (Recorded in the County Clerk's Office) | ||||||||||
|---|---|---|---|---|---|---|---|---|---|---|
| Date | Type | Book | Page | Price | Grantor | Grantee | ||||
|
7/3/2025 |
|
Deeds |
$186,000 |
BALLIET JASON |
NIEVES YARELIE |
|||||
|
8/15/2023 |
|
Deeds |
$0 |
FORREST STEVEN THOMAS |
FORREST JAMES TIMOTHY |
|||||
|
8/15/2023 |
|
Deeds |
$186,000 |
FORREST JAMES TIMOTHY |
BALLIET JASON |
|||||
|
4/14/2023 |
|
Hmstd Off & |
$0 |
FORREST STEVEN THOMAS |
FORREST JAMES TIMOTHY |
|||||
|
5/23/2014 |
|
Deeds |
$128,500 |
FRYER SHERYL JUNE FRYER REX LYNN |
FORREST STEVEN THOMAS |
|||||
| Last Mailed Notice of Value (N.O.V.) Information/History | ||||||||
|---|---|---|---|---|---|---|---|---|
| Year | Date | Market Value | Taxable Market Value | Gross Assessed | Exemption | Net Assessed | ||
|
2025 |
02/14/2025 |
184,000 |
184,000 |
20,240 |
0 |
20,240 |
||
|
2024 |
02/13/2024 |
182,500 |
182,500 |
20,075 |
0 |
20,075 |
||
|
2023 |
02/14/2023 |
183,500 |
127,000 |
13,970 |
1,000 |
12,970 |
||
|
2022 |
03/15/2022 |
149,500 |
127,000 |
13,970 |
1,000 |
12,970 |
||
|
2021 |
03/19/2021 |
142,500 |
127,000 |
13,970 |
1,000 |
12,970 |
||
| Property Building Permit History | |||||||||||
|---|---|---|---|---|---|---|---|---|---|---|---|
| Issued | Permit # | Provided by | Bldg # | Description | Est Construction Cost | Status | |||||
| No Building Permit records returned. | |||||||||||
| Click button on building number to access detailed information: | ||||||
|---|---|---|---|---|---|---|
| Bldg # | Vacant/Improved Land | Bldg Description | Year Built | SqFt | # Stories | |
|
1 |
Improved |
Townhouse Multiple Story |
1975 |
1,583 |
2 Stories |
|