|
|
|
| Larry Stein Oklahoma County Assessor (405) 713-1200 - Public Access System |
|
|
|
|
|
|
| Real Property Display - Screen Produced 2/28/2026 2:57:53 AM | ||||
|---|---|---|---|---|
| Account: R148852180 | Type: Residential | Location: |
5824 HEFNER VILLAGE CIR |
|
| Building Name/Occupant: |
|
OKLAHOMA CITY |
||
| Owner Name 1: | SILLS ANDREA L |
Parcel PIN#: |
3907-14-885-2180 |
|
| Owner Name 2: | 1/4 section #: |
3907 |
||
| Owner Name 3: | Parent Acct: |
|
||
| Billing Address: | 5824 HEFNER VILLAGE CIR | Tax District: |
|
|
| City, State, Zip | OKLAHOMA CITY, OK 73162-7758 | School System: |
Putnam City #1 |
|
|
Country: (If noted) |
Land Size: |
0.0592 Acres |
||
|
Land Value: 22,704 |
|
|||
|
Sect 27-T13N-R4W Qtr SW |
HEFNER VILLAGE 1
Block
031
Lot
001
|
|||
| Full Legal Description: HEFNER VILLAGE 1 031 001 |
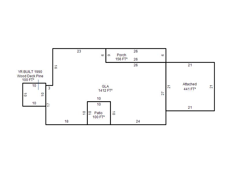
| Photo & Sketch (if available) | Comp Sales (ordered by relevancy) |
|
||||||||||||||||||
|
||||||||||||||||||||
| Value History (*The County Treasurer 405-713-1300 posts & collects actual tax amounts. Contact information HERE) | |||||||||||||
|---|---|---|---|---|---|---|---|---|---|---|---|---|---|
| Year | Market Value | Taxable Mkt Value | Gross Assessed | Exemption | Net Assessed | Millage | Est. Tax | Tax Savings | |||||
|
2025 |
159,000 |
142,821 |
15,710 |
0 |
15,710 |
123.17 |
$1,935 |
$219 |
|||||
|
2024 |
160,500 |
136,020 |
14,961 |
0 |
14,961 |
122.30 |
$1,830 |
$329 |
|||||
|
2023 |
160,500 |
129,543 |
14,249 |
0 |
14,249 |
121.91 |
$1,737 |
$415 |
|||||
|
2022 |
124,500 |
123,375 |
13,571 |
0 |
13,571 |
123.41 |
$1,675 |
$15 |
|||||
|
2021 |
117,500 |
117,500 |
12,925 |
0 |
12,925 |
122.23 |
$1,580 |
$0 |
|||||
| Property Account Status/Adjustments/Exemptions | ||
|---|---|---|
| Account # | Exemption Description | Amount |
|
R148852180 |
5% Capped Account |
0 |
| Property Deed Transaction History (Recorded in the County Clerk's Office) | |||||||
|---|---|---|---|---|---|---|---|
| Date | Type | Book | Page | Price | Grantor | Grantee | |
|
4/30/2001 |
|
Deeds |
$0 |
SILLS JIMMY TODD |
SILLS ANDREA L |
||
|
11/9/1996 |
|
Other |
$0 |
SILLS JIMMY TODD WILKINS ANDREA L |
SILLS ANDREA L |
||
|
10/28/1991 |
|
Historical |
$48,000 |
HARMON FREDAUH |
SILLS JIMMY TODD |
||
|
7/1/1976 |
|
Historical |
$0 |
|
HARMON FREDAUH |
||
| Last Mailed Notice of Value (N.O.V.) Information/History | ||||||||
|---|---|---|---|---|---|---|---|---|
| Year | Date | Market Value | Taxable Market Value | Gross Assessed | Exemption | Net Assessed | ||
|
2026 |
02/23/2026 |
158,500 |
149,962 |
16,495 |
0 |
16,495 |
||
|
2025 |
02/14/2025 |
159,000 |
142,821 |
15,710 |
0 |
15,710 |
||
|
2024 |
02/13/2024 |
160,500 |
136,020 |
14,961 |
0 |
14,961 |
||
|
2023 |
02/14/2023 |
160,500 |
129,543 |
14,249 |
0 |
14,249 |
||
|
2022 |
03/15/2022 |
124,500 |
123,375 |
13,571 |
0 |
13,571 |
||
| Property Building Permit History | |||||||||||
|---|---|---|---|---|---|---|---|---|---|---|---|
| Issued | Permit # | Provided by | Bldg # | Description | Est Construction Cost | Status | |||||
| No Building Permit records returned. | |||||||||||
| Click button on building number to access detailed information: | ||||||
|---|---|---|---|---|---|---|
| Bldg # | Vacant/Improved Land | Bldg Description | Year Built | SqFt | # Stories | |
|
1 |
Improved |
Townhouse One Story |
1974 |
1,412 |
1 Stories |
|