|
|
|
| Larry Stein Oklahoma County Assessor (405) 713-1200 - Public Access System |
|
|
|
|
|
|
| Real Property Display - Screen Produced 2/28/2026 2:55:13 AM | ||||
|---|---|---|---|---|
| Account: R149050900 | Type: Residential | Location: |
9804 HEFNER VILLAGE PL |
|
| Building Name/Occupant: |
|
OKLAHOMA CITY |
||
| Owner Name 1: | JOANNA HALEY REAL ESTATE COMPANY |
Parcel PIN#: |
3907-14-905-0900 |
|
| Owner Name 2: | 1/4 section #: |
3907 |
||
| Owner Name 3: | Parent Acct: |
|
||
| Billing Address: | 5400 NW 130TH ST | Tax District: |
|
|
| City, State, Zip | OKLAHOMA CITY, OK 73142 | School System: |
Putnam City #1 |
|
|
Country: (If noted) |
Land Size: |
0.0554 Acres |
||
|
Land Value: 23,517 |
|
|||
|
Sect 27-T13N-R4W Qtr SW |
HEFNER VILLAGE II
Block
041
Lot
001
|
|||
| Full Legal Description: HEFNER VILLAGE II 041 001 |
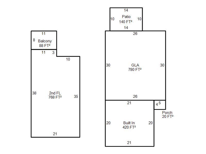
| Photo & Sketch (if available) | Comp Sales (ordered by relevancy) |
|
||||||||||||||||||
|
||||||||||||||||||||
| Value History (*The County Treasurer 405-713-1300 posts & collects actual tax amounts. Contact information HERE) | |||||||||||||
|---|---|---|---|---|---|---|---|---|---|---|---|---|---|
| Year | Market Value | Taxable Mkt Value | Gross Assessed | Exemption | Net Assessed | Millage | Est. Tax | Tax Savings | |||||
|
2025 |
177,500 |
156,981 |
17,267 |
0 |
17,267 |
123.17 |
$2,127 |
$278 |
|||||
|
2024 |
175,000 |
149,506 |
16,445 |
0 |
16,445 |
122.30 |
$2,011 |
$343 |
|||||
|
2023 |
177,000 |
142,387 |
15,661 |
0 |
15,661 |
121.91 |
$1,909 |
$464 |
|||||
|
2022 |
144,500 |
135,607 |
14,916 |
0 |
14,916 |
123.41 |
$1,841 |
$121 |
|||||
|
2021 |
131,000 |
129,150 |
14,206 |
0 |
14,206 |
122.23 |
$1,736 |
$25 |
|||||
| Property Account Status/Adjustments/Exemptions | ||
|---|---|---|
| Account # | Exemption Description | Amount |
|
R149050900 |
5% Capped Account |
0 |
| Property Deed Transaction History (Recorded in the County Clerk's Office) | ||||||||||
|---|---|---|---|---|---|---|---|---|---|---|
| Date | Type | Book | Page | Price | Grantor | Grantee | ||||
|
8/2/2018 |
|
Deeds |
$0 |
HALEY KENNETH P |
HALEY JOANNA L |
|||||
|
9/28/2017 |
|
Deeds |
$115,000 |
CENTENNIAL BANK |
JOANNA HALEY REAL ESTATE COMPANY |
|||||
|
8/22/2017 |
|
Hmstd Off & |
$0 |
CARTER CANDICE DEANN |
CENTENNIAL BANK |
|||||
|
10/24/2013 |
|
Deeds |
$65,000 |
SECRETARY OF HOUSING & URBAN DEV |
CARTER CANDICE DEANN |
|||||
|
4/2/2013 |
|
Hmstd Off & |
$0 |
CARR DENISE MICHELLE |
SECRETARY OF HOUSING & URBAN DEV |
|||||
| Last Mailed Notice of Value (N.O.V.) Information/History | ||||||||
|---|---|---|---|---|---|---|---|---|
| Year | Date | Market Value | Taxable Market Value | Gross Assessed | Exemption | Net Assessed | ||
|
2026 |
02/23/2026 |
171,000 |
164,830 |
18,130 |
0 |
18,130 |
||
|
2025 |
02/14/2025 |
177,500 |
156,981 |
17,267 |
0 |
17,267 |
||
|
2024 |
02/13/2024 |
175,000 |
149,506 |
16,445 |
0 |
16,445 |
||
|
2023 |
02/14/2023 |
177,000 |
142,387 |
15,661 |
0 |
15,661 |
||
|
2022 |
03/15/2022 |
144,500 |
135,607 |
14,916 |
0 |
14,916 |
||
| Property Building Permit History | |||||||||||
|---|---|---|---|---|---|---|---|---|---|---|---|
| Issued | Permit # | Provided by | Bldg # | Description | Est Construction Cost | Status | |||||
| No Building Permit records returned. | |||||||||||
| Click button on building number to access detailed information: | ||||||
|---|---|---|---|---|---|---|
| Bldg # | Vacant/Improved Land | Bldg Description | Year Built | SqFt | # Stories | |
|
1 |
Improved |
Townhouse Multiple Story |
1979 |
1,548 |
2 Stories |
|