|
|
|
| Larry Stein Oklahoma County Assessor (405) 713-1200 - Public Access System |
|
|
|
|
|
|
| Real Property Display - Screen Produced 2/28/2026 2:55:13 AM | ||||
|---|---|---|---|---|
| Account: R149052700 | Type: Residential | Location: |
9933 HEFNER VILLAGE DR |
|
| Building Name/Occupant: |
|
OKLAHOMA CITY |
||
| Owner Name 1: | SMITHERMAN JASON N |
Parcel PIN#: |
3907-14-905-2700 |
|
| Owner Name 2: | 1/4 section #: |
3907 |
||
| Owner Name 3: | Parent Acct: |
|
||
| Billing Address: | 280 ACACIA DR | Tax District: |
|
|
| City, State, Zip | LOVELAND, CO 80538 | School System: |
Putnam City #1 |
|
|
Country: (If noted) |
Land Size: |
0.0554 Acres |
||
|
Land Value: 23,517 |
|
|||
|
Sect 27-T13N-R4W Qtr SW |
HEFNER VILLAGE II
Block
059
Lot
001
|
|||
| Full Legal Description: HEFNER VILLAGE II 059 001 |
| Photo & Sketch (if available) | Comp Sales (ordered by relevancy) |
|
||||||||||||||||||
|
||||||||||||||||||||
| Value History (*The County Treasurer 405-713-1300 posts & collects actual tax amounts. Contact information HERE) | |||||||||||||
|---|---|---|---|---|---|---|---|---|---|---|---|---|---|
| Year | Market Value | Taxable Mkt Value | Gross Assessed | Exemption | Net Assessed | Millage | Est. Tax | Tax Savings | |||||
|
2025 |
179,000 |
179,000 |
19,690 |
0 |
19,690 |
123.17 |
$2,425 |
$0 |
|||||
|
2024 |
184,000 |
184,000 |
20,240 |
0 |
20,240 |
122.30 |
$2,475 |
$0 |
|||||
|
2023 |
182,000 |
182,000 |
20,020 |
0 |
20,020 |
121.91 |
$2,441 |
$0 |
|||||
|
2022 |
146,000 |
101,069 |
11,117 |
1,000 |
10,117 |
123.41 |
$1,249 |
$733 |
|||||
|
2021 |
133,500 |
101,069 |
11,117 |
1,000 |
10,117 |
122.23 |
$1,237 |
$558 |
|||||
| Property Account Status/Adjustments/Exemptions | ||
|---|---|---|
| Account # | Exemption Description | Amount |
|
R149052700 |
5% Capped Account |
0 |
| Property Deed Transaction History (Recorded in the County Clerk's Office) | ||||||||||
|---|---|---|---|---|---|---|---|---|---|---|
| Date | Type | Book | Page | Price | Grantor | Grantee | ||||
|
5/19/2022 |
|
Deeds |
$152,000 |
EST OF SMITHERMAN JANE E |
SMITHERMAN JASON N |
|||||
|
5/14/2009 |
|
Deeds |
$105,000 |
BRADLEY HELEN N TREV TRUST |
SMITHERMAN JANE E |
|||||
|
10/16/2007 |
|
Deeds |
$0 |
BRADLEY HELEN N REV TRUST |
BRADLEY HELEN N |
|||||
|
10/16/2007 |
|
Deeds |
$0 |
BRADLEY HELEN N |
BRADLEY HELEN N TREV TRUST |
|||||
|
10/28/2003 |
|
Deeds |
$0 |
BRADLEY HELEN N REV TRUST |
BRADLEY HELEN N |
|||||
| Last Mailed Notice of Value (N.O.V.) Information/History | ||||||||
|---|---|---|---|---|---|---|---|---|
| Year | Date | Market Value | Taxable Market Value | Gross Assessed | Exemption | Net Assessed | ||
|
2024 |
02/13/2024 |
184,000 |
184,000 |
20,240 |
0 |
20,240 |
||
|
2023 |
02/14/2023 |
182,000 |
182,000 |
20,020 |
0 |
20,020 |
||
|
2022 |
03/15/2022 |
146,000 |
101,069 |
11,117 |
1,000 |
10,117 |
||
|
2021 |
03/19/2021 |
133,500 |
101,069 |
11,117 |
1,000 |
10,117 |
||
|
2020 |
03/10/2020 |
124,500 |
101,069 |
11,117 |
1,000 |
10,117 |
||
| Property Building Permit History | |||||||||||
|---|---|---|---|---|---|---|---|---|---|---|---|
| Issued | Permit # | Provided by | Bldg # | Description | Est Construction Cost | Status | |||||
| No Building Permit records returned. | |||||||||||
| Click button on building number to access detailed information: | ||||||
|---|---|---|---|---|---|---|
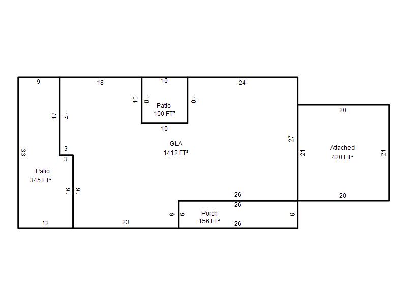
| Bldg # | Vacant/Improved Land | Bldg Description | Year Built | SqFt | # Stories | |
|
1 |
Improved |
Townhouse One Story |
1977 |
1,412 |
1 Stories |
|