|
|
|
| Larry Stein Oklahoma County Assessor (405) 713-1200 - Public Access System |
|
|
|
|
|
|
| Real Property Display - Screen Produced 3/24/2026 10:37:50 AM | ||||
|---|---|---|---|---|
| Account: R127261530 | Type: Residential | Location: |
5501 WHITEHALL BLVD |
|
| Building Name/Occupant: |
|
OKLAHOMA CITY |
||
| Owner Name 1: | STORY EDWARD R & ROSE MARY |
Parcel PIN#: |
3908-12-726-1530 |
|
| Owner Name 2: | 1/4 section #: |
3908 |
||
| Owner Name 3: | Parent Acct: |
|
||
| Billing Address: | 5501 WHITEHALL BLVD | Tax District: |
|
|
| City, State, Zip | OKLAHOMA CITY, OK 73162-6943 | School System: |
Putnam City #1 |
|
|
Country: (If noted) |
Land Size: |
0.2146 Acres |
||
|
Land Value: 51,238 |
|
|||
|
Sect 27-T13N-R4W Qtr NW |
WHITEHALL SECTION 1
Block
003
Lot
006
|
|||
| Full Legal Description: WHITEHALL SECTION 1 003 006 |
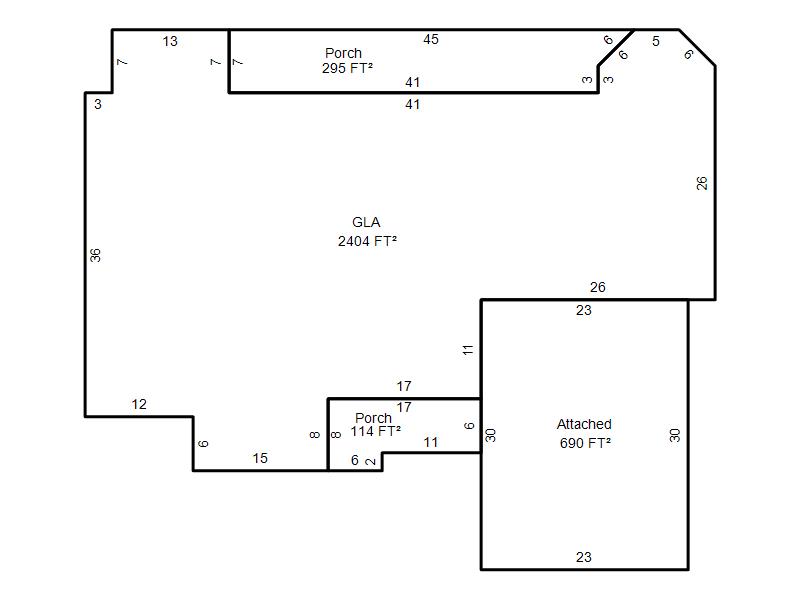
| Photo & Sketch (if available) | Comp Sales (ordered by relevancy) |
|
||||||||||||||||||
|
||||||||||||||||||||
| Value History (*The County Treasurer 405-713-1300 posts & collects actual tax amounts. Contact information HERE) | |||||||||||||
|---|---|---|---|---|---|---|---|---|---|---|---|---|---|
| Year | Market Value | Taxable Mkt Value | Gross Assessed | Exemption | Net Assessed | Millage | Est. Tax | Tax Savings | |||||
|
2025 |
340,500 |
263,153 |
28,946 |
1,000 |
27,946 |
123.17 |
$3,442 |
$1,171 |
|||||
|
2024 |
328,500 |
255,489 |
28,103 |
1,000 |
27,103 |
122.30 |
$3,315 |
$1,105 |
|||||
|
2023 |
311,000 |
248,048 |
27,284 |
1,000 |
26,284 |
121.91 |
$3,204 |
$966 |
|||||
|
2022 |
285,000 |
240,824 |
26,490 |
1,000 |
25,490 |
123.41 |
$3,146 |
$723 |
|||||
|
2021 |
236,500 |
233,810 |
25,719 |
1,000 |
24,719 |
122.23 |
$3,021 |
$158 |
|||||
| Property Account Status/Adjustments/Exemptions | ||
|---|---|---|
| Account # | Exemption Description | Amount |
|
R127261530 |
Homestead |
1,000 |
|
R127261530 |
3% Cap Homestead |
0 |
| Property Deed Transaction History (Recorded in the County Clerk's Office) | |||||||
|---|---|---|---|---|---|---|---|
| Date | Type | Book | Page | Price | Grantor | Grantee | |
|
12/19/1995 |
|
Historical |
$168,000 |
FARLEY & CRIST HOMES INC |
STORY EDWARD R & ROSE MARY |
||
|
6/8/1995 |
|
Historical |
$23,000 |
WHITEHALL ASSOCIATES |
FARLEY & CRIST HOMES INC |
||
|
4/16/1992 |
|
Historical |
$0 |
|
WHITEHALL ASSOCIATES |
||
| Last Mailed Notice of Value (N.O.V.) Information/History | ||||||||
|---|---|---|---|---|---|---|---|---|
| Year | Date | Market Value | Taxable Market Value | Gross Assessed | Exemption | Net Assessed | ||
|
2026 |
02/23/2026 |
350,000 |
271,047 |
29,814 |
1,000 |
28,814 |
||
|
2025 |
02/14/2025 |
340,500 |
263,153 |
28,946 |
1,000 |
27,946 |
||
|
2024 |
02/13/2024 |
328,500 |
255,489 |
28,103 |
1,000 |
27,103 |
||
|
2023 |
02/14/2023 |
311,000 |
248,048 |
27,284 |
1,000 |
26,284 |
||
|
2022 |
03/15/2022 |
285,000 |
240,824 |
26,490 |
1,000 |
25,490 |
||
| Property Building Permit History | ||||||
|---|---|---|---|---|---|---|
| Issued | Permit # | Provided by | Bldg # | Description | Est Construction Cost | Status |
|
6/2/1995 |
10217580 |
OKLAHOMA CITY |
1 |
Main Dwellin |
145,000 |
Inactive |
| Click button on building number to access detailed information: | ||||||
|---|---|---|---|---|---|---|
| Bldg # | Vacant/Improved Land | Bldg Description | Year Built | SqFt | # Stories | |
|
1 |
Improved |
Ranch 1 Story |
1995 |
2,404 |
1 Stories |
|