|
|
|
| Larry Stein Oklahoma County Assessor (405) 713-1200 - Public Access System |
|
|
|
|
|
|
| Real Property Display - Screen Produced 3/20/2026 11:25:49 PM | ||||
|---|---|---|---|---|
| Account: R121591360 | Type: Residential | Location: |
10621 WHITE OAK CANYON RD |
|
| Building Name/Occupant: |
|
OKLAHOMA CITY |
||
| Owner Name 1: | SPM HOLDINGS LLC |
Parcel PIN#: |
3912-12-159-1360 |
|
| Owner Name 2: | 1/4 section #: |
3912 |
||
| Owner Name 3: | Parent Acct: |
|
||
| Billing Address: | 4217 S MAY | Tax District: |
|
|
| City, State, Zip | OKLAHOMA CITY, OK 73119 | School System: |
Putnam City #1 |
|
|
Country: (If noted) |
Land Size: |
0.0746 Acres |
||
|
Land Value: 16,250 |
|
|||
|
Sect 28-T13N-R4W Qtr NW |
WHITE OAK TOWNHOUSE VILLAGE
Block
006
Lot
004
|
|||
| Full Legal Description: WHITE OAK TOWNHOUSE VILLAGE 006 004 |
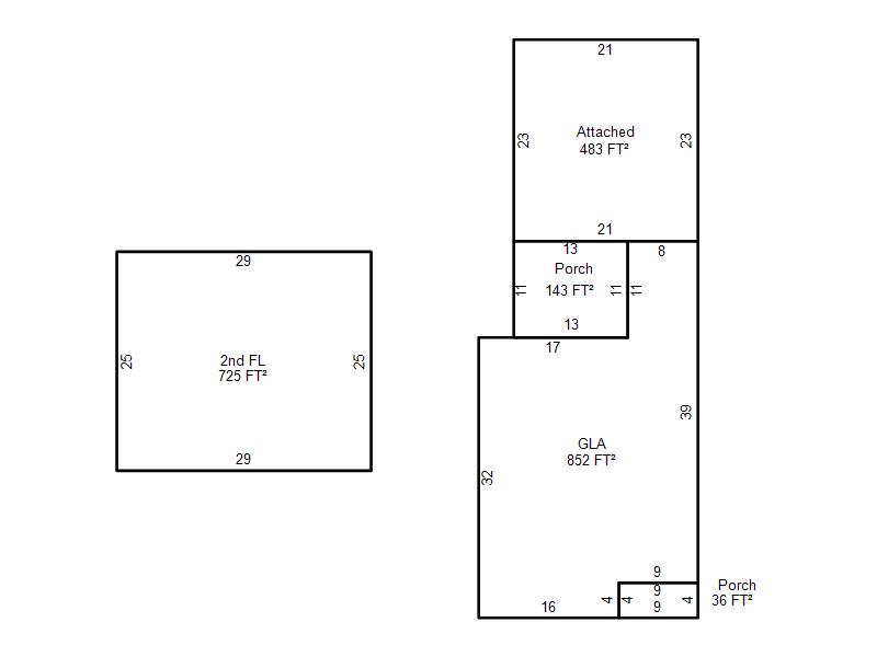
| Photo & Sketch (if available) | Comp Sales (ordered by relevancy) |
|
||||||||||||||||||
|
||||||||||||||||||||
| Value History (*The County Treasurer 405-713-1300 posts & collects actual tax amounts. Contact information HERE) | |||||||||||||
|---|---|---|---|---|---|---|---|---|---|---|---|---|---|
| Year | Market Value | Taxable Mkt Value | Gross Assessed | Exemption | Net Assessed | Millage | Est. Tax | Tax Savings | |||||
|
2025 |
152,000 |
131,327 |
14,445 |
0 |
14,445 |
123.17 |
$1,779 |
$280 |
|||||
|
2024 |
142,500 |
125,074 |
13,758 |
0 |
13,758 |
122.30 |
$1,683 |
$234 |
|||||
|
2023 |
137,500 |
119,119 |
13,102 |
0 |
13,102 |
121.91 |
$1,597 |
$246 |
|||||
|
2022 |
115,500 |
113,447 |
12,478 |
0 |
12,478 |
123.41 |
$1,540 |
$28 |
|||||
|
2021 |
110,500 |
108,045 |
11,884 |
0 |
11,884 |
122.23 |
$1,453 |
$33 |
|||||
| Property Account Status/Adjustments/Exemptions | ||||||
|---|---|---|---|---|---|---|
| Account # | Exemption Description | Amount | ||||
| No adjustment/exemption records returned. | ||||||
| Property Deed Transaction History (Recorded in the County Clerk's Office) | |||||||
|---|---|---|---|---|---|---|---|
| Date | Type | Book | Page | Price | Grantor | Grantee | |
|
7/11/2025 |
|
Mult Parcel |
$820,000 |
J & I PROPERTIES LLC |
SPM HOLDINGS LLC |
||
|
6/10/2009 |
|
Hmstd Off & |
$0 |
J & I PROPERTIES INC |
J & I PROPERTIES LLC |
||
|
7/15/1987 |
|
Historical |
$0 |
PASCHAL JOHN H & ISLA |
J & I PROPERTIES INC |
||
|
10/1/1986 |
|
Historical |
$0 |
JOHN PASCHAL TILE CO INC |
PASCHAL JOHN H |
||
|
9/1/1983 |
|
Historical |
$0 |
|
JOHN PASCHAL TILE CO INC |
||
| Last Mailed Notice of Value (N.O.V.) Information/History | ||||||||
|---|---|---|---|---|---|---|---|---|
| Year | Date | Market Value | Taxable Market Value | Gross Assessed | Exemption | Net Assessed | ||
|
2026 |
02/23/2026 |
147,000 |
147,000 |
16,170 |
0 |
16,170 |
||
|
2025 |
02/14/2025 |
152,000 |
131,327 |
14,445 |
0 |
14,445 |
||
|
2024 |
02/13/2024 |
142,500 |
125,074 |
13,758 |
0 |
13,758 |
||
|
2023 |
02/14/2023 |
137,500 |
119,119 |
13,102 |
0 |
13,102 |
||
|
2022 |
03/15/2022 |
115,500 |
113,447 |
12,478 |
0 |
12,478 |
||
| Property Building Permit History | |||||||||||
|---|---|---|---|---|---|---|---|---|---|---|---|
| Issued | Permit # | Provided by | Bldg # | Description | Est Construction Cost | Status | |||||
| No Building Permit records returned. | |||||||||||
| Click button on building number to access detailed information: | ||||||
|---|---|---|---|---|---|---|
| Bldg # | Vacant/Improved Land | Bldg Description | Year Built | SqFt | # Stories | |
|
1 |
Improved |
Townhouse Multiple Story |
1984 |
1,577 |
2 Stories |
|