|
|
|
| Larry Stein Oklahoma County Assessor (405) 713-1200 - Public Access System |
|
|
|
|
|
|
| Real Property Display - Screen Produced 4/2/2026 3:16:39 PM | ||||
|---|---|---|---|---|
| Account: R171341380 | Type: Residential | Location: |
6817 ELK CANYON RD |
|
| Building Name/Occupant: |
|
OKLAHOMA CITY |
||
| Owner Name 1: | DELGADILLO EDGAR |
Parcel PIN#: |
3912-17-134-1380 |
|
| Owner Name 2: | 1/4 section #: |
3912 |
||
| Owner Name 3: | Parent Acct: |
|
||
| Billing Address: | 6817 ELK CANYON RD | Tax District: |
|
|
| City, State, Zip | OKLAHOMA CITY, OK 73162 | School System: |
Putnam City #1 |
|
|
Country: (If noted) |
Land Size: |
0.1515 Acres |
||
|
Land Value: 29,700 |
|
|||
|
Sect 28-T13N-R4W Qtr NW |
CANYON NORTH SEC 5
Block
035
Lot
015
|
|||
| Full Legal Description: CANYON NORTH SEC 5 035 015 |
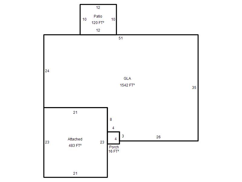
| Photo & Sketch (if available) | Comp Sales (ordered by relevancy) |
|
||||||||||||||||||
|
||||||||||||||||||||
| Value History (*The County Treasurer 405-713-1300 posts & collects actual tax amounts. Contact information HERE) | |||||||||||||
|---|---|---|---|---|---|---|---|---|---|---|---|---|---|
| Year | Market Value | Taxable Mkt Value | Gross Assessed | Exemption | Net Assessed | Millage | Est. Tax | Tax Savings | |||||
|
2026 |
200,500 |
196,911 |
21,659 |
0 |
21,659 |
123.17 |
$2,668 |
$49 |
|||||
|
2025 |
201,500 |
187,535 |
20,628 |
0 |
20,628 |
123.17 |
$2,541 |
$189 |
|||||
|
2024 |
194,000 |
178,605 |
19,646 |
0 |
19,646 |
122.30 |
$2,403 |
$207 |
|||||
|
2023 |
190,000 |
170,100 |
18,711 |
0 |
18,711 |
121.91 |
$2,281 |
$267 |
|||||
|
2022 |
162,000 |
162,000 |
17,820 |
0 |
17,820 |
123.41 |
$2,199 |
$0 |
|||||
| Property Account Status/Adjustments/Exemptions | ||
|---|---|---|
| Account # | Exemption Description | Amount |
|
R171341380 |
5% Capped Account |
0 |
| Property Deed Transaction History (Recorded in the County Clerk's Office) | |||||||
|---|---|---|---|---|---|---|---|
| Date | Type | Book | Page | Price | Grantor | Grantee | |
|
7/16/2020 |
|
Deeds |
$166,000 |
DELAND DAVID & STACI |
DELGADILLO EDGAR |
||
|
1/17/2013 |
|
Deeds |
$120,000 |
GORDON BRUCE & EMILIE |
DELAND DAVID & STACI |
||
|
6/8/2007 |
|
Deeds |
$125,000 |
WICK ERIC SEAN & DANIELLE RAYE |
GORDON BRUCE & EMILIE |
||
|
1/31/2005 |
|
Deeds |
$117,000 |
MELTON JAYCEE & SHERYL A |
WICK ERIC SEAN & DANIELLE RAYE |
||
|
12/1/1983 |
|
Historical |
$0 |
|
MELTON JAYCEE & SHERYL A |
||
| Last Mailed Notice of Value (N.O.V.) Information/History | ||||||||
|---|---|---|---|---|---|---|---|---|
| Year | Date | Market Value | Taxable Market Value | Gross Assessed | Exemption | Net Assessed | ||
|
2026 |
02/23/2026 |
200,500 |
196,911 |
21,659 |
0 |
21,659 |
||
|
2025 |
02/14/2025 |
201,500 |
187,535 |
20,628 |
0 |
20,628 |
||
|
2024 |
02/13/2024 |
194,000 |
178,605 |
19,646 |
0 |
19,646 |
||
|
2023 |
02/14/2023 |
190,000 |
170,100 |
18,711 |
0 |
18,711 |
||
|
2021 |
03/19/2021 |
164,000 |
164,000 |
18,040 |
0 |
18,040 |
||
| Property Building Permit History | |||||||||||
|---|---|---|---|---|---|---|---|---|---|---|---|
| Issued | Permit # | Provided by | Bldg # | Description | Est Construction Cost | Status | |||||
| No Building Permit records returned. | |||||||||||
| Click button on building number to access detailed information: | ||||||
|---|---|---|---|---|---|---|
| Bldg # | Vacant/Improved Land | Bldg Description | Year Built | SqFt | # Stories | |
|
1 |
Improved |
Ranch 1 Story |
1979 |
1,542 |
1 Stories |
|