|
|
|
| Larry Stein Oklahoma County Assessor (405) 713-1200 - Public Access System |
|
|
|
|
|
|
| Real Property Display - Screen Produced 4/27/2026 3:46:32 AM | ||||
|---|---|---|---|---|
| Account: R125821040 | Type: Residential | Location: |
10200 PINCKNEY CT |
|
| Building Name/Occupant: |
|
OKLAHOMA CITY |
||
| Owner Name 1: | MUSE MACKENZIE & ZACKARY |
Parcel PIN#: |
3913-12-582-1040 |
|
| Owner Name 2: | 1/4 section #: |
3913 |
||
| Owner Name 3: | Parent Acct: |
|
||
| Billing Address: | 10200 PINCKNEY CT | Tax District: |
|
|
| City, State, Zip | OKLAHOMA CITY, OK 73162-4540 | School System: |
Putnam City #1 |
|
|
Country: (If noted) |
Land Size: |
0.2488 Acres |
||
|
Land Value: 52,000 |
|
|||
|
Sect 29-T13N-R4W Qtr NE |
BEACON HILL REPLAT
Block
001
Lot
005
|
|||
| Full Legal Description: BEACON HILL REPLAT 001 005 |
| Value History (*The County Treasurer 405-713-1300 posts & collects actual tax amounts. Contact information HERE) | |||||||||||||
|---|---|---|---|---|---|---|---|---|---|---|---|---|---|
| Year | Market Value | Taxable Mkt Value | Gross Assessed | Exemption | Net Assessed | Millage | Est. Tax | Tax Savings | |||||
|
2026 |
224,000 |
224,000 |
24,640 |
0 |
24,640 |
123.17 |
$3,035 |
$0 |
|||||
|
2025 |
221,000 |
182,004 |
20,020 |
1,000 |
19,020 |
123.17 |
$2,343 |
$652 |
|||||
|
2024 |
218,000 |
176,703 |
19,437 |
1,000 |
18,437 |
122.30 |
$2,255 |
$678 |
|||||
| Property Account Status/Adjustments/Exemptions | ||||||
|---|---|---|---|---|---|---|
| Account # | Exemption Description | Amount | ||||
| No adjustment/exemption records returned. | ||||||
| Property Deed Transaction History (Recorded in the County Clerk's Office) | ||||||||||
|---|---|---|---|---|---|---|---|---|---|---|
| Date | Type | Book | Page | Price | Grantor | Grantee | ||||
|
10/31/2025 |
|
Deeds |
$226,000 |
SARSYCKI JENNIFER |
MUSE MACKENZIE & ZACKARY |
|||||
|
8/26/2009 |
|
Deeds |
$153,000 |
SLK PROPERTIES LLC |
SARSYCKI JENNIFER |
|||||
|
5/13/2009 |
|
Deeds |
$90,000 |
CARTER LATRESSA D |
SLK PROPERTIES LLC |
|||||
| Last Mailed Notice of Value (N.O.V.) Information/History | ||||||||
|---|---|---|---|---|---|---|---|---|
| Year | Date | Market Value | Taxable Market Value | Gross Assessed | Exemption | Net Assessed | ||
|
2026 |
02/23/2026 |
224,000 |
224,000 |
24,640 |
0 |
24,640 |
||
|
2025 |
02/14/2025 |
221,000 |
182,004 |
20,020 |
1,000 |
19,020 |
||
|
2024 |
02/13/2024 |
218,000 |
176,703 |
19,437 |
1,000 |
18,437 |
||
| Property Building Permit History | |||||||||||
|---|---|---|---|---|---|---|---|---|---|---|---|
| Issued | Permit # | Provided by | Bldg # | Description | Est Construction Cost | Status | |||||
| No Building Permit records returned. | |||||||||||
| Click button below to access detailed information and additional property photos: | ||||||
|---|---|---|---|---|---|---|
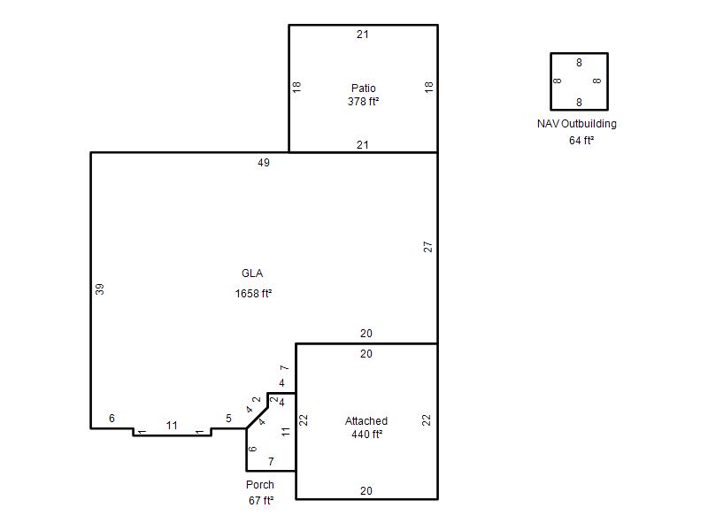
| Bldg # | Vacant/Improved Land | Bldg Description | Year Built | SqFt | # Stories | |
|
1 |
Improved |
Ranch 1 Story |
1987 |
1,658 |
1 Stories |
|