|
|
|
| Larry Stein Oklahoma County Assessor (405) 713-1200 - Public Access System |
|
|
|
|
|
|
| Real Property Display - Screen Produced 4/27/2026 3:46:33 AM | ||||
|---|---|---|---|---|
| Account: R125821080 | Type: Residential | Location: |
7124 NW 102ND ST |
|
| Building Name/Occupant: |
|
OKLAHOMA CITY |
||
| Owner Name 1: | GORDON KENNETH A |
Parcel PIN#: |
3913-12-582-1080 |
|
| Owner Name 2: | 1/4 section #: |
3913 |
||
| Owner Name 3: | Parent Acct: |
|
||
| Billing Address: | 7124 NW 102ND ST | Tax District: |
|
|
| City, State, Zip | OKLAHOMA CITY, OK 73162 | School System: |
Putnam City #1 |
|
|
Country: (If noted) |
UNITED STATES |
Land Size: |
0.1639 Acres |
|
|
Land Value: 30,702 |
|
|||
|
Sect 29-T13N-R4W Qtr NE |
BEACON HILL REPLAT
Block
001
Lot
009
|
|||
| Full Legal Description: BEACON HILL REPLAT 001 009 |
| Value History (*The County Treasurer 405-713-1300 posts & collects actual tax amounts. Contact information HERE) | |||||||||||||
|---|---|---|---|---|---|---|---|---|---|---|---|---|---|
| Year | Market Value | Taxable Mkt Value | Gross Assessed | Exemption | Net Assessed | Millage | Est. Tax | Tax Savings | |||||
|
2026 |
227,000 |
207,043 |
22,774 |
1,000 |
21,774 |
123.17 |
$2,682 |
$394 |
|||||
|
2025 |
223,500 |
201,013 |
22,110 |
0 |
22,110 |
123.17 |
$2,723 |
$305 |
|||||
|
2024 |
220,500 |
191,441 |
21,057 |
0 |
21,057 |
122.30 |
$2,575 |
$391 |
|||||
| Property Account Status/Adjustments/Exemptions | ||
|---|---|---|
| Account # | Exemption Description | Amount |
|
R125821080 |
Homestead |
1,000 |
| Property Deed Transaction History (Recorded in the County Clerk's Office) | ||||||||||
|---|---|---|---|---|---|---|---|---|---|---|
| Date | Type | Book | Page | Price | Grantor | Grantee | ||||
|
2/7/2022 |
|
Hmstd Off & |
$0 |
GORDON KENNETH A & TATANISHA |
GORDON KENNETH A |
|||||
|
12/7/2017 |
|
Deeds |
$0 |
GORDON KENNETH A |
GORDON KENNETH A & TATANISHA |
|||||
|
3/10/2017 |
|
Deeds |
$155,000 |
POPE BRENNAN & KRISTEN |
GORDON KENNETH A |
|||||
| Last Mailed Notice of Value (N.O.V.) Information/History | ||||||||
|---|---|---|---|---|---|---|---|---|
| Year | Date | Market Value | Taxable Market Value | Gross Assessed | Exemption | Net Assessed | ||
|
2026 |
02/23/2026 |
227,000 |
207,043 |
22,774 |
1,000 |
21,774 |
||
|
2025 |
02/14/2025 |
223,500 |
201,013 |
22,110 |
0 |
22,110 |
||
|
2024 |
02/13/2024 |
220,500 |
191,441 |
21,057 |
0 |
21,057 |
||
| Property Building Permit History | |||||||||||
|---|---|---|---|---|---|---|---|---|---|---|---|
| Issued | Permit # | Provided by | Bldg # | Description | Est Construction Cost | Status | |||||
| No Building Permit records returned. | |||||||||||
| Click button below to access detailed information and additional property photos: | ||||||
|---|---|---|---|---|---|---|
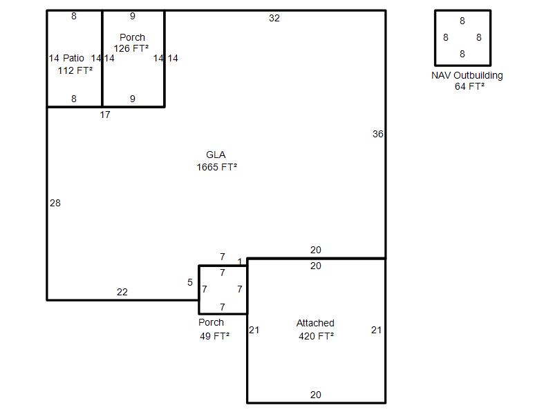
| Bldg # | Vacant/Improved Land | Bldg Description | Year Built | SqFt | # Stories | |
|
1 |
Improved |
Ranch 1 Story |
1988 |
1,665 |
1 Stories |
|