|
|
|
| Larry Stein Oklahoma County Assessor (405) 713-1200 - Public Access System |
|
|
|
|
|
|
| Real Property Display - Screen Produced 4/25/2026 1:38:55 PM | ||||
|---|---|---|---|---|
| Account: R125821260 | Type: Residential | Location: |
7105 NW 102ND ST |
|
| Building Name/Occupant: |
|
OKLAHOMA CITY |
||
| Owner Name 1: | MARSH ROBERT |
Parcel PIN#: |
3913-12-582-1260 |
|
| Owner Name 2: | 1/4 section #: |
3913 |
||
| Owner Name 3: | Parent Acct: |
|
||
| Billing Address: | 7105 NW 102ND ST | Tax District: |
|
|
| City, State, Zip | OKLAHOMA CITY, OK 73162 | School System: |
Putnam City #1 |
|
|
Country: (If noted) |
Land Size: |
0.1880 Acres |
||
|
Land Value: 35,217 |
|
|||
|
Sect 29-T13N-R4W Qtr NE |
BEACON HILL REPLAT
Block
002
Lot
002
|
|||
| Full Legal Description: BEACON HILL REPLAT 002 002 |
| Value History (*The County Treasurer 405-713-1300 posts & collects actual tax amounts. Contact information HERE) | |||||||||||||
|---|---|---|---|---|---|---|---|---|---|---|---|---|---|
| Year | Market Value | Taxable Mkt Value | Gross Assessed | Exemption | Net Assessed | Millage | Est. Tax | Tax Savings | |||||
|
2026 |
217,000 |
217,000 |
23,870 |
0 |
23,870 |
123.17 |
$2,940 |
$0 |
|||||
|
2025 |
214,000 |
214,000 |
23,540 |
0 |
23,540 |
123.17 |
$2,899 |
$0 |
|||||
|
2024 |
211,000 |
209,475 |
23,042 |
0 |
23,042 |
122.30 |
$2,818 |
$21 |
|||||
| Property Account Status/Adjustments/Exemptions | ||
|---|---|---|
| Account # | Exemption Description | Amount |
|
R125821260 |
5% Capped Account |
0 |
| Property Deed Transaction History (Recorded in the County Clerk's Office) | ||||||||||
|---|---|---|---|---|---|---|---|---|---|---|
| Date | Type | Book | Page | Price | Grantor | Grantee | ||||
|
12/20/2021 |
|
Deeds |
$192,000 |
MORGAN RYAN K & MINA M |
MARSH ROBERT |
|||||
|
5/10/2010 |
|
Deeds |
$94,500 |
ROBATI ALI NAZARI & BRENDA K |
MORGAN RYAN K & MINA M |
|||||
|
5/21/1990 |
|
Historical |
$80,000 |
BEACON HILL DEVEL CO |
ROBATI ALI NAZARI & BRENDA K |
|||||
| Last Mailed Notice of Value (N.O.V.) Information/History | ||||||||
|---|---|---|---|---|---|---|---|---|
| Year | Date | Market Value | Taxable Market Value | Gross Assessed | Exemption | Net Assessed | ||
|
2026 |
02/23/2026 |
217,000 |
217,000 |
23,870 |
0 |
23,870 |
||
|
2025 |
02/14/2025 |
214,000 |
214,000 |
23,540 |
0 |
23,540 |
||
|
2024 |
02/13/2024 |
211,000 |
209,475 |
23,042 |
0 |
23,042 |
||
| Property Building Permit History | |||||||||||
|---|---|---|---|---|---|---|---|---|---|---|---|
| Issued | Permit # | Provided by | Bldg # | Description | Est Construction Cost | Status | |||||
| No Building Permit records returned. | |||||||||||
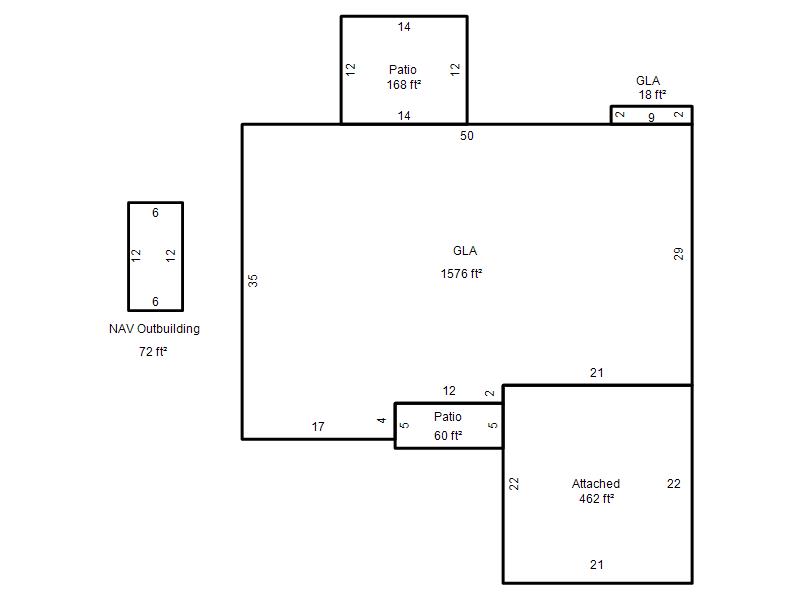
| Click button below to access detailed information and additional property photos: | ||||||
|---|---|---|---|---|---|---|
| Bldg # | Vacant/Improved Land | Bldg Description | Year Built | SqFt | # Stories | |
|
1 |
Improved |
Ranch 1 Story |
1987 |
1,594 |
1 Stories |
|